Willingdon Park Drive, Eastbourne
By Emslie & Tarrant
£ 569,950
Reviews
3 out of 5 stars
Emslie & Tarrant says ..
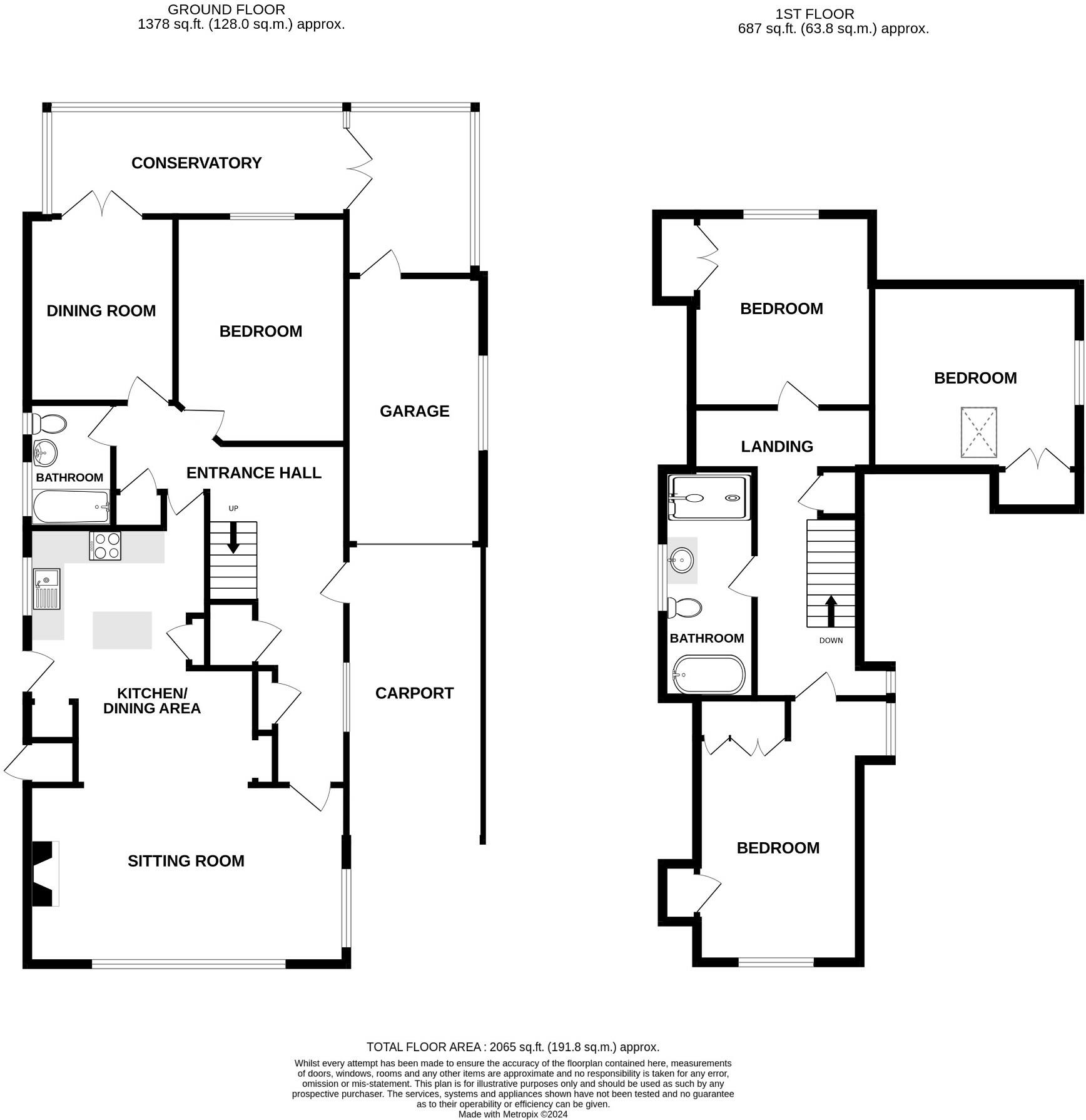
Enviably situated on the borders of Willingdon and West Hampden Park - A remarkably spacious four/five bedroom detached chalet style residence featuring mature landscaped gardens of good size with the benefit of a car port, garage and further generous off-road parking.
Property Oracle says ..
This four-bedroom, two-bathroom detached house in Willingdon Park Drive, Eastbourne, presents as a well-maintained family home. The interior features a modern kitchen and updated bathrooms, suggesting recent renovations or upgrades. The property benefits from a good-sized garden with a patio area, ideal for outdoor living and entertaining. The location offers convenient access to schools, including an ‘Outstanding’ rated primary school which would attract families, and multiple railway stations. While the provided information does not offer precise data on the property’s square footage or detailed local property comparisons, the list price appears in line with market expectations for the area based on the limited comparison data available. The property’s overall condition, combined with its amenities and location advantages, makes it an attractive prospect for potential buyers seeking a family home in a desirable Eastbourne location.
Therefore, we give this property 7 / 10. *Disclaimer: This is our option and does constitute a recommendation or financial advice. Do your own research. *
- Price
- 7
- Condition
- 8
- Location
- 7
- Land
- 6
- Bedrooms
- 4
- Bathrooms
- 2
- Sqft (est)
- 2,065.00
The heatmap indicates the level of crime in the area. The color of the heatmap indicates the crime severity and recency.
Metrics Year-on-Year
- Average area value
- 590,421.00 £Increased by 34.04 %
- Est sale value
- 1,057,280.00 £Increased by 31.96 %
- Average area rental value
- 1,427.00 £/moDecreased by 43.31 %
- Est letting value
- 2,065.00 £/moDecreased by 50.00 %
- Est rental Yield
- 2.90 %Decreased by 57.73 %
- Crime Rate
- 1.00 %Unchanged by 0.00 %
Agent Activity
Emslie & Tarrant created the listing.
Nearby Schools
| Name | Type | Ofsted | Distance |
|---|---|---|---|
| The Lindfield School | Academy Special Converter | Outstanding | 0.60 KM |
| Oakwood Primary Academy | Academy Sponsor Led | Special Measures | 0.71 KM |
| The Eastbourne Academy | Academy Sponsor Led | Good | 0.76 KM |
| Parkland Junior School | Academy Converter | Good | 0.93 KM |
| Parkland Infant School | Academy Converter | 0.93 KM |
Images
Nearby Streets
| Name | Average Price | Average Sqft | Distance |
|---|---|---|---|
| The Broadway | £ 0 | 0 | 0.00 KM |
| Shortlands Close | £ 650,000 | 0 | 0.00 KM |
| Gloucester Close | £ 0 | 0 | 0.00 KM |
| Walsingham Close | £ 0 | 0 | 0.00 KM |
| Welbeck Close | £ 0 | 0 | 0.00 KM |
Nearby Transport
| Name | NLC | TLC | Distance |
|---|---|---|---|
| Hampden Park (Sussex) | 5450 | HMD | 1.97 KM |
| Polegate | 5455 | PLG | 2.95 KM |
| Eastbourne | 5448 | EBN | 4.08 KM |
| Pevensey And Westham | 5461 | PEV | 7.14 KM |
| Pevensey Bay | 5462 | PEB | 9.13 KM |
Nearby Listings
| Address | Price | Type | Score | Distance |
|---|---|---|---|---|
| Willingdon Park Drive, Eastbourne | £ 569,950 | BUY | 7 / 10 | 0.00 KM |
| Willingdon Park Drive, Eastbourne | £ 525,000 | BUY | 6 / 10 | 0.01 KM |
| Willingdon Park Drive, Eastbourne | £ 525,000 | BUY | Unknown | 0.01 KM |
| Willingdon Park Drive, Eastbourne, BN22 | £ 490,000 | BUY | 6 / 10 | 0.01 KM |
| Willingdon Park Drive, Eastbourne | £ 425,000 | BUY | 7 / 10 | 0.08 KM |
Nearby Properties
| Address | Price | Distance |
|---|---|---|
| 81 Willingdon Park Drive | £ 292,500 | 0.00 KM |
| 98 Willingdon Park Drive | £ 272,000 | 0.00 KM |
| 100 Willingdon Park Drive | £ 215,000 | 0.00 KM |
| 91 Willingdon Park Drive | £ 270,000 | 0.00 KM |
| 92 Willingdon Park Drive | £ 320,000 | 0.00 KM |