Martin & Co says ..
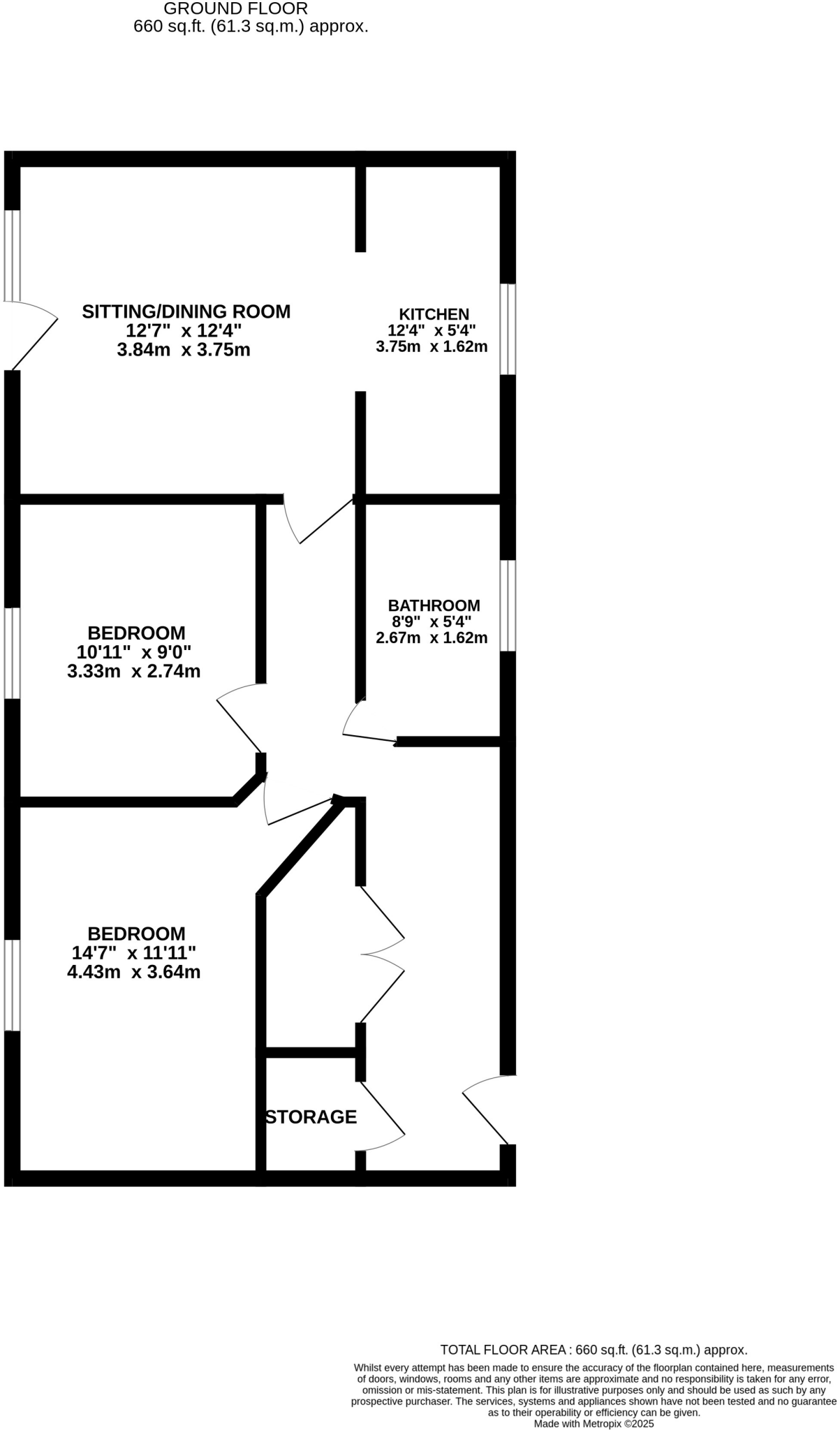
AVAILABLE NOW - Views to May Hill- top floor flat offering 2 double bedrooms, lounge/diner with door to Juliet balcony, modern bathroom & kitchen, gas central heating, UPVC Double Glazing, freshly decorated, allocated parking, EPC C, CTax B - No Chain
Property Oracle says ..
Therefore, we give this property 5 / 10. *Disclaimer: This is our option and does constitute a recommendation or financial advice. Do your own research. *
- Price
- 7
- Condition
- 8
- Location
- 7
- Land
- 1
- Bedrooms
- 2
- Bathrooms
- 1
- Sqft (est)
- 544.41
The heatmap indicates the level of crime in the area. The color of the heatmap indicates the crime severity and recency.
Metrics Year-on-Year
- Average area value
- 222,854.00 £Decreased by 15.77 %
- Est sale value
- 156,790.08 £Decreased by 6.19 %
- Average area rental value
- 1,201.00 £/moIncreased by 7.91 %
- Est letting value
- 544.41 £/moUnchanged by 0.00 %
- Est rental Yield
- 6.47 %Increased by 28.12 %
- Crime Rate
- 1.00 %Unchanged by 0.00 %
from 264,570.00 £
from 167,133.87 £
from 1,113.00 £/mo
from 544.41 £/mo
from 5.05 %
from 1.00 %
Agent Activity
Martin & Co created the listing.
Nearby Schools
| Name | Type | Ofsted | Distance |
|---|---|---|---|
| The King'S School, Gloucester | Other Independent School | 1.09 KM | |
| Kingsholm Church Of England Primary School | Voluntary Controlled School | Outstanding | 1.31 KM |
| Kaleidoscope Kingsholm Children'S Centre | Children's Centre | 1.50 KM | |
| Denmark Road High School | Academy Converter | 1.61 KM | |
| Edward Jenner School | Other Independent School | 1.82 KM |
Images
Nearby Streets
| Name | Average Price | Average Sqft | Distance |
|---|---|---|---|
| St Oswalds Village | £ 0 | 0 | 0.00 KM |
| Deans Row | £ 0 | 0 | 0.00 KM |
| Archdeacon Court | £ 0 | 0 | 0.00 KM |
| The Quay | £ 88,750 | 0 | 0.00 KM |
| Park Street | £ 0 | 0 | 0.00 KM |
Nearby Transport
| Name | NLC | TLC | Distance |
|---|---|---|---|
| Gloucester | 4760 | GCR | 1.74 KM |
Nearby Listings
| Address | Price | Type | Score | Distance |
|---|---|---|---|---|
| Longhorn Avenue, Gloucester | £ 140,000 | BUY | 5 / 10 | 0.00 KM |
| Longhorn Avenue, Gloucester, Gloucestershire, GL1 | £ 125,000 | BUY | Unknown | 0.03 KM |
| Longhorn Avenue, Gloucester, Gloucestershire, GL1 | £ 150,000 | BUY | 6 / 10 | 0.09 KM |
| Longhorn Avenue, Gloucester | £ 150,000 | BUY | 7 / 10 | 0.09 KM |
| Longhorn Avenue, Gloucester, Gloucestershire, GL1 | £ 150,000 | BUY | 5 / 10 | 0.09 KM |
Nearby Properties
| Address | Price | Distance |
|---|---|---|
| 72 Longhorn Avenue | £ 120,000 | 0.12 KM |
| 70 Longhorn Avenue | £ 115,000 | 0.13 KM |
| 76 Longhorn Avenue | £ 129,500 | 0.13 KM |
| 22 Dexter Way | £ 80,000 | 0.20 KM |
| 26 Longhorn Avenue | £ 130,000 | 0.27 KM |