Moor Park Drive, Addingham, Ilkley, LS29
By Dacre Son & Hartley
£ 450,000
Reviews
3 out of 5 stars
Dacre Son & Hartley says ..
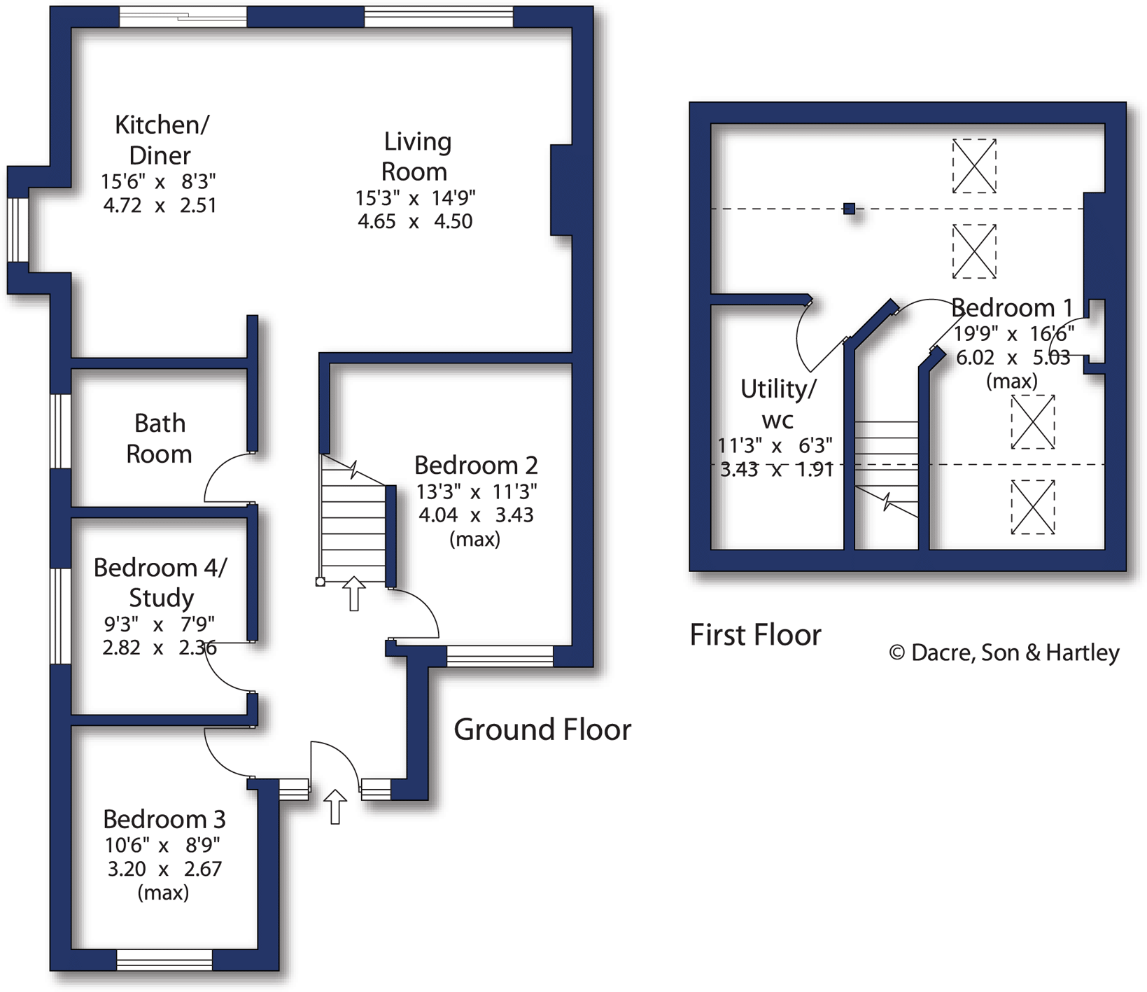
Offering deceptively spacious, very well appointed accommodation featuring spacious open plan living and four bedrooms, is this semi-detached home enjoying a large southerly facing rear garden with elevated views in this popular village location.
Property Oracle says ..
This four-bedroom, one-bathroom property in Addingham, Ilkley, is presented in excellent condition. The interior has clearly been recently updated or renovated, featuring a modern style and a light, airy feel. The images highlight stylish fixtures and fittings, indicating a property well-maintained and well-cared for. The property benefits from a sizeable garden with various levels and areas suitable for both relaxation and potentially for growing vegetables or other plants. The location in Addingham offers the benefits of a desirable village setting, close to the amenities of Ilkley, and with Addingham Primary School only 1.41 km away. Proximity to railway stations at Steeton and Silsden, and Ilkley, offer good transport links. While the provided data lacks precise details on the average price per square foot for the local area, the listed price of £450,000 appears consistent with property prices in Addingham, taking into account the condition of the property and its location. The property would likely appeal to families or those seeking a charming home in a desirable village setting. The lack of detailed plot size information limits a complete assessment of the land’s size and value.
Therefore, we give this property 6 / 10. *Disclaimer: This is our option and does constitute a recommendation or financial advice. Do your own research. *
- Price
- 7
- Condition
- 7
- Location
- 7
- Land
- 6
- Bedrooms
- 4
- Bathrooms
- 1
- Sqft (est)
- 1,028.67
The heatmap indicates the level of crime in the area. The color of the heatmap indicates the crime severity and recency.
Metrics Year-on-Year
- Average area value
- 422,431.00 £Increased by 29.36 %
- Est sale value
- 702,581.61 £Increased by 163.71 %
- Average area rental value
- 902.00 £/moDecreased by 19.75 %
- Est letting value
- 1,028.67 £/mo
- Est rental Yield
- 2.56 %Decreased by 38.01 %
- Crime Rate
- 2.00 %Unchanged by 0.00 %
Agent Activity
Dacre Son & Hartley created the listing.
Nearby Schools
| Name | Type | Ofsted | Distance |
|---|---|---|---|
| Addingham Primary School | Community School | Good | 1.41 KM |
| The Boyle And Petyt Primary School | Voluntary Aided School | Good | 3.28 KM |
| Silsden Primary School | Community School | Good | 6.13 KM |
| Daisy Chain Children'S Centre | Children's Centre Linked Site | 6.38 KM | |
| All Saints' Cofe Primary School | Voluntary Controlled School | Outstanding | 7.18 KM |
Images
Nearby Streets
| Name | Average Price | Average Sqft | Distance |
|---|---|---|---|
| Hillside Close | £ 0 | 0 | 0.00 KM |
| Hawthorn Close | £ 425,000 | 0 | 0.00 KM |
| Lime Close | £ 0 | 0 | 0.00 KM |
| Moor View | £ 0 | 0 | 0.00 KM |
| Plumrose Hill | £ 0 | 0 | 0.00 KM |
Nearby Transport
| Name | NLC | TLC | Distance |
|---|---|---|---|
| Steeton And Silsden | 8469 | SON | 7.49 KM |
| Ilkley | 8568 | ILK | 8.37 KM |
| Keighley | 8468 | KEI | 8.66 KM |
Nearby Listings
| Address | Price | Type | Score | Distance |
|---|---|---|---|---|
| Moor Park Drive, Addingham, Ilkley, LS29 | £ 450,000 | BUY | 6 / 10 | 0.00 KM |
| Moor Park Drive, Addingham, Ilkley | £ 285,000 | BUY | Unknown | 0.04 KM |
| Moor Lane, Addingham, Ilkley, West Yorkshire, LS29 | £ 515,000 | BUY | 7 / 10 | 0.10 KM |
| Jonathan Garth, Addingham, Ilkley, West Yorkshire, LS29 | £ 650,000 | BUY | Unknown | 0.16 KM |
| Moor Park Drive, Addingham, Ilkley | £ 355,000 | BUY | Unknown | 0.20 KM |
Nearby Properties
| Address | Price | Distance |
|---|---|---|
| 7 Moor Park Grove | £ 250,000 | 0.11 KM |
| 5 Hodgson Fold | £ 330,000 | 0.14 KM |
| 9 Hodgson Fold | £ 589,950 | 0.14 KM |
| 4 Hodgson Fold | £ 345,000 | 0.14 KM |
| 10 Hodgson Fold | £ 420,000 | 0.14 KM |