Temple Street, Keynsham, Bristol
By Davies & Way
£ 225,000
Reviews
3 out of 5 stars
Davies & Way says ..
This bright and welcoming two double bedroom apartment located in the centre of town offers convenient access to the local high street, memorial park and Keynsham train station. Internally the property is entered by a communal hallway via a secure telephone entry system, from here there ...
Property Oracle says ..
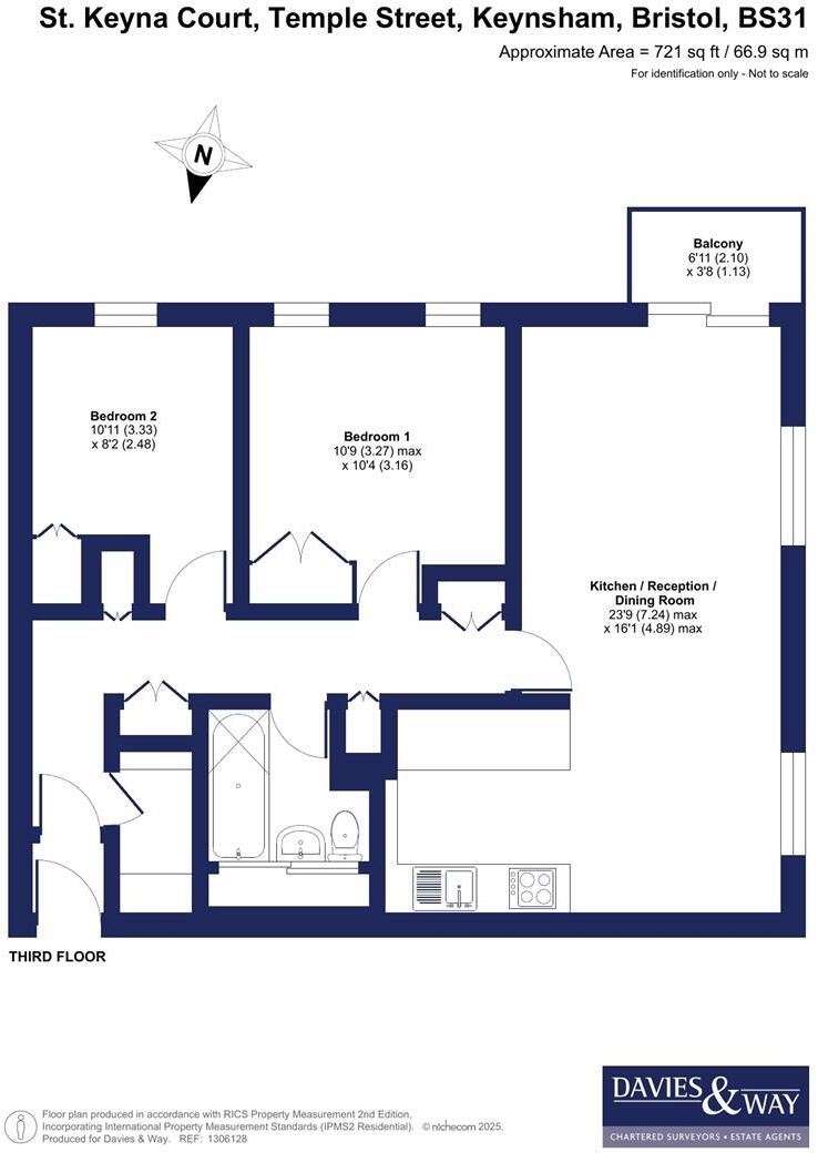
This two-bedroom flat is located on Temple Street in Keynsham, Bristol. Keynsham is a town with good transport links, including a train station within walking distance, offering convenient access to surrounding areas. Several schools are also located nearby. The property has 721 sqft of living space. The average price per sqft in this area is £444. The listing price of £225,000 equates to approximately £312 per sqft, which appears to be competitively priced compared to the local average. Based on the images, the interior of the flat appears somewhat dated and could benefit from modernization. The condition appears fair, but some updating would likely improve its appeal. There is a small balcony.
Therefore, we give this property 6 / 10. *Disclaimer: This is our option and does constitute a recommendation or financial advice. Do your own research. *
- Price
- 8
- Condition
- 6
- Location
- 7
- Land
- 3
- Bedrooms
- 2
- Bathrooms
- 1
- Sqft (est)
- 721.00
The heatmap indicates the level of crime in the area. The color of the heatmap indicates the crime severity and recency.
Metrics Year-on-Year
- Average area value
- 620,000.00 £Increased by 61.87 %
- Est sale value
- 226,394.00 £Decreased by 15.14 %
- Average area rental value
- 1,379.00 £/moIncreased by 10.67 %
- Est letting value
- 0.00 £/moDecreased by 100.00 %
- Est rental Yield
- 2.67 %Decreased by 31.54 %
- Crime Rate
- 46.00 %Unchanged by 0.00 %
Agent Activity
Davies & Way created the listing.
Nearby Schools
| Name | Type | Ofsted | Distance |
|---|---|---|---|
| Keynsham Children'S Centre | Children's Centre | 0.41 KM | |
| St John'S Church Of England Primary School | Academy Converter | 0.83 KM | |
| Somerdale Educate Together Primary Academy | Free Schools | 1.04 KM | |
| Wellsway School | Academy Converter | Good | 1.18 KM |
| Ikb Academy | Studio Schools | Requires improvement | 1.21 KM |
Images
Nearby Streets
| Name | Average Price | Average Sqft | Distance |
|---|---|---|---|
| Market Walk | £ 199,950 | 0 | 0.00 KM |
| Albert Road | £ 0 | 0 | 0.00 KM |
| Park Road | £ 0 | 0 | 0.00 KM |
| Windsor Avenue | £ 0 | 0 | 0.00 KM |
| Compton Green | £ 0 | 0 | 0.00 KM |
Nearby Transport
| Name | NLC | TLC | Distance |
|---|---|---|---|
| Keynsham | 3237 | KYN | 0.55 KM |
| Lawrence Hill | 3225 | LWH | 8.88 KM |
| Stapleton Road | 3250 | SRD | 9.66 KM |
Nearby Listings
| Address | Price | Type | Score | Distance |
|---|---|---|---|---|
| Temple Street, Keynsham, Bristol | £ 225,000 | BUY | 6 / 10 | 0.00 KM |
| Temple Street, Keynsham, Bristol | £ 350,000 | BUY | 5 / 10 | 0.02 KM |
| Temple Street, Keynsham, Bristol | £ 199,950 | BUY | 6 / 10 | 0.04 KM |
| Riverside View, Keynsham, Bristol | £ 255,000 | BUY | 6 / 10 | 0.06 KM |
| Riverside View, Temple Street, Keynsham | £ 220,000 | BUY | 5 / 10 | 0.06 KM |
Nearby Properties
| Address | Price | Distance |
|---|---|---|
| 39 Carpenters Lane | £ 170,000 | 0.12 KM |
| 35 Carpenters Lane | £ 160,500 | 0.12 KM |
| 37 Carpenters Lane | £ 160,000 | 0.12 KM |
| 38 Carpenters Lane | £ 160,000 | 0.12 KM |
| 40 Carpenters Lane | £ 133,000 | 0.12 KM |