Ben Rose says ..
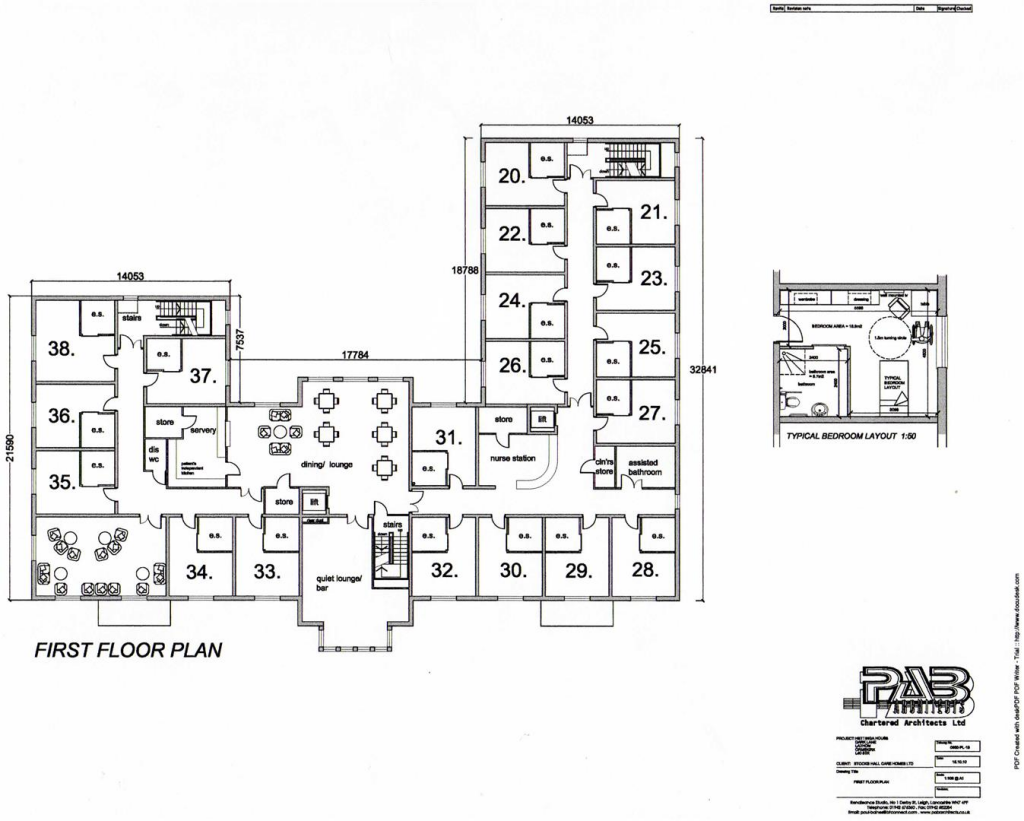
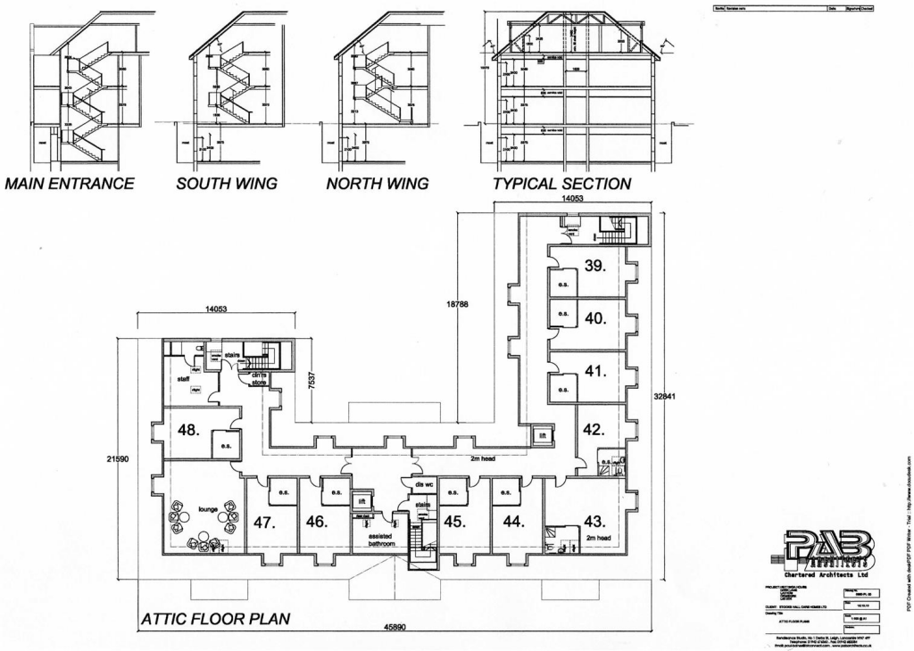
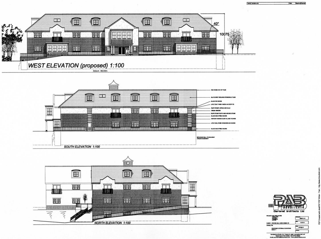
Ben Rose Estate Agents are pleased to present to market an incredible opportunity to acquire a circa 5 acre plot of land in a highly regarded part of Ormskirk. The land has previously had plans for a 48 bed nursing home to be erected on the site with its own entrance and exit roads. There is also...
Property Oracle says ..
Therefore, we give this property 7 / 10. *Disclaimer: This is our option and does constitute a recommendation or financial advice. Do your own research. *
- Price
- 6
- Condition
- 0
- Location
- 7
- Land
- 8
- Bedrooms
- 0
- Bathrooms
- 0
The heatmap indicates the level of crime in the area. The color of the heatmap indicates the crime severity and recency.
Metrics Year-on-Year
- Average area value
- 172,617.00 £Decreased by 13.74 %
- Average area rental value
- 835.00 £/moIncreased by 18.61 %
- Est rental Yield
- 5.80 %Increased by 37.44 %
- Crime Rate
- 1.00 %Unchanged by 0.00 %
from 200,116.00 £
from 704.00 £/mo
from 4.22 %
from 1.00 %
Agent Activity
Ben Rose created the listing.
Nearby Schools
| Name | Type | Ofsted | Distance |
|---|---|---|---|
| Ormskirk Academy | Academy Sponsor Led | 0.57 KM | |
| Ormskirk Church Of England Primary School | Voluntary Controlled School | Good | 0.88 KM |
| Wood Edge Independent School | Other Independent Special School | Requires improvement | 1.08 KM |
| The Acorns School | Pupil Referral Unit | Good | 1.19 KM |
| Edge Hill University | Higher Education Institutions | 1.41 KM |
Images
Nearby Streets
| Name | Average Price | Average Sqft | Distance |
|---|---|---|---|
| Bathwood Close | £ 270,000 | 0 | 0.00 KM |
| Derby Way | £ 234,998 | 0 | 0.00 KM |
| Tower View Close | £ 231,155 | 0 | 0.00 KM |
| Oak Green | £ 0 | 0 | 0.00 KM |
| Grove Park | £ 289,000 | 0 | 0.00 KM |
Nearby Transport
| Name | NLC | TLC | Distance |
|---|---|---|---|
| Ormskirk | 2281 | OMS | 1.48 KM |
| Aughton Park | 2215 | AUG | 3.57 KM |
| Burscough Junction | 2280 | BCJ | 4.20 KM |
| New Lane | 2358 | NLN | 4.48 KM |
| Burscough Bridge | 2279 | BCB | 4.81 KM |
Nearby Listings
| Address | Price | Type | Score | Distance |
|---|---|---|---|---|
| Dark Lane, Lathom, Ormskirk | £ 1,000,000 | BUY | 7 / 10 | 0.00 KM |
| Dark Lane, Lathom, L40 | £ 1,500,000 | BUY | 7 / 10 | 0.06 KM |
| Building Plot, Charlesbye Farm, Greetby Hill, Ormskirk, L39 2DT | £ 270,000 | BUY | 8 / 10 | 0.23 KM |
| Greetby Hill, Ormskirk | £ 800,000 | BUY | 8 / 10 | 0.23 KM |
| Greetby Hill, Ormskirk, L39 | £ 750,000 | BUY | 8 / 10 | 0.23 KM |
Nearby Properties
| Address | Price | Distance |
|---|---|---|
| 8 Charlesbye Close | £ 335,000 | 0.09 KM |
| 1 Charlesbye Close | £ 325,000 | 0.09 KM |
| 12 Charlesbye Close | £ 417,500 | 0.09 KM |
| 22 Charlesbye Avenue | £ 302,500 | 0.17 KM |
| 15 Charlesbye Avenue | £ 318,500 | 0.17 KM |