Sandhurst Street, Oadby, Leicester
By Auction House Readings
£ 150,000
Reviews
2 out of 5 stars
Auction House Readings says ..
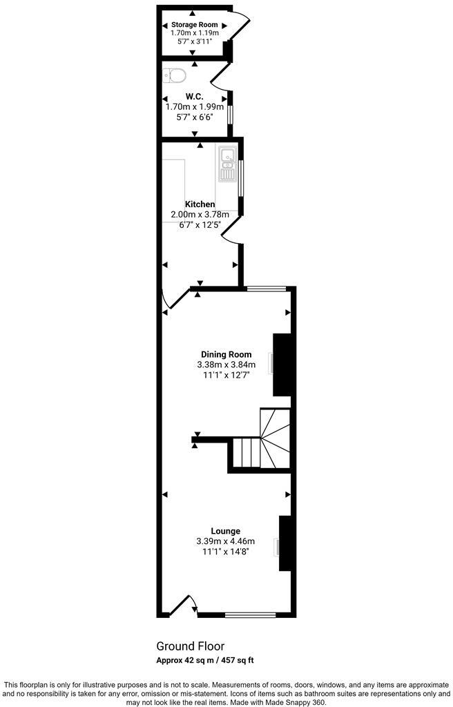
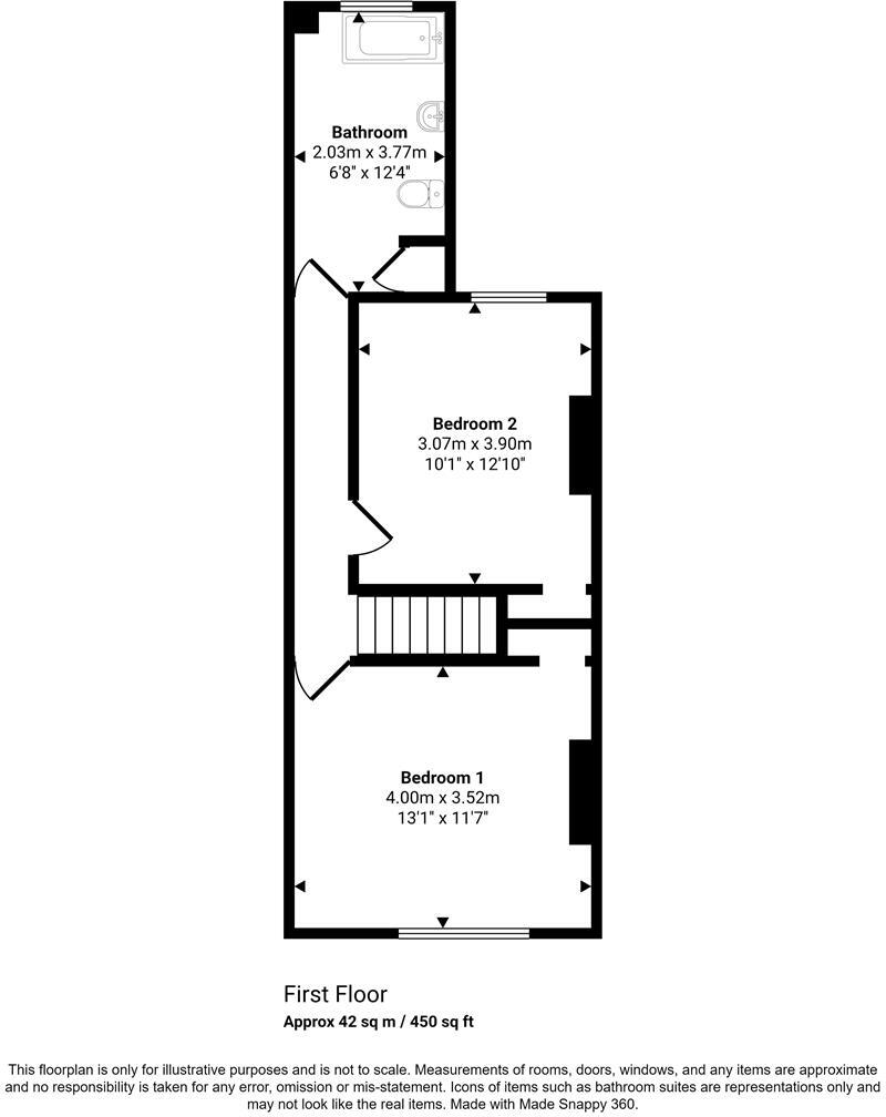
To be sold via NATIONAL TIMED ONLINE AUCTION BIDDING OPENS: 13:00 on Monday 15th December 2025 AUCTION ENDS: 13:00 on Tuesday 16th December 2025 Visit auctionhouse.co.uk/leicestershire A two bedroomed end-terraced house in need of modernisation. Lounge, dining room, kitchen...
Property Oracle says ..
This is a two-bedroom terraced house in Oadby, Leicestershire, presented by Auction House Readings. The property requires extensive renovation throughout, offering an opportunity for buyers to customize to their taste. It features a garden and is located near local schools and transportation links. The asking price reflects the condition of the property, making it an attractive investment for those willing to undertake a renovation project.
Therefore, we give this property 5 / 10. *Disclaimer: This is our option and does constitute a recommendation or financial advice. Do your own research. *
- Price
- 7
- Condition
- 3
- Location
- 7
- Land
- 6
- Bedrooms
- 2
- Bathrooms
- 1
The heatmap indicates the level of crime in the area. The color of the heatmap indicates the crime severity and recency.
Metrics Year-on-Year
- Average area value
- 230,000.00 £Decreased by 21.93 %
- Average area rental value
- 1,119.00 £/moIncreased by 11.01 %
- Est rental Yield
- 5.84 %Increased by 42.09 %
- Crime Rate
- 21.00 %Unchanged by 0.00 %
Agent Activity
Auction House Readings created the listing.
Nearby Schools
| Name | Type | Ofsted | Distance |
|---|---|---|---|
| Langmoor Primary School Oadby | Academy Converter | 0.65 KM | |
| Launde Primary School | Academy Converter | 0.85 KM | |
| Glenmere Community Primary School | Academy Converter | Outstanding | 1.41 KM |
| Saint John Fisher Catholic Voluntary Academy, Wigston, Leicestershire | Academy Converter | Good | 1.57 KM |
| Leicester High School For Girls | Other Independent School | 1.65 KM |
Images
Nearby Streets
| Name | Average Price | Average Sqft | Distance |
|---|---|---|---|
| North Street | £ 0 | 0 | 0.00 KM |
| Hornbeam Close | £ 0 | 0 | 0.00 KM |
| Albion Court | £ 0 | 0 | 0.00 KM |
| Beech Road | £ 353,750 | 0 | 0.00 KM |
| Walnut Close | £ 0 | 0 | 0.00 KM |
Nearby Transport
| Name | NLC | TLC | Distance |
|---|---|---|---|
| Leicester | 1947 | LEI | 5.57 KM |
| South Wigston | 1949 | SWS | 5.79 KM |
Nearby Listings
| Address | Price | Type | Score | Distance |
|---|---|---|---|---|
| Sandhurst Street, Oadby, Leicester | £ 150,000 | BUY | 5 / 10 | 0.00 KM |
| Sandhurst Street, Oadby | £ 240,000 | BUY | Unknown | 0.02 KM |
| Sandhurst Street, Oadby | £ 125,000 | BUY | 5 / 10 | 0.03 KM |
| Rowleys Court, Sandhurst Street, Oadby, Leicester | £ 135,000 | BUY | 7 / 10 | 0.05 KM |
| Sandhurst Street, Oadby | £ 240,000 | BUY | 6 / 10 | 0.06 KM |
Nearby Properties
| Address | Price | Distance |
|---|---|---|
| 63 Leicester Road | £ 196,000 | 0.03 KM |
| 75 Leicester Road | £ 340,000 | 0.03 KM |
| 69 Leicester Road | £ 236,000 | 0.03 KM |
| 79 Leicester Road | £ 295,000 | 0.03 KM |
| 71 Leicester Road | £ 209,000 | 0.03 KM |