Soundwell Road | Kingswood
MA

Soundwell Road | Kingswood

By Maggs & Allen

£ 300,000

Reviews

3 out of 5 stars

Maggs & Allen says ..

A tastefully-decorated, two double bedroom Victorian home, offering a wealth of character and spacious accommodation.

Property Oracle says ..

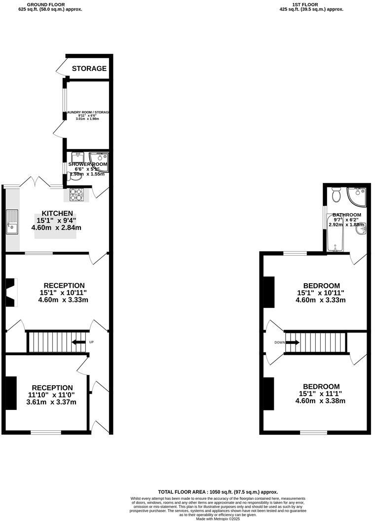
This property is a 2 bedroom, 2 bathroom terraced house on Soundwell Road in Kingswood, Bristol. It is listed at £300,000. The property has a modern kitchen with a conservatory extension that opens onto a garden. The garden is of a reasonable size for a terraced property in this area, offering a private outdoor space. The interior is presented in good condition, having been recently decorated and modernised. The property benefits from original features such as fireplaces which have been retained and integrated into the modern design. The average price for a property in the area is £297,551, with an average price per square foot of £392. This property is slightly larger than average at 1,049.48 sqft. Considering the property’s condition, the size of the garden, and its location, the list price of £300,000 appears to be within the reasonable range for the area. Nearby comparable properties on Soundwell Road range from £135,000 to £425,000, reflecting the variability in size and condition of properties on the road. The lack of sqft data for nearby listings makes direct comparison difficult. The location is convenient, with several primary and secondary schools within a short distance, rated “Good” or “Outstanding” by Ofsted. There are also several train stations within a reasonable commute.

Therefore, we give this property 7 / 10. *Disclaimer: This is our option and does constitute a recommendation or financial advice. Do your own research. *

Price
7
Condition
9
Location
8
Land
7
Bedrooms
2
Bathrooms
2
Sqft (est)
1,049.48

The heatmap indicates the level of crime in the area. The color of the heatmap indicates the crime severity and recency.

Metrics Year-on-Year

Average area value
383,749.00 £
Increased by 21.52 %
from 315,786.00 £
Est sale value
458,622.76 £
Increased by 45.18 %
from 315,893.48 £
Average area rental value
1,248.00 £/mo
Decreased by 5.60 %
from 1,322.00 £/mo
Est letting value
1,049.48 £/mo
Unchanged by 0.00 %
from 1,049.48 £/mo
Est rental Yield
3.90 %
Decreased by 22.31 %
from 5.02 %
Crime Rate
6.00 %
Unchanged by 0.00 %
from 6.00 %

Agent Activity

  • Maggs & Allen created the listing.

Nearby Schools

NameTypeOfstedDistance
Two Mile Hill Primary SchoolCommunity SchoolGood0.68 KM
Minerva Primary AcademyAcademy Sponsor LedGood0.85 KM
Hillfields Children'S CentreChildren's Centre Linked Site0.85 KM
John Cabot AcademyAcademy Sponsor LedGood0.93 KM
St Stephen'S Church Of England Junior School, SoundwellVoluntary Controlled SchoolOutstanding1.04 KM

Images

KS2B6006.jpg KS2B6009.jpg KS2B6029.jpg KS2B6035.jpg KS2B6038.jpg KS2B6040.jpg KS2B6061.jpg KS2B6065.jpg KS2B6067.jpg KS2B6072.jpg KS2B6079.jpg KS2B6080.jpg KS2B6081.jpg KS2B6084.jpg KS2B6085.jpg KS2B6088.jpg KS2B6091.jpg KS2B6096.jpg KS2B6106.jpg KS2B6002.jpg KS2B6045.jpg

Nearby Streets

NameAverage PriceAverage SqftDistance
Broad Road £ 000.00 KM
Maple Court £ 227,50000.00 KM
Dorset Road £ 308,75000.00 KM
Castle Road £ 000.00 KM
Kimberley Road £ 260,00000.00 KM

Nearby Transport

NameNLCTLCDistance
Keynsham3237KYN5.65 KM
Lawrence Hill3225LWH5.69 KM
Stapleton Road3250SRD5.83 KM
Bristol Parkway3230BPW6.23 KM
Filton Abbey Wood3235FIT6.96 KM

Nearby Listings

AddressPriceTypeScoreDistance
Soundwell Road | Kingswood £ 300,000BUY7 / 100.00 KM
Soundwell Road, Lodge Hill, Bristol, BS15 £ 355,000BUY6 / 100.07 KM
Soundwell Road, Bristol, BS15 £ 350,000BUY6 / 100.10 KM
Soundwell Road, BRISTOL, Avon, BS15 £ 270,000BUY6 / 100.11 KM
May Street, Bristol, Somerset, BS15 £ 350,000BUYUnknown0.11 KM

Nearby Properties

AddressPriceDistance
420 Soundwell Road £ 360,0000.03 KM
404 Soundwell Road £ 325,0000.03 KM
412 Soundwell Road £ 225,0000.03 KM
416 Soundwell Road £ 196,0000.03 KM
410 Soundwell Road £ 156,0000.03 KM