Meadow Lane, Shirebrook, NG20 8FY
By Linden Homes Yorkshire
£ 264,995
Reviews
3 out of 5 stars
Linden Homes Yorkshire says ..
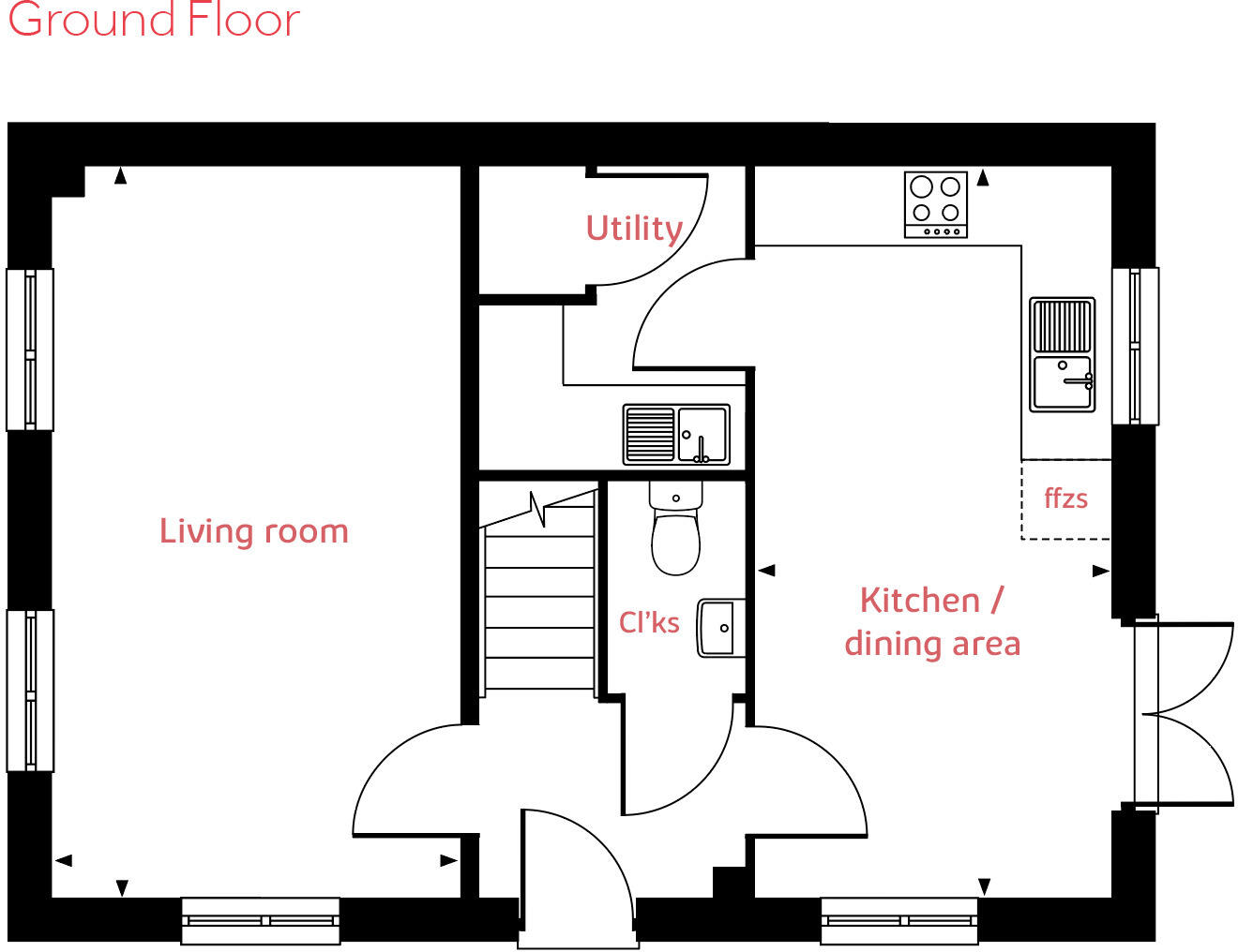
The Mountford is a beautifully appointed detached 3-bedroom property, set across two storeys. Enter into the airy hallway space, with a large living room to your right, and an open-plan kitchen/dining/living area to your left. The dual-aspect living room is an elegant, soothing space,...
Property Oracle says ..
This is a modern, detached property located in Shirebrook South, Bolsover. The house features three bedrooms and appears to be in excellent condition, with contemporary finishes throughout. The property includes a garden, enhancing its appeal. The listing price of £264,995 seems competitive given the property’s size, condition, and location. Nearby amenities include schools and transportation links, making it a suitable option for families and commuters.
Therefore, we give this property 7 / 10. *Disclaimer: This is our option and does constitute a recommendation or financial advice. Do your own research. *
- Price
- 7
- Condition
- 9
- Location
- 6
- Land
- 6
- Bedrooms
- 3
- Bathrooms
- 0
- Sqft (est)
- 530.00
The heatmap indicates the level of crime in the area. The color of the heatmap indicates the crime severity and recency.
Metrics Year-on-Year
- Average area value
- 355,556.00 £Increased by 28.46 %
- Est sale value
- 185,500.00 £Increased by 30.11 %
- Average area rental value
- 1,169.00 £/moDecreased by 2.83 %
- Est letting value
- 530.00 £/moUnchanged by 0.00 %
- Est rental Yield
- 3.95 %Decreased by 24.33 %
- Crime Rate
- 10.00 %Unchanged by 0.00 %
Agent Activity
Linden Homes Yorkshire created the listing.
Nearby Schools
| Name | Type | Ofsted | Distance |
|---|---|---|---|
| Model Village Primary School | Academy Converter | 1.37 KM | |
| Shirebrook Academy | Academy Sponsor Led | Requires improvement | 1.76 KM |
| The Park Junior School | Community School | Good | 1.77 KM |
| The Park Infant & Nursery School | Community School | Good | 1.77 KM |
| Shirebrook Children'S Centre | Children's Centre | 1.86 KM |
Images
Nearby Streets
| Name | Average Price | Average Sqft | Distance |
|---|---|---|---|
| Harvest Road | £ 0 | 0 | 0.00 KM |
| Cornflower Avenue | £ 0 | 0 | 0.00 KM |
| Hillsway | £ 0 | 0 | 0.00 KM |
| Eider Close | £ 0 | 0 | 0.00 KM |
| Summit Drive | £ 140,000 | 0 | 0.00 KM |
Nearby Transport
| Name | NLC | TLC | Distance |
|---|---|---|---|
| Shirebrook | 1595 | SHB | 3.16 KM |
| Mansfield Woodhouse | 1728 | MSW | 4.54 KM |
| Langwith-Whaley Thorns | 1871 | LAG | 4.74 KM |
| Mansfield | 1727 | MFT | 6.71 KM |
| Creswell | 1874 | CWD | 7.92 KM |
Nearby Listings
| Address | Price | Type | Score | Distance |
|---|---|---|---|---|
| Meadow Lane, Shirebrook, NG20 8FY | £ 169,995 | BUY | 7 / 10 | 0.00 KM |
| Meadow Lane, Shirebrook, NG20 8FY | £ 269,995 | BUY | 6 / 10 | 0.00 KM |
| Bilberry Drive, Shirebrook, Mansfield | £ 205,000 | BUY | 7 / 10 | 0.00 KM |
| Meadow Lane, Shirebrook, NG20 8FY | £ 199,995 | BUY | 7 / 10 | 0.00 KM |
| Meadow Lane, Shirebrook, NG20 8FY | £ 264,995 | BUY | 7 / 10 | 0.00 KM |
Nearby Properties
| Address | Price | Distance |
|---|---|---|
| 22 Heather Way | £ 110,000 | 0.05 KM |
| 3 Heather Way | £ 139,950 | 0.05 KM |
| 12 Maiden Road | £ 120,000 | 0.06 KM |
| 5 Maiden Road | £ 89,950 | 0.06 KM |
| 1 Harebell Drive | £ 205,000 | 0.14 KM |