Butters John Bee says ..
Discover this well-presented two-bedroom terraced property, offering a perfect blend of comfort and functionality. Ideal for first-time buyers, downsizers, or investors, this home features spacious living areas and sought-after amenities
Property Oracle says ..
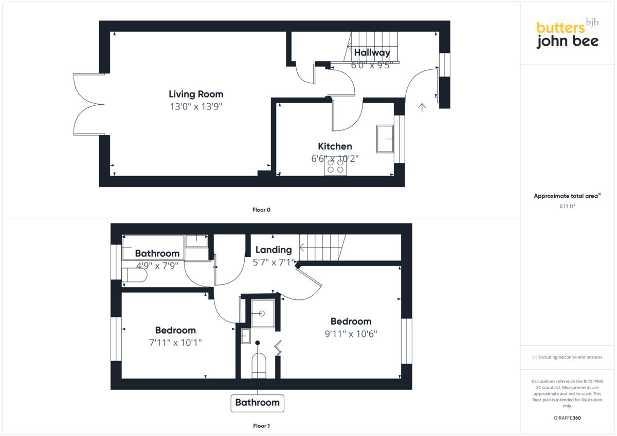
This two-bedroom mews property in Tomkinson Close, Leighton, Crewe, presents a good opportunity for first-time buyers or small families. The house includes two bathrooms, a garden, and is located in a residential area with access to local amenities and schools. While the property may benefit from some cosmetic updates, it appears to be in generally good condition. The asking price of £150,000 seems reasonable given the location and features, making it a potentially attractive investment.
Therefore, we give this property 6 / 10. *Disclaimer: This is our option and does constitute a recommendation or financial advice. Do your own research. *
- Price
- 8
- Condition
- 6
- Location
- 6
- Land
- 7
- Bedrooms
- 2
- Bathrooms
- 2
- Sqft (est)
- 611.00
The heatmap indicates the level of crime in the area. The color of the heatmap indicates the crime severity and recency.
Metrics Year-on-Year
- Average area value
- 202,758.00 £Decreased by 11.64 %
- Est sale value
- 124,644.00 £Increased by 4.08 %
- Average area rental value
- 1,135.00 £/moIncreased by 13.50 %
- Est letting value
- 611.00 £/mo
- Est rental Yield
- 6.72 %Increased by 28.49 %
- Crime Rate
- 7.00 %Unchanged by 0.00 %
Agent Activity
Butters John Bee created the listing.
Nearby Schools
| Name | Type | Ofsted | Distance |
|---|---|---|---|
| Leighton Academy | Academy Converter | Requires improvement | 0.26 KM |
| Underwood West Academy | Academy Converter | Good | 1.13 KM |
| Oaktree Children'S Centre | Children's Centre | 1.23 KM | |
| Mablins Lane Community Primary School | Community School | Good | 1.50 KM |
| St Michael'S Community Academy | Academy Sponsor Led | Requires improvement | 1.84 KM |
Images
Nearby Streets
| Name | Average Price | Average Sqft | Distance |
|---|---|---|---|
| Wakefield Close | £ 160,000 | 0 | 0.00 KM |
| Linnet Close | £ 0 | 0 | 0.00 KM |
| Turner Close | £ 0 | 0 | 0.00 KM |
| Priory Close | £ 200,000 | 0 | 0.00 KM |
| Douglas Forest Close | £ 240,000 | 0 | 0.00 KM |
Nearby Transport
| Name | NLC | TLC | Distance |
|---|---|---|---|
| Crewe | 1243 | CRE | 4.45 KM |
| Nantwich | 1247 | NAN | 7.86 KM |
| Sandbach | 1261 | SDB | 9.16 KM |
| Winsford | 2269 | WSF | 9.32 KM |
Nearby Listings
| Address | Price | Type | Score | Distance |
|---|---|---|---|---|
| Tomkinson Close, Crewe | £ 150,000 | BUY | 6 / 10 | 0.00 KM |
| Rubin Drive, Crewe | £ 285,000 | BUY | 7 / 10 | 0.10 KM |
| Rubin Drive, Crewe | £ 295,000 | BUY | 7 / 10 | 0.10 KM |
| Allman Close, Crewe, CW1 | £ 152,500 | BUY | 6 / 10 | 0.11 KM |
| Barnato Close, Crewe, CW1 | £ 375,000 | BUY | 6 / 10 | 0.11 KM |
Nearby Properties
| Address | Price | Distance |
|---|---|---|
| 9 Tomkinson Close | £ 78,500 | 0.01 KM |
| 14 Tomkinson Close | £ 114,500 | 0.01 KM |
| 3 Tomkinson Close | £ 104,500 | 0.01 KM |
| 12 Tomkinson Close | £ 113,000 | 0.01 KM |
| 11 Tomkinson Close | £ 114,950 | 0.01 KM |