Hyde Apartments, Battersea, London, SW11
By Foxtons
£ 950,000
Reviews
3 out of 5 stars
Foxtons says ..
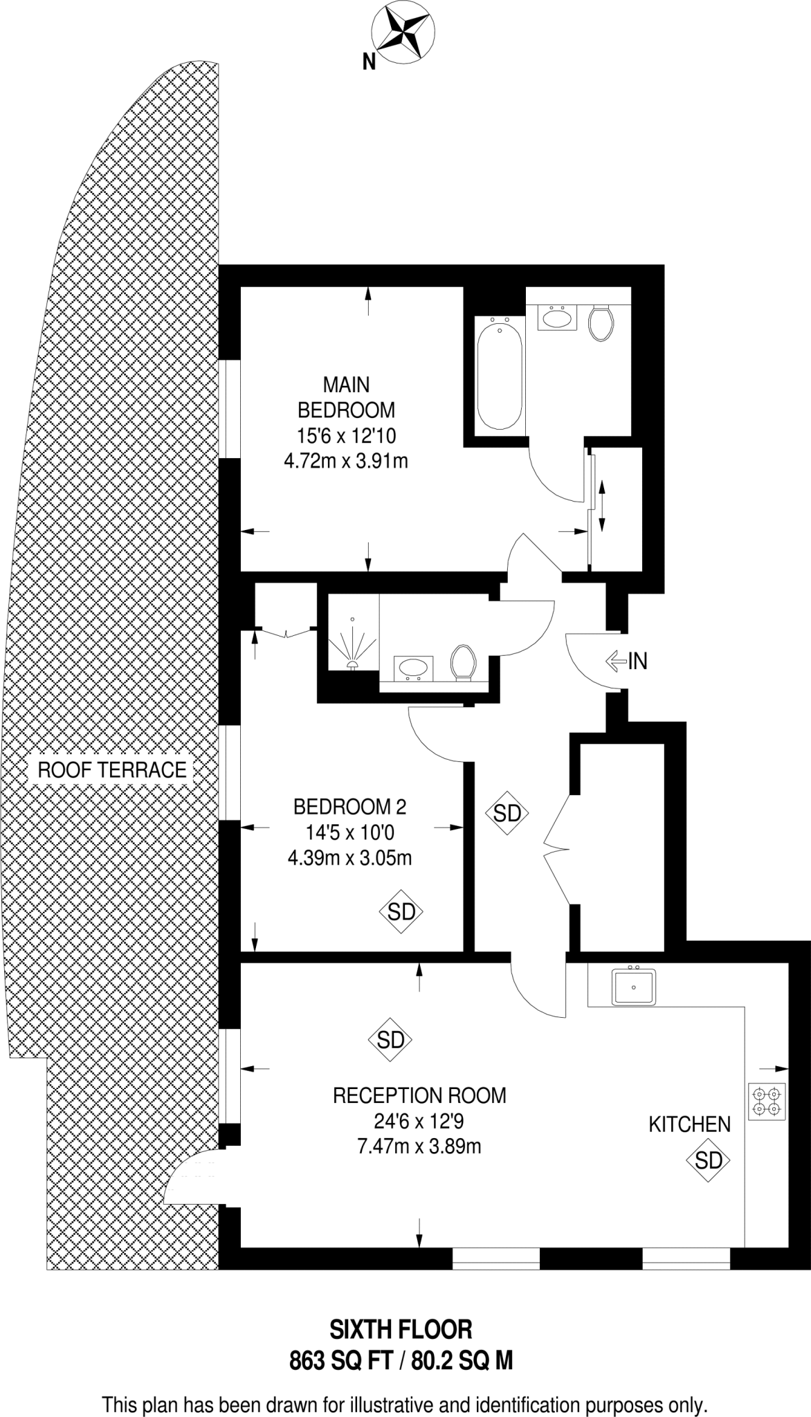
Hyde Apartments only moments away from Battersea Park, a stunning collection of brand new 2 bed penthouses apartments offering open plan living and spectacular views across the City from the large private roof terrace.
Property Oracle says ..
This property is a modern two bedroom flat located in the Hyde Apartments, Battersea, London. The apartment benefits from a private balcony offering views of the surrounding area. The property is finished to a high standard with modern fixtures and fittings throughout. The location is convenient with good transport links and nearby schools. The list price is slightly above the average price per square foot for the area but considering the modern condition, private balcony and location, it could be considered reasonable.
Therefore, we give this property 7 / 10. *Disclaimer: This is our option and does constitute a recommendation or financial advice. Do your own research. *
- Price
- 8
- Condition
- 10
- Location
- 9
- Land
- 1
- Bedrooms
- 2
- Bathrooms
- 2
- Sqft (est)
- 863.27
The heatmap indicates the level of crime in the area. The color of the heatmap indicates the crime severity and recency.
Metrics Year-on-Year
- Average area value
- 977,174.00 £Increased by 2.62 %
- Est sale value
- 948,733.73 £Increased by 8.81 %
- Average area rental value
- 2,684.00 £/moIncreased by 1.51 %
- Est letting value
- 2,589.81 £/moIncreased by 50.00 %
- Est rental Yield
- 3.30 %Decreased by 0.90 %
- Crime Rate
- 5.00 %Unchanged by 0.00 %
Agent Activity
Foxtons created the listing.
Nearby Schools
| Name | Type | Ofsted | Distance |
|---|---|---|---|
| Westbridge Academy | Academy Sponsor Led | Good | 0.35 KM |
| Saint John Bosco College | Voluntary Aided School | Good | 0.41 KM |
| L'Ecole De Battersea | Other Independent School | Outstanding | 0.51 KM |
| Somerset Nursery School And Children'S Centre | Local Authority Nursery School | Outstanding | 0.64 KM |
| Thomas'S Battersea | Other Independent School | 0.64 KM |
Images
Nearby Streets
| Name | Average Price | Average Sqft | Distance |
|---|---|---|---|
| Surrey Lane Estate | £ 0 | 0 | 0.00 KM |
| Patricesy Mews | £ 0 | 0 | 0.00 KM |
| A3220 | £ 0 | 0 | 0.00 KM |
| Carriage Drive North | £ 0 | 0 | 0.00 KM |
| Foxmore Street | £ 0 | 0 | 0.00 KM |
Nearby Transport
| Name | NLC | TLC | Distance |
|---|---|---|---|
| Clapham Junction | 5595 | CLJ | 1.40 KM |
| Imperial Wharf | 9586 | IMW | 1.54 KM |
| Battersea Park | 5420 | BAK | 2.38 KM |
| Queenstown Road (Battersea) | 5596 | QRB | 2.48 KM |
| Wandsworth Town | 5576 | WNT | 2.74 KM |
Nearby Listings
| Address | Price | Type | Score | Distance |
|---|---|---|---|---|
| Hyde Apartments, Battersea, London, SW11 | £ 585,000 | BUY | 7 / 10 | 0.00 KM |
| Hyde Apartments, Battersea, London, SW11 | £ 950,000 | BUY | 7 / 10 | 0.00 KM |
| Hyde Apartments, London, SW11 | £ 950,000 | BUY | 8 / 10 | 0.03 KM |
| Butler Court, Battersea, London, SW11 | £ 650,000 | BUY | Unknown | 0.04 KM |
| Butler Court, Hyde Lane, SW11 | £ 775,000 | BUY | 7 / 10 | 0.06 KM |
Nearby Properties
| Address | Price | Distance |
|---|---|---|
| 29 Henty Close | £ 417,500 | 0.09 KM |
| 36 Henty Close | £ 167,500 | 0.09 KM |
| 33 Henty Close | £ 385,000 | 0.09 KM |
| 11 Henty Close | £ 390,000 | 0.09 KM |
| 10 Henty Close | £ 375,000 | 0.09 KM |