Haybrook says ..
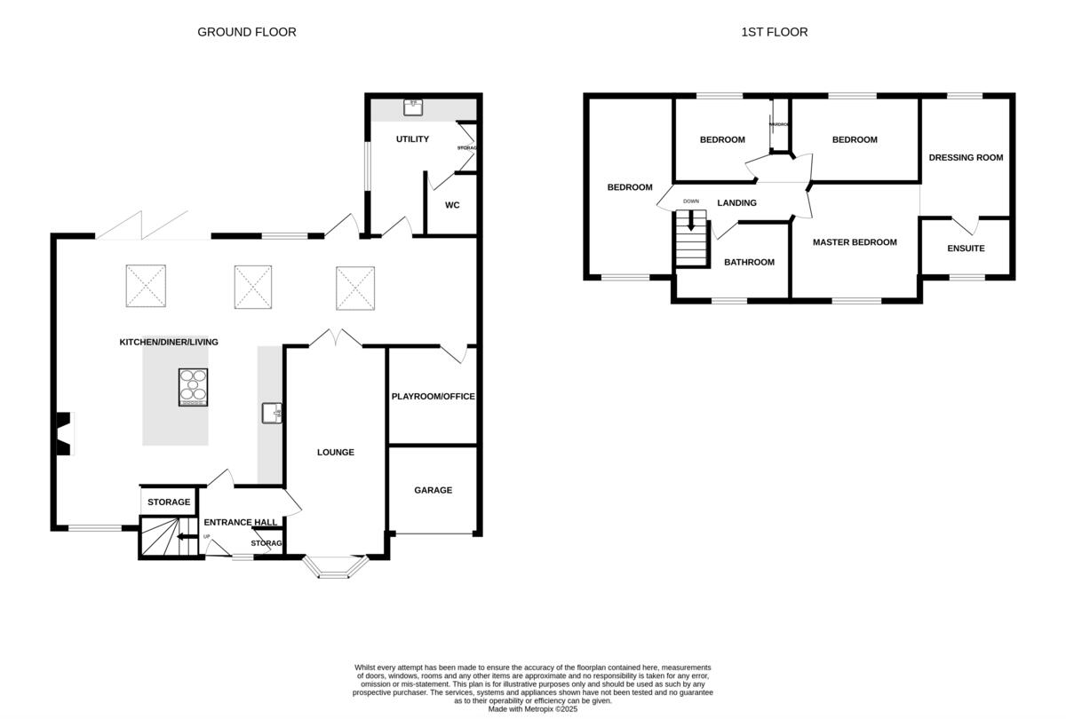
Opportunities like this are few and far between. This beautifully extended four-bedroom detached family home offers the perfect blend of space, style, and setting – backing directly onto farmland and enjoying uninterrupted field views, it's a private haven in a peaceful, semi-rural location
Property Oracle says ..
Therefore, we give this property 7 / 10. *Disclaimer: This is our option and does constitute a recommendation or financial advice. Do your own research. *
- Price
- 6
- Condition
- 8
- Location
- 7
- Land
- 8
- Bedrooms
- 4
- Bathrooms
- 2
- Sqft (est)
- 1,805.00
The heatmap indicates the level of crime in the area. The color of the heatmap indicates the crime severity and recency.
Metrics Year-on-Year
- Average area value
- 276,071.00 £Increased by 29.23 %
- Est sale value
- 604,675.00 £Increased by 50.90 %
- Average area rental value
- 713.00 £/moDecreased by 20.69 %
- Est letting value
- 0.00 £/mo
- Est rental Yield
- 3.10 %Decreased by 38.61 %
- Crime Rate
- 0.00 %
from 213,623.00 £
from 400,710.00 £
from 899.00 £/mo
from 0.00 £/mo
from 5.05 %
from 0.00 %
Agent Activity
Haybrook created the listing.
Nearby Schools
| Name | Type | Ofsted | Distance |
|---|---|---|---|
| St Thomas More Catholic Primary, A Voluntary Academy | Academy Converter | Good | 1.03 KM |
| Yewlands Academy | Academy Sponsor Led | 1.08 KM | |
| Mansel Primary | Academy Sponsor Led | Good | 1.17 KM |
| Woolley Wood School | Community Special School | Good | 1.19 KM |
| Ecclesfield Primary School | Community School | Good | 1.55 KM |
Images
Nearby Streets
| Name | Average Price | Average Sqft | Distance |
|---|---|---|---|
| Remington Road | £ 0 | 0 | 0.00 KM |
| Hill Top Rise | £ 0 | 0 | 0.00 KM |
| Deerlands Avenue | £ 375,000 | 0 | 0.00 KM |
| St. Wandrilles Close | £ 0 | 0 | 0.00 KM |
| Holme Lane | £ 0 | 0 | 0.00 KM |
Nearby Transport
| Name | NLC | TLC | Distance |
|---|---|---|---|
| Chapeltown (South Yorkshire) | 6664 | CLN | 2.82 KM |
| Sheffield | 6691 | SHF | 7.31 KM |
| Meadowhall | 6663 | MHS | 7.93 KM |
| Elsecar | 6667 | ELR | 8.67 KM |
| Darnall | 6729 | DAN | 9.81 KM |
Nearby Listings
| Address | Price | Type | Score | Distance |
|---|---|---|---|---|
| The Wheel, Ecclesfield | £ 550,000 | BUY | 7 / 10 | 0.00 KM |
| Cinder Hill Lane, Ecclesfield, Sheffield | £ 525,000 | BUY | 7 / 10 | 0.36 KM |
| Endfield Road, Parson Cross, S5 | £ 220,000 | BUY | Unknown | 0.48 KM |
| Town End Road, Ecclesfield, Sheffield | £ 450,000 | BUY | 6 / 10 | 0.49 KM |
| Endfield Road, Sheffield | £ 200,000 | BUY | Unknown | 0.51 KM |
Nearby Properties
| Address | Price | Distance |
|---|---|---|
| 170 The Wheel | £ 169,000 | 0.04 KM |
| 186 The Wheel | £ 266,000 | 0.04 KM |
| 344 The Wheel | £ 162,000 | 0.04 KM |
| 198 The Wheel | £ 250,500 | 0.04 KM |
| 346 The Wheel | £ 180,000 | 0.04 KM |