KE
Devonshire Road, Dover
By Kent Sales and Lettings
£ 170,000
Reviews
3 out of 5 stars
Kent Sales and Lettings says ..
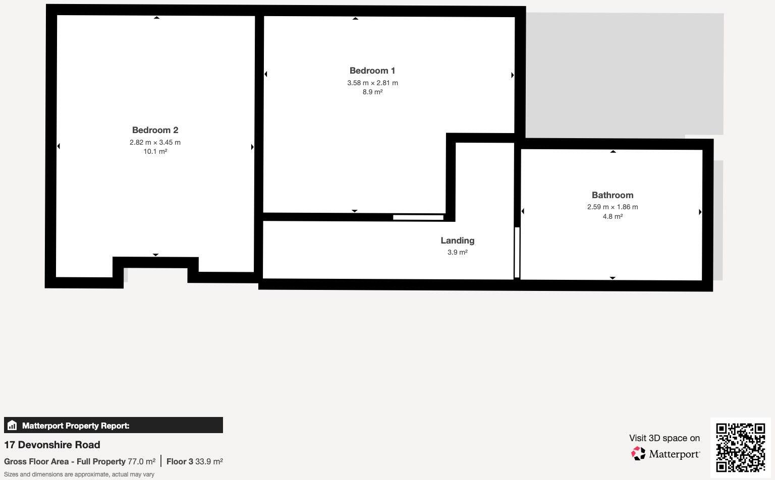
A well presented TWO bedroom home, ideal as an investment or for a first time buyer.
Property Oracle says ..
Therefore, we give this property 6 / 10. *Disclaimer: This is our option and does constitute a recommendation or financial advice. Do your own research. *
- Price
- 8
- Condition
- 6
- Location
- 7
- Land
- 5
- Bedrooms
- 2
- Bathrooms
- 1
- Sqft (est)
- 414.41
The heatmap indicates the level of crime in the area. The color of the heatmap indicates the crime severity and recency.
Metrics Year-on-Year
- Average area value
- 174,500.00 £Decreased by 9.78 %
- Est sale value
- 196,430.34 £Increased by 120.47 %
- Average area rental value
- 983.00 £/moDecreased by 9.82 %
- Est letting value
- 828.82 £/moIncreased by 100.00 %
- Est rental Yield
- 6.76 %Unchanged by 0.00 %
- Crime Rate
- 10.00 %Unchanged by 0.00 %
from 193,425.00 £
from 89,098.15 £
from 1,090.00 £/mo
from 414.41 £/mo
from 6.76 %
from 10.00 %
Agent Activity
Kent Sales and Lettings created the listing.
Nearby Schools
| Name | Type | Ofsted | Distance |
|---|---|---|---|
| The Daisy Children'S Centre | Children's Centre Linked Site | 0.26 KM | |
| Priory Fields School | Academy Converter | Good | 0.29 KM |
| Vale View Community School | Academy Converter | 0.47 KM | |
| Dover Grammar School For Boys | Foundation School | Good | 0.59 KM |
| Astor Secondary School | Academy Converter | Requires improvement | 0.76 KM |
Images
Nearby Streets
| Name | Average Price | Average Sqft | Distance |
|---|---|---|---|
| Hamilton Road | £ 0 | 0 | 0.00 KM |
| Monins Road | £ 210,000 | 0 | 0.00 KM |
| Belgrave Road | £ 230,000 | 0 | 0.00 KM |
| West Street | £ 0 | 0 | 0.00 KM |
| Anstee Road | £ 240,000 | 0 | 0.00 KM |
Nearby Transport
| Name | NLC | TLC | Distance |
|---|---|---|---|
| Dover Priory | 5033 | DVP | 1.14 KM |
| Kearsney (Kent) | 5038 | KSN | 3.47 KM |
| Martin Mill | 5040 | MTM | 7.49 KM |
| Shepherds Well | 5186 | SPH | 9.84 KM |
Nearby Listings
| Address | Price | Type | Score | Distance |
|---|---|---|---|---|
| Devonshire Road, Dover | £ 170,000 | BUY | 6 / 10 | 0.00 KM |
| Astor Avenue, Dover CT17 | £ 220,000 | BUY | 6 / 10 | 0.07 KM |
| Northbourne Avenue, Dover, CT17 | £ 185,000 | BUY | 6 / 10 | 0.09 KM |
| Astor Avenue, Dover, CT17 | £ 200,000 | BUY | Unknown | 0.12 KM |
| Hamilton Road, Dover | £ 220,000 | BUY | 6 / 10 | 0.18 KM |
Nearby Properties
| Address | Price | Distance |
|---|---|---|
| 5 Devonshire Road | £ 205,000 | 0.01 KM |
| 20 Devonshire Road | £ 107,000 | 0.01 KM |
| 37 Devonshire Road | £ 135,000 | 0.01 KM |
| 47 Devonshire Road | £ 148,500 | 0.01 KM |
| 12 Devonshire Road | £ 125,495 | 0.01 KM |