Brookwood Farm Drive, Knaphill, Woking, Surrey, GU21
By Seymours Estate Agents
£ 530,000
Reviews
3 out of 5 stars
Seymours Estate Agents says ..
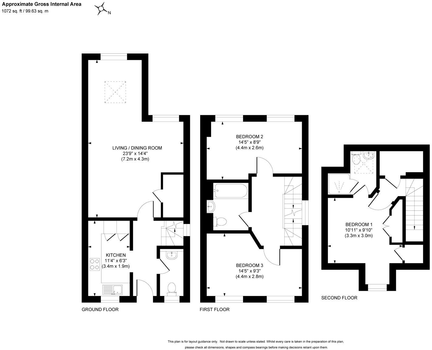
This semi-detached home is offered to the market in excellent condition and ideally located for those who commute as Brookwood Mainline Station is a short walk away and offers easy access to London Waterloo. The accommodation is arranged over three floors and includes three well-proportioned...
Property Oracle says ..
This property is a three-bedroom, two-bathroom house located in Knaphill, Woking, Surrey. Based on the provided images, the property appears to be in excellent condition, with a modern, well-maintained interior and exterior. The kitchen and bathrooms are contemporary and updated. There is also a patio and garden area, which adds to the appeal. The property is conveniently located near Brookwood Mainline Station, providing easy access to London Waterloo. Several schools are also within a reasonable distance. While the plot size is not specified, the available photos show a small, manageable garden. Compared to similar properties in the area, the list price of £530,000 seems slightly above average but reasonable considering the property’s condition and location. The average price for properties in the area is £511,523, and the average price per square foot is £483. This property is 1072.41 sqft, and therefore the price per sqft is approximately £494 which is slightly above average. However, given its apparent excellent condition and proximity to transport links and schools, the price is justifiable.
Therefore, we give this property 7 / 10. *Disclaimer: This is our option and does constitute a recommendation or financial advice. Do your own research. *
- Price
- 7
- Condition
- 9
- Location
- 8
- Land
- 6
- Bedrooms
- 3
- Bathrooms
- 2
- Sqft (est)
- 1,072.41
The heatmap indicates the level of crime in the area. The color of the heatmap indicates the crime severity and recency.
Metrics Year-on-Year
- Average area value
- 586,400.00 £Increased by 18.76 %
- Est sale value
- 510,467.16 £Increased by 6.01 %
- Average area rental value
- 2,150.00 £/moIncreased by 9.47 %
- Est letting value
- 1,072.41 £/moUnchanged by 0.00 %
- Est rental Yield
- 4.40 %Decreased by 7.76 %
- Crime Rate
- 8.00 %Unchanged by 0.00 %
Agent Activity
Seymours Estate Agents created the listing.
Nearby Schools
| Name | Type | Ofsted | Distance |
|---|---|---|---|
| The Knaphill Lower School | Academy Converter | 0.74 KM | |
| Brookwood Primary School | Academy Sponsor Led | Good | 0.81 KM |
| Brookwood & Pirbright Sure Start Children'S Centre | Children's Centre | 0.86 KM | |
| Knaphill School | Academy Converter | 1.02 KM | |
| Bisley Cofe Primary School | Voluntary Aided School | Good | 1.46 KM |
Images
Nearby Streets
| Name | Average Price | Average Sqft | Distance |
|---|---|---|---|
| Gloucester Close | £ 735,000 | 0 | 0.00 KM |
| Oak Tree Road | £ 0 | 0 | 0.00 KM |
| Guernsey Way | £ 0 | 0 | 0.00 KM |
| Stafford Lake | £ 0 | 0 | 0.00 KM |
| Trinity Road | £ 660,000 | 0 | 0.00 KM |
Nearby Transport
| Name | NLC | TLC | Distance |
|---|---|---|---|
| Brookwood | 5687 | BKO | 1.08 KM |
| Worplesdon | 5686 | WPL | 5.93 KM |
| Woking | 5685 | WOK | 8.21 KM |
| Wanborough | 5639 | WAN | 8.55 KM |
| Bagshot | 5681 | BAG | 8.63 KM |
Nearby Listings
| Address | Price | Type | Score | Distance |
|---|---|---|---|---|
| Brookwood Farm Drive, Knaphill, Woking, Surrey, GU21 | £ 530,000 | BUY | 7 / 10 | 0.00 KM |
| Brookwood Farm Drive, Knaphill, Woking, Surrey, GU21 | £ 349,950 | BUY | 5 / 10 | 0.03 KM |
| Brookwood Farm Drive, Knaphill, Woking, GU21 | £ 400,000 | BUY | 6 / 10 | 0.03 KM |
| Hereford Close, Knaphill, Woking, Surrey, GU21 | £ 775,000 | BUY | 7 / 10 | 0.04 KM |
| Brookwood Farm Drive, Knaphill, Woking, Surrey, GU21 | £ 310,000 | BUY | 5 / 10 | 0.04 KM |
Nearby Properties
| Address | Price | Distance |
|---|---|---|
| 27 Brookwood Farm Drive | £ 575,000 | 0.05 KM |
| 31 Brookwood Farm Drive | £ 695,000 | 0.05 KM |
| 21 Brookwood Farm Drive | £ 720,000 | 0.05 KM |
| 12 Brookwood Farm Drive | £ 720,000 | 0.08 KM |
| 38 Brookwood Farm Drive | £ 407,500 | 0.08 KM |