Norman Road, St Leonards-On-Sea
By M&W Sales and Lettings
£ 400,000
Reviews
2 out of 5 stars
M&W Sales and Lettings says ..
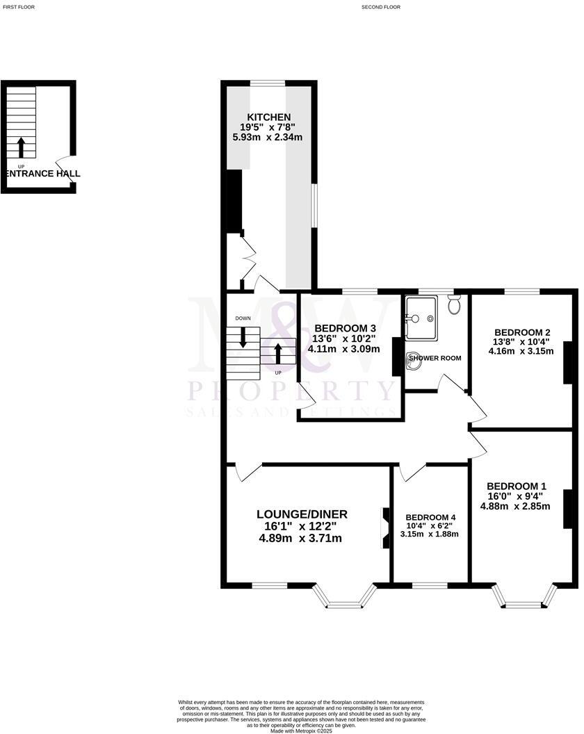
A Rare and Spacious Four-Bedroom Maisonette in the heart of St Leonards Occupying the upper floors of an elegant period building, this substantial four-bedroom maisonette enjoys an enviable position moments from the seafront and surrounded by independent galleries, cafés, and boutique sh...
Property Oracle says ..
This is a 4-bedroom maisonette in Central St Leonards. The property benefits from a modern kitchen and bathroom, suggesting recent renovations. However, some rooms are basic and may need further updates. The property’s location is a strong point, being close to the sea and the train station. The lack of a garden might be a drawback for some buyers. The price is higher than the average for the area, but the size of the property could justify it.
Therefore, we give this property 5 / 10. *Disclaimer: This is our option and does constitute a recommendation or financial advice. Do your own research. *
- Price
- 7
- Condition
- 6
- Location
- 7
- Land
- 3
- Bedrooms
- 4
- Bathrooms
- 1
The heatmap indicates the level of crime in the area. The color of the heatmap indicates the crime severity and recency.
Metrics Year-on-Year
- Average area value
- 225,325.00 £Decreased by 9.99 %
- Average area rental value
- 1,094.00 £/moIncreased by 7.25 %
- Est rental Yield
- 5.83 %Increased by 19.22 %
- Crime Rate
- 28.00 %Unchanged by 0.00 %
Agent Activity
M&W Sales and Lettings created the listing.
Nearby Schools
| Name | Type | Ofsted | Distance |
|---|---|---|---|
| Lansdowne Children'S Centre | Secure Units | 0.36 KM | |
| St Leonards Children'S Centre | Children's Centre | 0.44 KM | |
| St Mary Star Of The Sea Catholic Primary School | Voluntary Aided School | Good | 0.90 KM |
| Christ Church Cofe Primary And Nursery Academy | Academy Converter | Good | 1.11 KM |
| St Paul'S Church Of England Academy | Academy Converter | Good | 1.31 KM |
Images
Nearby Streets
| Name | Average Price | Average Sqft | Distance |
|---|---|---|---|
| Station Approach | £ 430,000 | 0 | 0.00 KM |
| Archery Villas | £ 0 | 0 | 0.00 KM |
| The Uplands | £ 400,000 | 0 | 0.00 KM |
| Saint John's Road | £ 0 | 0 | 0.00 KM |
| The Cloisters | £ 0 | 0 | 0.00 KM |
Nearby Transport
| Name | NLC | TLC | Distance |
|---|---|---|---|
| St Leonards Warrior Square | 5239 | SLQ | 0.43 KM |
| Hastings | 5219 | HGS | 2.03 KM |
| West St Leonards | 5242 | WLD | 2.16 KM |
| Ore | 5021 | ORE | 3.93 KM |
| Crowhurst | 5233 | CWU | 7.61 KM |
Nearby Listings
| Address | Price | Type | Score | Distance |
|---|---|---|---|---|
| Norman Road, St Leonards-On-Sea | £ 400,000 | BUY | 5 / 10 | 0.00 KM |
| Norman Road, St. Leonards-On-Sea | £ 450,000 | BUY | 5 / 10 | 0.00 KM |
| Norman Road, St. Leonards-On-Sea | £ 460,000 | BUY | 5 / 10 | 0.01 KM |
| Shepherd Street, St. Leonards-On-Sea | £ 230,000 | BUY | 5 / 10 | 0.06 KM |
| Norman Road, St. Leonards-On-Sea | £ 250,000 | BUY | 7 / 10 | 0.06 KM |
Nearby Properties
| Address | Price | Distance |
|---|---|---|
| 18 Market Passage | £ 74,000 | 0.03 KM |
| 5 Grand Parade | £ 1,100,000 | 0.07 KM |
| 26 Shepherd Street | £ 192,500 | 0.08 KM |
| 15 Shepherd Street | £ 199,500 | 0.08 KM |
| 23 Shepherd Street | £ 164,000 | 0.08 KM |