AS
Nicholson Crescent, Benfleet
By Aspire Estate Agents
£ 375,000
Reviews
3 out of 5 stars
Aspire Estate Agents says ..
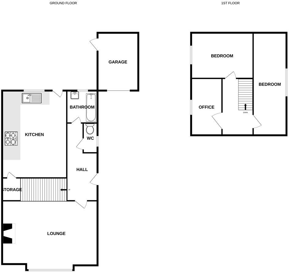
Guide Price £375,000 - £400,000 A SOUTH FACING REAR GARDEN FOR ALL THE SUN LOVERS - This beautiful three bedroom semi detached home located in a highly sought after road situated in walking distance to local shops, transport links and King John Senior School is perfect for first time buyers a...
Property Oracle says ..
Therefore, we give this property 7 / 10. *Disclaimer: This is our option and does constitute a recommendation or financial advice. Do your own research. *
- Price
- 9
- Condition
- 8
- Location
- 7
- Land
- 6
- Bedrooms
- 3
- Bathrooms
- 1
- Sqft (est)
- 1,059.00
The heatmap indicates the level of crime in the area. The color of the heatmap indicates the crime severity and recency.
Metrics Year-on-Year
- Average area value
- 586,111.00 £Increased by 20.09 %
- Est sale value
- 686,232.00 £Increased by 41.18 %
- Average area rental value
- 1,850.00 £/moIncreased by 52.89 %
- Est letting value
- 2,118.00 £/moIncreased by 100.00 %
- Est rental Yield
- 3.79 %Increased by 27.18 %
- Crime Rate
- 7.00 %Unchanged by 0.00 %
from 488,065.00 £
from 486,081.00 £
from 1,210.00 £/mo
from 1,059.00 £/mo
from 2.98 %
from 7.00 %
Agent Activity
Aspire Estate Agents created the listing.
Nearby Schools
| Name | Type | Ofsted | Distance |
|---|---|---|---|
| The King John School | Academy Converter | Good | 0.17 KM |
| Westwood Academy | Academy Converter | Outstanding | 1.09 KM |
| The Deanes | Academy Sponsor Led | Requires improvement | 1.24 KM |
| Cedar Hall School | Foundation Special School | Good | 1.32 KM |
| Usp College | Further Education | 1.44 KM |
Images
Nearby Streets
| Name | Average Price | Average Sqft | Distance |
|---|---|---|---|
| Highfield Avenue | £ 450,000 | 0 | 0.00 KM |
| Windsor Gardens | £ 325,000 | 0 | 0.00 KM |
| Robbins Path | £ 275,000 | 0 | 0.00 KM |
| Corasway | £ 775,000 | 0 | 0.00 KM |
| Main road | £ 0 | 0 | 0.00 KM |
Nearby Transport
| Name | NLC | TLC | Distance |
|---|---|---|---|
| Rayleigh | 6884 | RLG | 3.56 KM |
| Benfleet | 7439 | BEF | 4.01 KM |
| Leigh-On-Sea | 7446 | LES | 5.32 KM |
| Battlesbridge | 6870 | BLB | 8.17 KM |
| Chalkwell | 7469 | CHW | 8.60 KM |
Nearby Listings
| Address | Price | Type | Score | Distance |
|---|---|---|---|---|
| Nicholson Crescent, Benfleet | £ 375,000 | BUY | 7 / 10 | 0.00 KM |
| Highfield Avenue, Benfleet | £ 475,000 | BUY | 5 / 10 | 0.10 KM |
| Nicholson Road, Thundersley, Essex | £ 400,000 | BUY | 7 / 10 | 0.10 KM |
| Nicholson Road, Benfleet | £ 375,000 | BUY | 7 / 10 | 0.10 KM |
| Thundersley | £ 325,000 | BUY | 6 / 10 | 0.10 KM |
Nearby Properties
| Address | Price | Distance |
|---|---|---|
| 4 Nicholson Crescent | £ 113,500 | 0.02 KM |
| 34 Nicholson Crescent | £ 135,000 | 0.02 KM |
| 22 Nicholson Crescent | £ 184,995 | 0.02 KM |
| 15 Nicholson Crescent | £ 386,000 | 0.02 KM |
| 2 Nicholson Crescent | £ 197,000 | 0.02 KM |