LI
Matmer Court, Melrosegate, York, YO10
By Linley and Simpson
£ 950
Linley and Simpson says ..
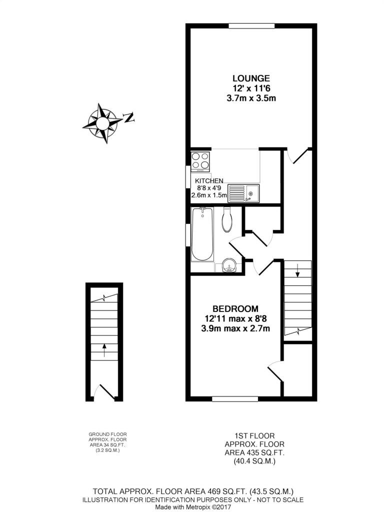
A well presented first floor apartment benefiting from one double bedroom, a generous lounge and a separate kitchen. Located to the east of the city the property gives excellent access to the city centre and offers a simple route out towards the A64.
- Bedrooms
- 1
- Bathrooms
- 0
The heatmap indicates the level of crime in the area. The color of the heatmap indicates the crime severity and recency.
Metrics Year-on-Year
- Average area value
- 591,875.00 £Increased by 5.13 %
- Average area rental value
- 1,194.00 £/moDecreased by 3.63 %
- Est rental Yield
- 2.42 %Decreased by 8.33 %
- Crime Rate
- 6.00 %Unchanged by 0.00 %
from 562,987.00 £
from 1,239.00 £/mo
from 2.64 %
from 6.00 %
Agent Activity
Linley and Simpson created the listing.
Nearby Schools
| Name | Type | Ofsted | Distance |
|---|---|---|---|
| University Of York | Higher Education Institutions | 0.76 KM | |
| St Lawrence'S Children'S Centre | Children's Centre | 0.99 KM | |
| St Lawrence'S Church Of England Primary Academy | Academy Sponsor Led | Requires improvement | 0.99 KM |
| Tang Hall Primary Academy | Academy Converter | Good | 1.15 KM |
| The Avenues Children'S Centre | Children's Centre | 1.16 KM |
Images
Nearby Streets
| Name | Average Price | Average Sqft | Distance |
|---|---|---|---|
| St Nicholas Place | £ 0 | 0 | 0.00 KM |
| Rockingham Avenue | £ 0 | 0 | 0.00 KM |
| Millfield Court | £ 180,000 | 0 | 0.00 KM |
| Melrose Close | £ 0 | 0 | 0.00 KM |
| Park Court | £ 175,000 | 0 | 0.00 KM |
Nearby Transport
| Name | NLC | TLC | Distance |
|---|---|---|---|
| York | 8263 | YRK | 4.07 KM |
Nearby Listings
| Address | Price | Type | Score | Distance |
|---|---|---|---|---|
| Matmer Court, Melrosegate, York, YO10 | £ 950 | RENT | Unknown | 0.00 KM |
| Hull Road, York | £ 5,278 | RENT | Unknown | 0.06 KM |
| Constable Court Millfield Avenue, York, North Yorkshire, YO10 | £ 1,250 | RENT | Unknown | 0.10 KM |
| 2 Constable Court Millfield Avenue, York | £ 1,250 | RENT | Unknown | 0.10 KM |
| Room 5, 28 Millfield Lane, York | £ 1,000 | RENT | Unknown | 0.18 KM |
Nearby Properties
| Address | Price | Distance |
|---|---|---|
| 20 Millfield Avenue | £ 285,000 | 0.01 KM |
| 6a Millfield Avenue | £ 392,000 | 0.03 KM |
| 45 Hull Road | £ 246,000 | 0.06 KM |
| 53 Hull Road | £ 290,000 | 0.06 KM |
| 64 Hull Road | £ 140,000 | 0.13 KM |