Gascoigne Halman says ..
A charming Cheshire brick cottage offering immaculate accommodation, boasting much rustic charm. Situated in a beautiful rural setting, surrounded by stunning open countryside yet remaining close to local amenities.
Property Oracle says ..
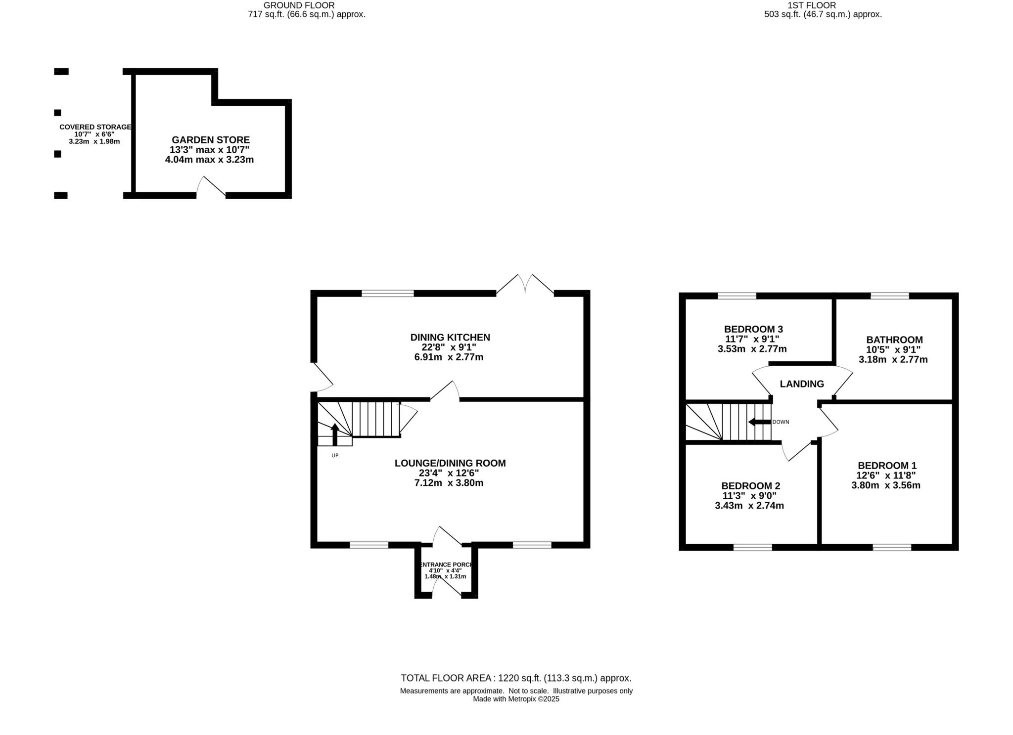
This property is a charming semi-detached house located in Mobberley, Cheshire. The property benefits from a good sized garden and appears to be well maintained and presented. The location is desirable, with good access to local amenities and transport links. However, the lack of square footage information makes it difficult to accurately assess the price per square foot and overall value for money. More information is required to give a definitive opinion on the price.
Therefore, we give this property 7 / 10. *Disclaimer: This is our option and does constitute a recommendation or financial advice. Do your own research. *
- Price
- 7
- Condition
- 9
- Location
- 8
- Land
- 7
- Bedrooms
- 3
- Bathrooms
- 1
- Lot (est)
- 1,220.00
The heatmap indicates the level of crime in the area. The color of the heatmap indicates the crime severity and recency.
Metrics Year-on-Year
- Average area value
- 607,999.00 £Decreased by 19.74 %
- Average area rental value
- 1,708.00 £/moDecreased by 59.57 %
- Est rental Yield
- 3.37 %Decreased by 49.63 %
- Crime Rate
- 0.00 %
Agent Activity
Gascoigne Halman created the listing.
Nearby Schools
| Name | Type | Ofsted | Distance |
|---|---|---|---|
| Lindow Community Primary School | Community School | Good | 2.08 KM |
| The David Lewis Centre | Special Post 16 Institution | Outstanding | 3.11 KM |
| David Lewis School | Non-maintained Special School | Good | 3.11 KM |
| Ashdene Primary School | Community School | Outstanding | 3.20 KM |
| Gorsey Bank Primary School | Academy Converter | Good | 3.56 KM |
Images
Nearby Streets
| Name | Average Price | Average Sqft | Distance |
|---|---|---|---|
| Willow Close | £ 0 | 0 | 0.00 KM |
| Rotherwood Road | £ 0 | 0 | 0.00 KM |
| Eccups Lane | £ 0 | 0 | 0.00 KM |
| Springfield Drive | £ 0 | 0 | 0.00 KM |
| Mossways Green | £ 249,950 | 0 | 0.00 KM |
Nearby Transport
| Name | NLC | TLC | Distance |
|---|---|---|---|
| Alderley Edge | 2760 | ALD | 4.49 KM |
| Chelford (Cheshire) | 2764 | CEL | 4.81 KM |
| Styal | 2868 | SYA | 5.55 KM |
| Wilmslow | 2774 | WML | 5.72 KM |
| Manchester Airport | 2961 | MIA | 5.76 KM |
Nearby Listings
| Address | Price | Type | Score | Distance |
|---|---|---|---|---|
| Paddock Hill, Mobberley | £ 650,000 | BUY | 7 / 10 | 0.00 KM |
| Paddock Hill, Mobberley, Knutsford | £ 1,950,000 | BUY | 8 / 10 | 0.23 KM |
| Lindow Court Park, Mobberley, WA16 | £ 175,000 | BUY | 7 / 10 | 0.59 KM |
| Willow Close, Knutsford, WA16 | £ 230,000 | BUY | 7 / 10 | 0.60 KM |
| Paddock Hill, Mobberley, Knutsford, WA16 7DP | £ 150,000 | BUY | Unknown | 0.63 KM |
Nearby Properties
| Address | Price | Distance |
|---|---|---|
| Springfield | £ 695,000 | 0.07 KM |
| Lea Cottage | £ 380,000 | 0.07 KM |
| Linden Lea | £ 840,000 | 0.12 KM |
| Leigh House | £ 965,000 | 0.12 KM |
| The Cottage | £ 900,000 | 0.12 KM |