Cefncethin, Ffairfach, Llandeilo, SA19
By Rees Richards and Partners
£ 349,950
Reviews
3 out of 5 stars
Rees Richards and Partners says ..
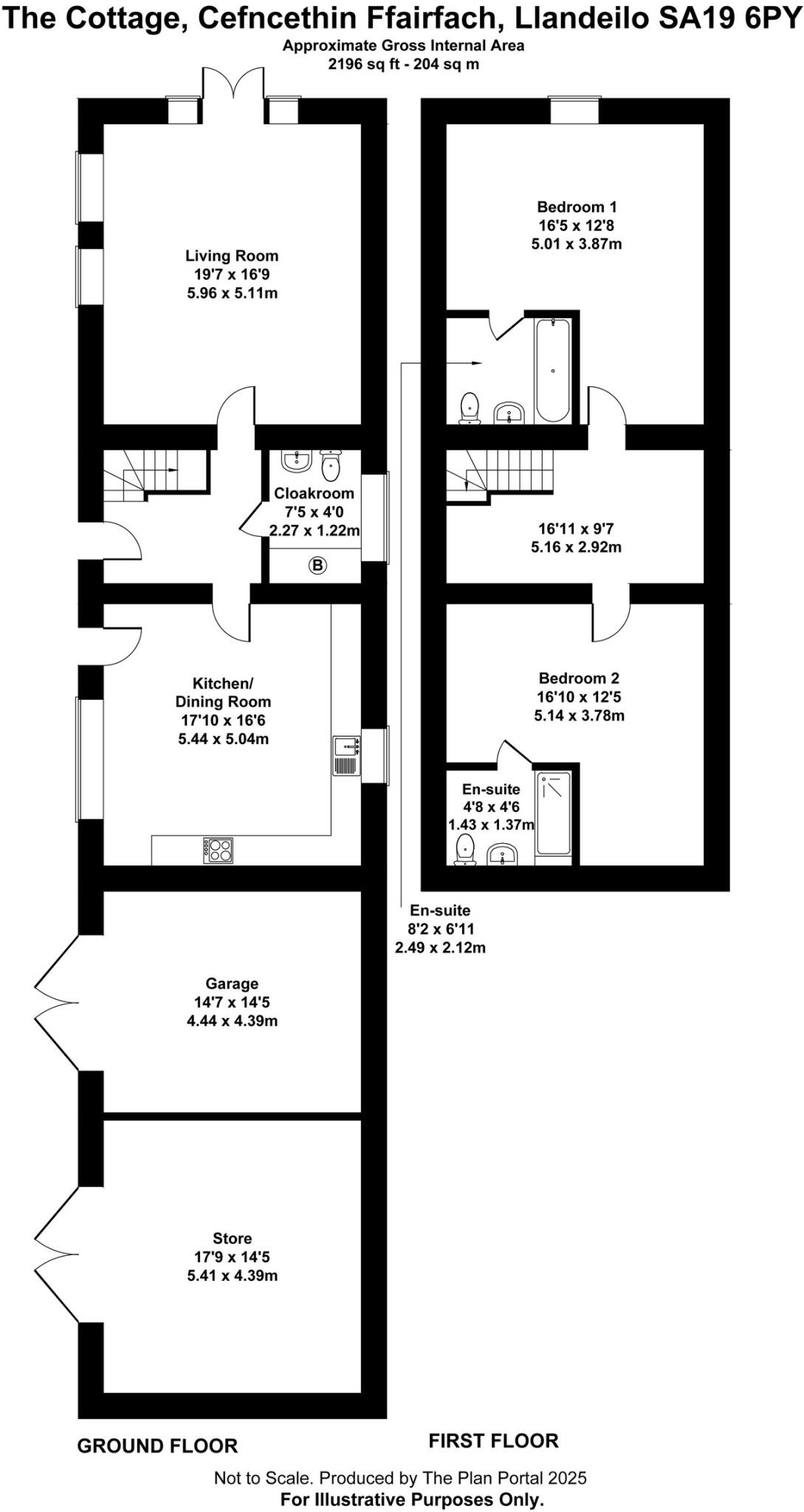
The Cottage is a charming 2-bedroom detached traditional stone-built cottage, positioned in a pretty courtyard setting of other converted barns and set in a semi-rural position with scenic countryside views.
Property Oracle says ..
This barn conversion is located in the village of Cefncethin, near Llandeilo in Carmarthenshire, Wales. The property benefits from a rural location with views of the surrounding countryside, and is within a reasonable distance of the town of Llandeilo which offers amenities such as shops and schools. The conversion appears to be of good quality and in excellent condition. It is a spacious property with two bedrooms and two bathrooms. While the plot size is listed as 0.00 sqft, the images suggest there is some land available. The list price is slightly above the average price for the area, but given the size and apparent quality of the conversion, it may represent reasonable value for money, especially considering the lack of comparable properties in the immediate vicinity with available sqft data. More information on plot size and comparable properties would improve the accuracy of this assessment.
Therefore, we give this property 6 / 10. *Disclaimer: This is our option and does constitute a recommendation or financial advice. Do your own research. *
- Price
- 7
- Condition
- 9
- Location
- 7
- Land
- 4
- Bedrooms
- 2
- Bathrooms
- 2
- Sqft (est)
- 2,196.00
The heatmap indicates the level of crime in the area. The color of the heatmap indicates the crime severity and recency.
Metrics Year-on-Year
- Average area value
- 310,998.00 £Decreased by 1.08 %
- Est sale value
- 733,464.00 £Increased by 16.78 %
- Average area rental value
- 1,363.00 £/moIncreased by 13.58 %
- Est letting value
- 2,196.00 £/moUnchanged by 0.00 %
- Est rental Yield
- 5.26 %Increased by 14.85 %
- Crime Rate
- 0.00 %
Agent Activity
Rees Richards and Partners created the listing.
Nearby Schools
| Name | Type | Ofsted | Distance |
|---|---|---|---|
| Ysgol Gynradd Ffairfach | Welsh Establishment | 2.66 KM | |
| Llandeilo C.P. School | Welsh Establishment | 3.87 KM | |
| Ysgol Gymraeg Teilo Sant | Welsh Establishment | 3.93 KM | |
| Llandybie Primary | Welsh Establishment | 4.20 KM | |
| Ysgol Dyffryn Aman | Welsh Establishment | 6.25 KM |
Images
Nearby Streets
| Name | Average Price | Average Sqft | Distance |
|---|---|---|---|
| The Stables | £ 0 | 0 | 0.00 KM |
Nearby Transport
| Name | NLC | TLC | Distance |
|---|---|---|---|
| Ffairfach | 4066 | FFA | 2.40 KM |
| Llandeilo | 4248 | LLL | 3.68 KM |
| Llandybie | 4247 | LLI | 4.02 KM |
| Ammanford | 4236 | AMF | 6.38 KM |
| Pantyffynnon | 4250 | PTF | 8.26 KM |
Nearby Listings
| Address | Price | Type | Score | Distance |
|---|---|---|---|---|
| Cefncethin, Ffairfach, Llandeilo, SA19 | £ 349,950 | BUY | 6 / 10 | 0.00 KM |
| Ffairfach, Llandeilo | £ 395,000 | BUY | 6 / 10 | 1.39 KM |
| Heol Y Maerdy, Ffairfach, Llandeilo | £ 445,000 | BUY | Unknown | 1.58 KM |
| Derwydd Road, Llandybie, Carmarthenshire, SA18 | £ 1,100,000 | BUY | 7 / 10 | 1.60 KM |
| Heol Y Maerdy, Ffairfach, Llandeilo, Carmarthenshire, SA19 | £ 550,000 | BUY | 8 / 10 | 1.61 KM |
Nearby Properties
| Address | Price | Distance |
|---|---|---|
| Cwmgweche | £ 427,500 | 0.97 KM |
| Tyn Dderwen | £ 320,000 | 0.97 KM |
| Bryndyfan | £ 175,000 | 0.97 KM |
| Nantgarreg | £ 280,000 | 1.38 KM |
| Gwyndris | £ 270,000 | 1.38 KM |