Gilson Bailey says ..
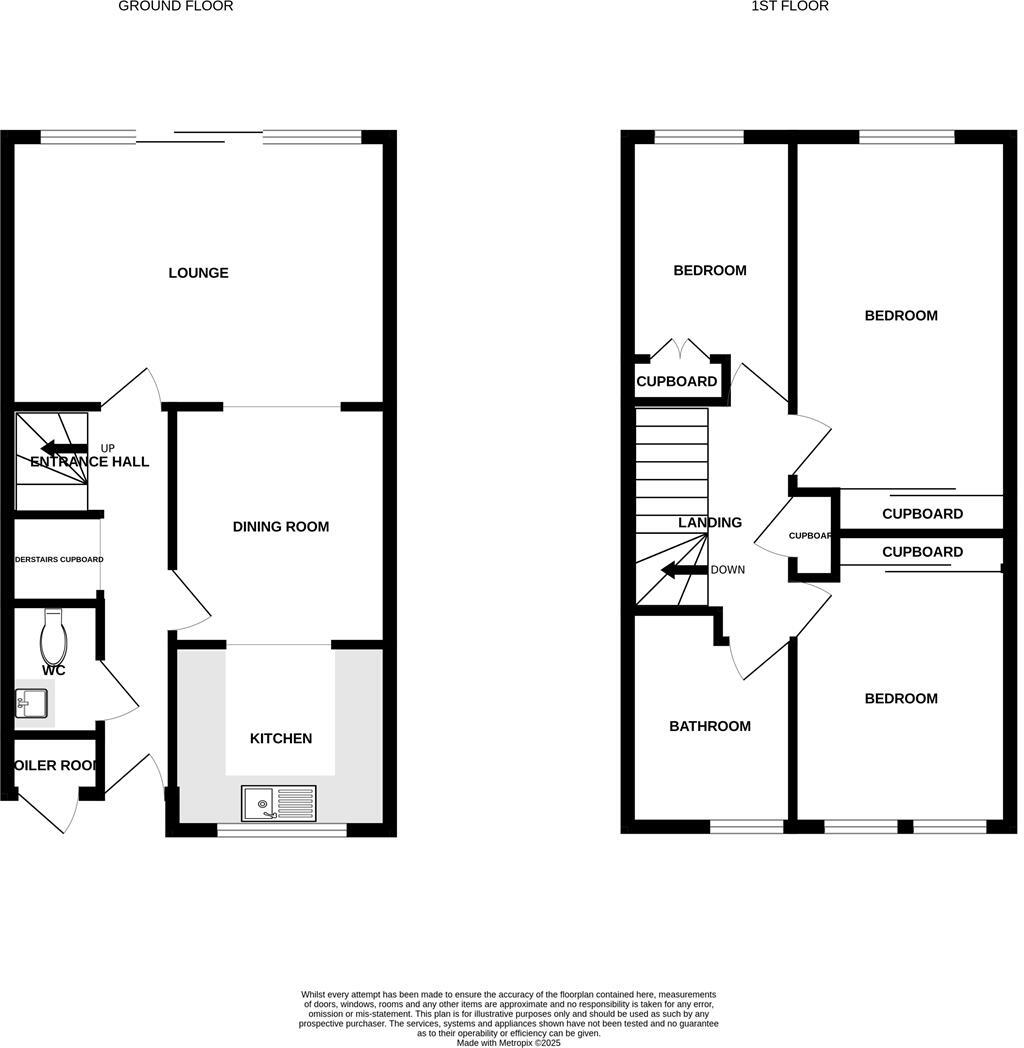
**RARELY AVAILABLE HIDDEN LOCATION JUST OFF CHRISTCHURCH ROAD IN THE GOLDEN TRIANGLE** Gilson Bailey are delighted to offer this THREE BEDROOM, END TERRACE HOUSE situated in highly requested Golden Triangle area of Norwich. Accommodation comprising entrance hall, lounge, dining room, kitchen and ...
Property Oracle says ..
Therefore, we give this property 7 / 10. *Disclaimer: This is our option and does constitute a recommendation or financial advice. Do your own research. *
- Price
- 7
- Condition
- 6
- Location
- 8
- Land
- 7
- Bedrooms
- 3
- Bathrooms
- 2
- Sqft (est)
- 927.33
The heatmap indicates the level of crime in the area. The color of the heatmap indicates the crime severity and recency.
Metrics Year-on-Year
- Average area value
- 405,909.00 £Decreased by 18.93 %
- Est sale value
- 375,568.65 £Increased by 38.70 %
- Average area rental value
- 1,198.00 £/moDecreased by 15.81 %
- Est letting value
- 927.33 £/mo
- Est rental Yield
- 3.54 %Increased by 3.81 %
- Crime Rate
- 1.00 %Unchanged by 0.00 %
from 500,682.00 £
from 270,780.36 £
from 1,423.00 £/mo
from 0.00 £/mo
from 3.41 %
from 1.00 %
Agent Activity
Gilson Bailey created the listing.
Nearby Schools
| Name | Type | Ofsted | Distance |
|---|---|---|---|
| Norwich High School For Girls Gdst | Other Independent School | 0.38 KM | |
| Avenue Junior School | Community School | Good | 0.64 KM |
| Colman Infant School | Community School | Outstanding | 0.82 KM |
| The Parkside School, Norwich | Foundation Special School | Outstanding | 0.88 KM |
| City Of Norwich School, An Ormiston Academy | Academy Converter | Good | 0.93 KM |
Images
Nearby Streets
| Name | Average Price | Average Sqft | Distance |
|---|---|---|---|
| Christchurch Court | £ 0 | 0 | 0.00 KM |
| Westgate Close | £ 0 | 0 | 0.00 KM |
| Claremont Road | £ 1,100,000 | 0 | 0.00 KM |
| Waverley Road | £ 750,000 | 0 | 0.00 KM |
| The Elms | £ 0 | 0 | 0.00 KM |
Nearby Transport
| Name | NLC | TLC | Distance |
|---|---|---|---|
| Norwich | 7309 | NRW | 3.78 KM |
Nearby Listings
| Address | Price | Type | Score | Distance |
|---|---|---|---|---|
| Christchurch Road, Norwich | £ 350,000 | BUY | 7 / 10 | 0.00 KM |
| Beechbank, Norwich | £ 155,000 | BUY | 6 / 10 | 0.04 KM |
| Beechbank, Norwich, NR2 | £ 150,000 | BUY | 6 / 10 | 0.05 KM |
| The Plantation, Christchurch Road, Norwich, Norfolk, NR2 | £ 350,000 | BUY | 6 / 10 | 0.05 KM |
| Beechbank, Norwich | £ 425,000 | BUY | 6 / 10 | 0.09 KM |
Nearby Properties
| Address | Price | Distance |
|---|---|---|
| 34 Beech Bank | £ 163,000 | 0.04 KM |
| 36 Beech Bank | £ 45,995 | 0.04 KM |
| 38 Beech Bank | £ 125,000 | 0.04 KM |
| 28 Beech Bank | £ 83,000 | 0.04 KM |
| 17 Beechbank | £ 325,000 | 0.04 KM |