Worcester Crescent, Woodford Green, IG8
By Abode
£ 1,300,000
Reviews
4 out of 5 stars
Abode says ..
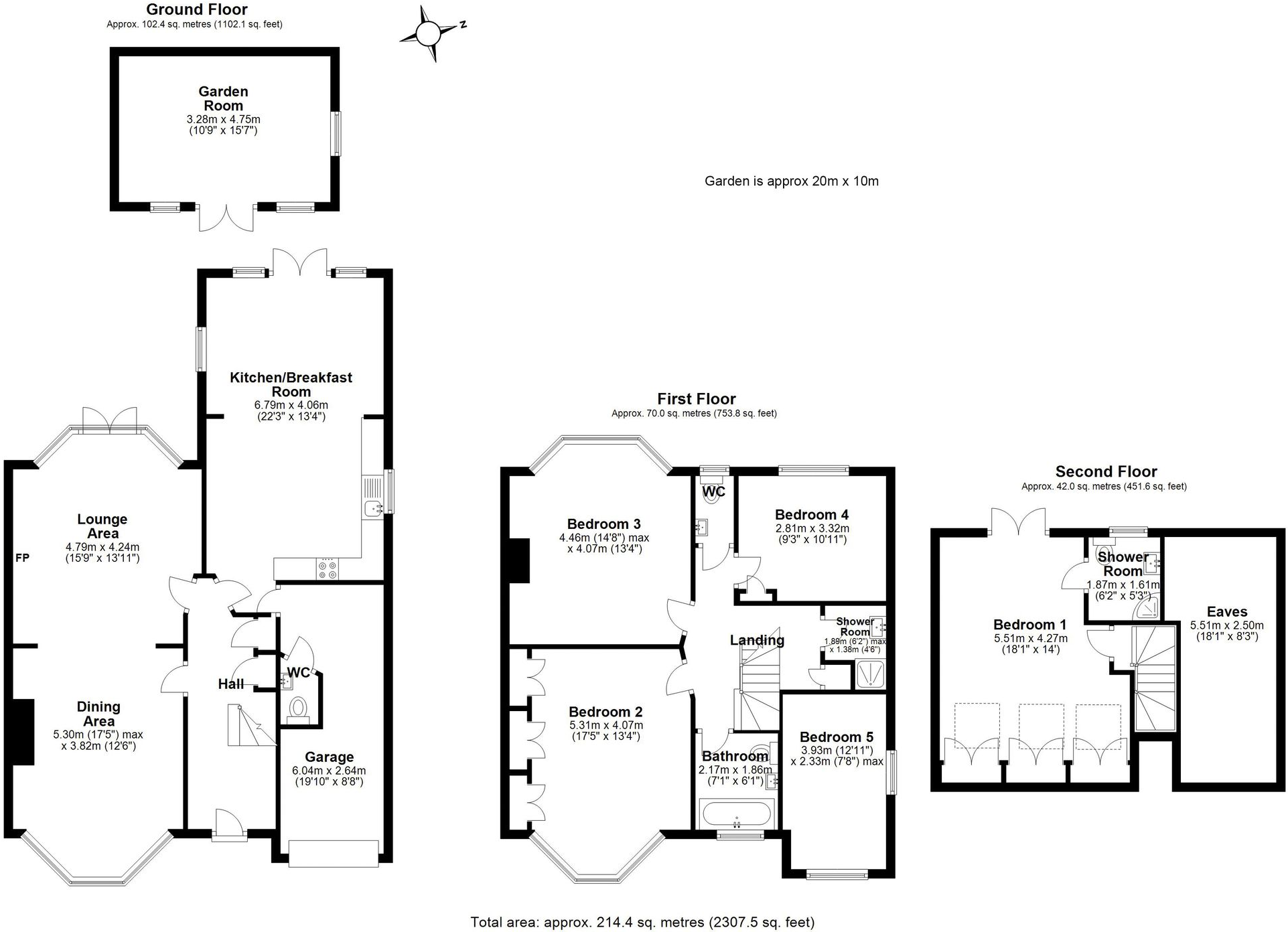
Situated in Worcester Crescent on the sought after Monkhams Estate is this mock Tudor five bedroom, three bathroom semi detached family home.
Property Oracle says ..
This property is a 5 bedroom, 3 bathroom semi-detached house located on Worcester Crescent, Woodford Green, IG8 0LU. The property is listed at £1,300,000 and has 2,138.47 sqft of internal living space and a plot size of 2,152.78 sqft.
The property benefits from a great location within Woodford Green, close to highly-rated schools such as Wells Primary School (Outstanding Ofsted rating) and Ray Lodge Primary School (Outstanding Ofsted rating), both within a short distance. The area also boasts good transport links, with several London Overground stations within a reasonable commute. The proximity to local amenities and green spaces further enhances its desirability. The property itself appears to be in excellent condition, well-maintained and modernised, with a stylish interior and a well-landscaped garden. The inclusion of a detached garage and garden shed adds to its appeal.
Considering the average house price in the area is £832,234 and the average price per sqft is £649, this property’s list price of £1,300,000 appears to be at the higher end of the market, although justifiable given its size, condition, location, and additional features such as the sizeable garden and garage. The nearby comparable properties support this assessment, with similar properties on Worcester Crescent selling for around £1,250,000 to £1,350,000.
Based on the images provided, the property appears to be in excellent condition and well-maintained. The garden is of a good size and well-kept.
Therefore, we give this property 8 / 10. *Disclaimer: This is our option and does constitute a recommendation or financial advice. Do your own research. *
- Price
- 7
- Condition
- 9
- Location
- 9
- Land
- 8
- Bedrooms
- 5
- Bathrooms
- 3
- Sqft (est)
- 2,138.47
- Lot (est)
- 2,152.78
The heatmap indicates the level of crime in the area. The color of the heatmap indicates the crime severity and recency.
Metrics Year-on-Year
- Average area value
- 960,000.00 £Increased by 4.36 %
- Est sale value
- 1,231,758.72 £Decreased by 2.37 %
- Average area rental value
- 1,533.00 £/moDecreased by 30.63 %
- Est letting value
- 0.00 £/moDecreased by 100.00 %
- Est rental Yield
- 1.92 %Decreased by 33.33 %
- Crime Rate
- 2.00 %Unchanged by 0.00 %
Agent Activity
Abode created the listing.
Nearby Schools
| Name | Type | Ofsted | Distance |
|---|---|---|---|
| Wells Primary School | Community School | Outstanding | 0.99 KM |
| Avon House School | Other Independent School | 1.15 KM | |
| Bancrofts School | Other Independent School | 1.17 KM | |
| Bancrofts Preparatory School | Other Independent School | 1.17 KM | |
| Ray Lodge Primary School | Academy Converter | Outstanding | 1.22 KM |
Images
Nearby Streets
| Name | Average Price | Average Sqft | Distance |
|---|---|---|---|
| Fairway | £ 440,000 | 0 | 0.00 KM |
| Tudor Close | £ 1,258,333 | 0 | 0.00 KM |
| Station Way | £ 330,000 | 0 | 0.00 KM |
| Field Close | £ 0 | 0 | 0.00 KM |
| Forest Close | £ 0 | 0 | 0.00 KM |
Nearby Transport
| Name | NLC | TLC | Distance |
|---|---|---|---|
| Chingford | 6914 | CHI | 3.53 KM |
| Highams Park | 6919 | HIP | 4.08 KM |
| Wood Street | 6954 | WST | 5.30 KM |
| Leytonstone High Road | 7403 | LER | 6.49 KM |
| Leyton Midland Road | 7402 | LEM | 7.01 KM |
Nearby Listings
| Address | Price | Type | Score | Distance |
|---|---|---|---|---|
| Worcester Crescent, Woodford Green, IG8 | £ 1,300,000 | BUY | 8 / 10 | 0.00 KM |
| Worcester Crescent, Woodford Green, IG8 | £ 1,250,000 | BUY | Unknown | 0.04 KM |
| Worcester Crescent, Woodford Green | £ 1,500,000 | BUY | 8 / 10 | 0.17 KM |
| Malvern Drive, Woodford Green | £ 1,500,000 | BUY | 7 / 10 | 0.17 KM |
| Malvern Drive, Woodford Green, IG8 | £ 1,350,000 | BUY | 7 / 10 | 0.18 KM |
Nearby Properties
| Address | Price | Distance |
|---|---|---|
| 117 Worcester Crescent | £ 360,000 | 0.07 KM |
| 71 Worcester Crescent | £ 605,000 | 0.07 KM |
| 69 Worcester Crescent | £ 975,000 | 0.07 KM |
| 119 Worcester Crescent | £ 680,000 | 0.07 KM |
| 103 Worcester Crescent | £ 925,000 | 0.07 KM |