Balmoral Drive, Woking, Surrey, GU22
By Seymours Estate Agents
£ 500,000
Reviews
3 out of 5 stars
Seymours Estate Agents says ..
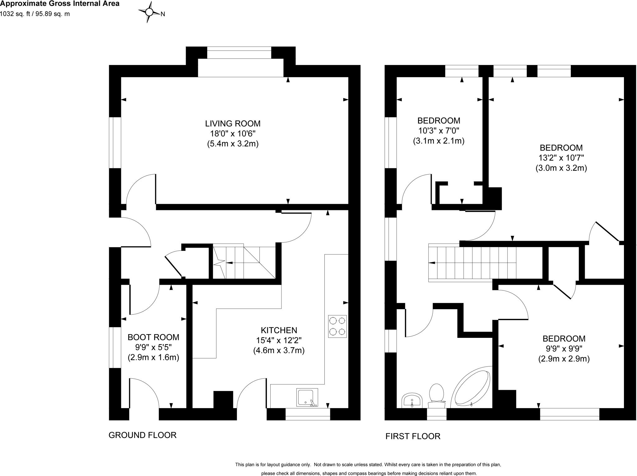
Situated in the ever-popular Maybury Estate, this well-presented three-bedroom semi-detached home offers spacious accommodation and is ideal for families or professionals seeking a property in a convenient yet peaceful location. The ground floor features a welcoming entrance hall, a bright a...
Property Oracle says ..
This is a 3-bedroom semi-detached house located on Balmoral Drive, Pyrford, Woking. The property offers 1,032 sqft of living space and includes a garden. While the kitchen has been modernised, other areas of the house would benefit from some updating. The property is located within a reasonable distance of local schools and Woking train station is 2.99KM away. Overall, this property presents a good opportunity for buyers looking to put their own stamp on a home in a desirable location. The list price of £500,000 appears to be competitive, considering the average price in the area.
Therefore, we give this property 6 / 10. *Disclaimer: This is our option and does constitute a recommendation or financial advice. Do your own research. *
- Price
- 8
- Condition
- 5
- Location
- 7
- Land
- 6
- Bedrooms
- 3
- Bathrooms
- 1
- Sqft (est)
- 1,032.00
The heatmap indicates the level of crime in the area. The color of the heatmap indicates the crime severity and recency.
Metrics Year-on-Year
- Average area value
- 892,500.00 £Increased by 16.14 %
- Est sale value
- 448,920.00 £Decreased by 43.36 %
- Average area rental value
- 2,580.00 £/moDecreased by 9.03 %
- Est letting value
- 1,032.00 £/moDecreased by 50.00 %
- Est rental Yield
- 3.47 %Decreased by 21.67 %
- Crime Rate
- 7.00 %Unchanged by 0.00 %
Agent Activity
Seymours Estate Agents created the listing.
Nearby Schools
| Name | Type | Ofsted | Distance |
|---|---|---|---|
| Greenfield School | Other Independent School | 0.50 KM | |
| New Monument Primary Academy | Academy Converter | Good | 0.69 KM |
| Woking Sure Start Children'S Centre | Children's Centre | 1.41 KM | |
| Broadmere Primary Academy | Academy Converter | Good | 1.55 KM |
| Hoe Bridge School | Other Independent School | 1.67 KM |
Images
Nearby Streets
| Name | Average Price | Average Sqft | Distance |
|---|---|---|---|
| Littlemoor Gardens | £ 0 | 0 | 0.00 KM |
| Forest Close | £ 1,250,000 | 0 | 0.00 KM |
| Birch Grove | £ 1,523,750 | 0 | 0.00 KM |
| Oak Lane | £ 600,000 | 0 | 0.00 KM |
| Kent Road | £ 0 | 0 | 0.00 KM |
Nearby Transport
| Name | NLC | TLC | Distance |
|---|---|---|---|
| Woking | 5685 | WOK | 2.99 KM |
| West Byfleet | 5684 | WBY | 3.36 KM |
| Byfleet And New Haw | 5689 | BFN | 6.24 KM |
| Worplesdon | 5686 | WPL | 6.84 KM |
| Clandon | 5555 | CLA | 7.08 KM |
Nearby Listings
| Address | Price | Type | Score | Distance |
|---|---|---|---|---|
| Balmoral Drive, Woking, Surrey, GU22 | £ 500,000 | BUY | 6 / 10 | 0.00 KM |
| Pyrian Close, Pyrford, Surrey, GU22 | £ 1,100,000 | BUY | 8 / 10 | 0.07 KM |
| Pyrian Close, Pyrford, GU22 | £ 1,000,000 | BUY | 6 / 10 | 0.07 KM |
| Pyrian Close, Woking, GU22 | £ 1,000,000 | BUY | 7 / 10 | 0.12 KM |
| East Hill, Woking, Surrey, GU22 | £ 650,000 | BUY | 7 / 10 | 0.16 KM |
Nearby Properties
| Address | Price | Distance |
|---|---|---|
| 75 Balmoral Drive | £ 205,000 | 0.05 KM |
| 83 Balmoral Drive | £ 250,000 | 0.05 KM |
| 85 Balmoral Drive | £ 469,000 | 0.05 KM |
| 77 Balmoral Drive | £ 214,950 | 0.05 KM |
| 87 Balmoral Drive | £ 405,000 | 0.05 KM |