Chipping Norton, Oxfordshire, OX7
By Chancellors
£ 625,000
Reviews
3 out of 5 stars
Chancellors says ..
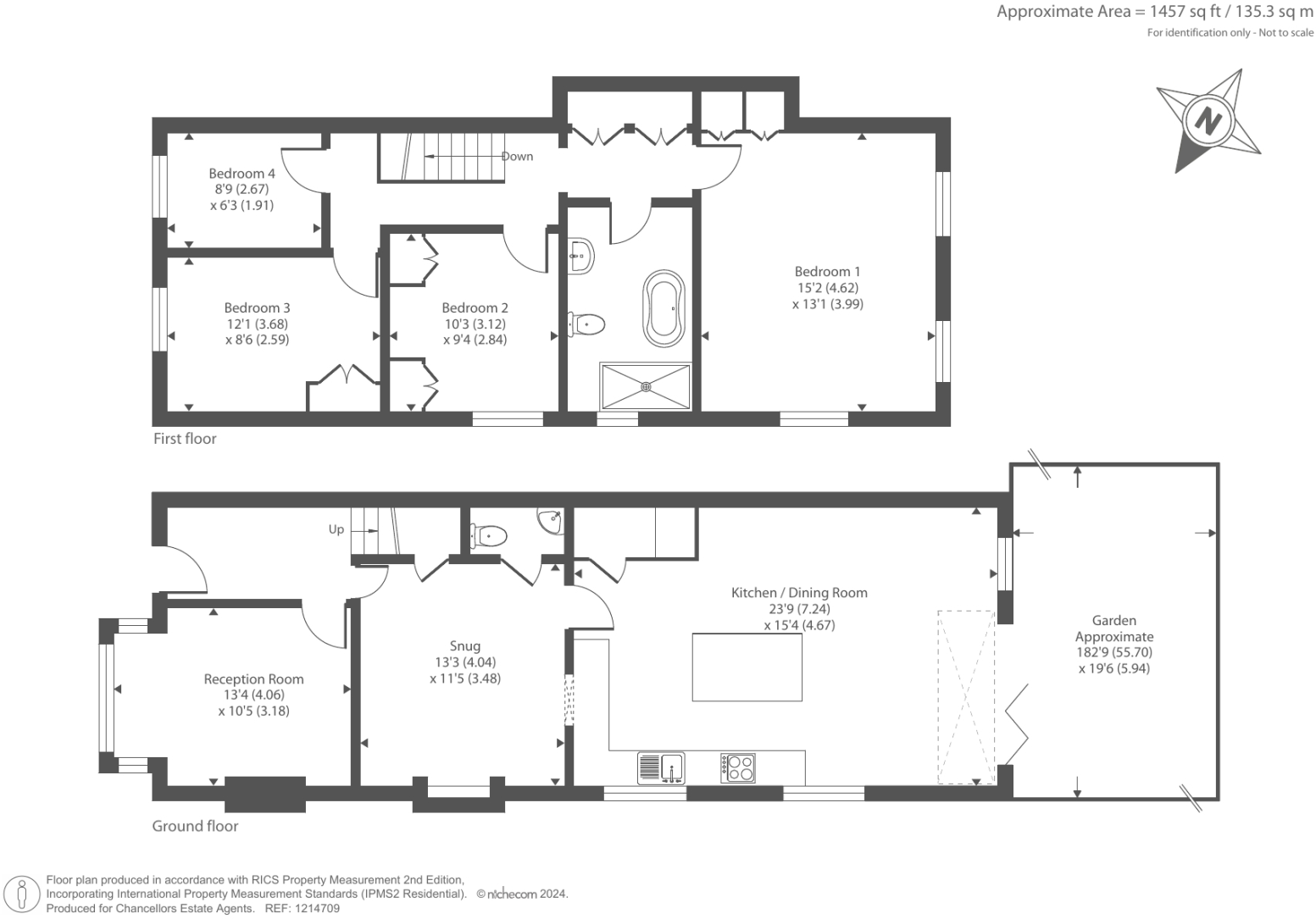
An extended and much improved four bedroom family home situated on one of Chipping Nortons most coveted roads. Providing excellent versatility for modern family living, this home offers an extended and recently upgraded kitchen/diner, two further reception rooms and a 182' rear garden. A must view.
Property Oracle says ..
This four-bedroom property located in Chipping Norton, Oxfordshire, presents a compelling proposition for buyers seeking a well-maintained family home in a desirable area. The house has clearly undergone extensive modernisation and refurbishment, showcasing a stylish and contemporary interior. The updated kitchen, and bathroom fixtures, in addition to the tasteful decor, highlight the property’s move-in-ready status. The presence of a good-sized rear garden enhances the property’s appeal, providing outdoor space for recreation and relaxation. The property’s location in Chipping Norton benefits from the town’s amenities and the presence of highly-rated schools. While the precise plot size isn’t specified and nearby comparable properties lack sqft information, the asking price of £625,000 positions it within a competitive range for this market, though not necessarily an exceptional value given the limited sqft information.
Therefore, we give this property 7 / 10. *Disclaimer: This is our option and does constitute a recommendation or financial advice. Do your own research. *
- Price
- 7
- Condition
- 9
- Location
- 7
- Land
- 6
- Bedrooms
- 4
- Bathrooms
- 1
- Sqft (est)
- 1,457.00
The heatmap indicates the level of crime in the area. The color of the heatmap indicates the crime severity and recency.
Metrics Year-on-Year
- Average area value
- 380,333.00 £Decreased by 5.70 %
- Est sale value
- 661,478.00 £Increased by 92.37 %
- Average area rental value
- 1,100.00 £/moDecreased by 9.76 %
- Est letting value
- 1,457.00 £/mo
- Est rental Yield
- 3.47 %Decreased by 4.41 %
- Crime Rate
- 12.00 %Unchanged by 0.00 %
Agent Activity
Chancellors marked this listing as sold.
Chancellors created the listing.
Nearby Schools
| Name | Type | Ofsted | Distance |
|---|---|---|---|
| St Mary'S Church Of England (Aided) Primary School, Chipping Norton | Voluntary Aided School | Good | 0.65 KM |
| The Ace Centre Nursery School | Local Authority Nursery School | Outstanding | 0.76 KM |
| Chipping Norton School | Academy Converter | Good | 0.91 KM |
| Holy Trinity Catholic School, Chipping Norton | Academy Converter | Outstanding | 1.59 KM |
| Park School | Other Independent Special School | Outstanding | 4.47 KM |
Images
Nearby Streets
| Name | Average Price | Average Sqft | Distance |
|---|---|---|---|
| Walter Craft Court | £ 450,000 | 0 | 0.00 KM |
| Marshall Close | £ 0 | 0 | 0.00 KM |
| Johnston's Way | £ 0 | 0 | 0.00 KM |
| Bell Yard | £ 270,000 | 0 | 0.00 KM |
| Ellis Lane | £ 438,333 | 0 | 0.00 KM |
Nearby Transport
| Name | NLC | TLC | Distance |
|---|---|---|---|
| Ascott-Under-Wychwood | 3003 | AUW | 7.88 KM |
| Shipton | 3009 | SIP | 9.16 KM |
| Kingham | 3008 | KGM | 9.38 KM |
| Charlbury | 3004 | CBY | 9.93 KM |
Nearby Listings
| Address | Price | Type | Score | Distance |
|---|---|---|---|---|
| Chipping Norton, Oxfordshire, OX7 | £ 625,000 | BUY | 7 / 10 | 0.00 KM |
| Paradise Terrace, Chipping Norton, OX7 | £ 395,000 | BUY | Unknown | 0.11 KM |
| Paradise Terrace, Chipping Norton, OX7 | £ 398,000 | BUY | 6 / 10 | 0.12 KM |
| Alexandra Square, Chipping Norton | £ 475,000 | BUY | 7 / 10 | 0.13 KM |
| The Leys, Chipping Norton | £ 690,000 | BUY | 6 / 10 | 0.15 KM |
Nearby Properties
| Address | Price | Distance |
|---|---|---|
| 5 Paradise Terrace | £ 220,000 | 0.11 KM |
| 7 Paradise Terrace | £ 205,000 | 0.11 KM |
| 8 Paradise Terrace | £ 232,500 | 0.11 KM |
| 6 Paradise Terrace | £ 224,950 | 0.11 KM |
| 1 Paradise Terrace | £ 227,500 | 0.11 KM |