MADE says ..
A simply stunning three/four bedroom SPLIT LEVEL APARTMENT situated in a sought after location within WALKING DISTANCE TO THE BEACH, Alexandra Park, the West Hill and Hastings Old Town. Hastings Town centre is within easy reach offering additional shopping and leisure facilities along with a main...
Property Oracle says ..
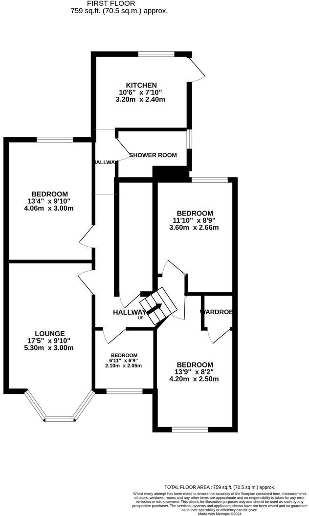
This four-bedroom, one-bathroom property situated on Milward Crescent in Hastings’ Castle area presents a compelling opportunity for buyers. The photos reveal a recently updated interior, showcasing a modern kitchen, tastefully decorated rooms, and a contemporary bathroom. The apartment has a bright and airy feel, complemented by large windows, and features hardwood floors which lend warmth and character to the space. The property benefits from a convenient location within walking distance to Hastings beach, Alexandra Park, and the historic Old Town. Nearby amenities such as schools and a train station add to its practicality. However, the listing currently lacks details regarding the exterior space, and the provided data doesn’t clearly define the property type, which is described as a flat, indicating it could be an apartment. Overall, the property presents a potentially attractive option for those seeking a stylish, renovated home in a desirable Hastings location. More detailed information, particularly on the size and quality of exterior space (e.g., small garden/balcony/patio) and specifics regarding parking or any potential maintenance requirements, would be helpful in making a well-informed purchasing decision. The lack of nearby listing square footage data makes direct price-per-square-foot comparisons challenging. Further information on the building’s structural integrity would aid in more accurate assessment of its overall condition and value.
Therefore, we give this property 6 / 10. *Disclaimer: This is our option and does constitute a recommendation or financial advice. Do your own research. *
- Price
- 7
- Condition
- 8
- Location
- 7
- Land
- 2
- Bedrooms
- 4
- Bathrooms
- 1
- Sqft (est)
- 758.86
The heatmap indicates the level of crime in the area. The color of the heatmap indicates the crime severity and recency.
Metrics Year-on-Year
- Average area value
- 273,747.00 £Decreased by 7.23 %
- Est sale value
- 277,742.76 £Increased by 23.65 %
- Average area rental value
- 1,032.00 £/moDecreased by 0.77 %
- Est letting value
- 758.86 £/moUnchanged by 0.00 %
- Est rental Yield
- 4.52 %Increased by 6.86 %
- Crime Rate
- 20.00 %Unchanged by 0.00 %
Agent Activity
MADE marked this listing as sold.
MADE created the listing.
Nearby Schools
| Name | Type | Ofsted | Distance |
|---|---|---|---|
| Hastings Town Children'S Centre | Children's Centre | 0.29 KM | |
| The Flagship School | Free Schools Special | 0.77 KM | |
| Ark Castledown Primary Academy | Academy Sponsor Led | 0.86 KM | |
| Torfield School | Academy Special Converter | Outstanding | 1.00 KM |
| The Baird Primary Academy | Academy Sponsor Led | Good | 1.04 KM |
Images
Nearby Streets
| Name | Average Price | Average Sqft | Distance |
|---|---|---|---|
| Elford Street | £ 0 | 0 | 0.00 KM |
| Queens Road | £ 211,250 | 0 | 0.00 KM |
| St Mary's Terrace | £ 0 | 0 | 0.00 KM |
| Portland Villas | £ 0 | 0 | 0.00 KM |
| Gordon Road | £ 0 | 0 | 0.00 KM |
Nearby Transport
| Name | NLC | TLC | Distance |
|---|---|---|---|
| Hastings | 5219 | HGS | 0.94 KM |
| Ore | 5021 | ORE | 1.13 KM |
| St Leonards Warrior Square | 5239 | SLQ | 2.78 KM |
| West St Leonards | 5242 | WLD | 5.05 KM |
| Three Oaks | 5028 | TOK | 5.61 KM |
Nearby Listings
| Address | Price | Type | Score | Distance |
|---|---|---|---|---|
| Milward Crescent, Hastings | £ 275,000 | BUY | 6 / 10 | 0.00 KM |
| Milward Road, Hastings | £ 200,000 | BUY | 7 / 10 | 0.02 KM |
| Milward Road, Hastings | £ 450,000 | BUY | Unknown | 0.03 KM |
| Milward Road, Hastings | £ 425,000 | BUY | 5 / 10 | 0.04 KM |
| Milward Road, Hastings | £ 250,000 | BUY | 6 / 10 | 0.04 KM |
Nearby Properties
| Address | Price | Distance |
|---|---|---|
| 20 Milward Road | £ 93,500 | 0.03 KM |
| 54 Milward Road | £ 19,500 | 0.03 KM |
| 76 Milward Road | £ 318,500 | 0.03 KM |
| 22b Milward Road | £ 11,300 | 0.03 KM |
| 36 Milward Road | £ 110,000 | 0.03 KM |