Leaders Sales says ..
Welcome to this beautifully presented 2-bedroom flat, conveniently located and ready for you to move in without the hassle of a chain. This modern home features a bright and spacious open-plan kitchen and living area, perfect for entertaining or enjoying quality family time. The kitchen is well-e...
Property Oracle says ..
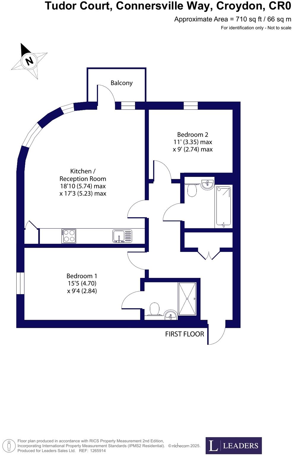
The property is a two-bedroom, two-bathroom apartment located in Waddon, Croydon, with a list price of £260,000. The apartment has 562.72 sqft of living space and a 710 sqft plot. The apartment appears to be in good condition based on the provided images. The interior is modern and well-maintained, with new flooring and updated fixtures. There is no visible evidence of damage or disrepair. While the plot size is relatively small for a property in this area, it does include a balcony offering an outside space. Considering the average price per sqft in the area is £686, and the average property price is £779,634, this apartment is significantly below average in price. However, the average property size is 1,135 sqft, considerably larger than the apartment in question. The lower price point may reflect the smaller size of the property and the lack of substantial outdoor space beyond the balcony. Nearby comparable properties are listed at similar price points, supporting the list price as reasonable within the context of the local market for smaller apartments. The proximity to transport links and schools adds to the property’s appeal. In summary, this property presents a good value option for buyers seeking a modern, well-maintained apartment in a convenient location, albeit smaller than the average property in the area.
Therefore, we give this property 7 / 10. *Disclaimer: This is our option and does constitute a recommendation or financial advice. Do your own research. *
- Price
- 7
- Condition
- 9
- Location
- 8
- Land
- 4
- Bedrooms
- 2
- Bathrooms
- 2
- Sqft (est)
- 562.72
- Lot (est)
- 710.00
The heatmap indicates the level of crime in the area. The color of the heatmap indicates the crime severity and recency.
Metrics Year-on-Year
- Average area value
- 381,364.00 £Increased by 0.63 %
- Est sale value
- 297,116.16 £Increased by 11.63 %
- Average area rental value
- 1,567.00 £/moDecreased by 7.93 %
- Est letting value
- 1,125.44 £/moUnchanged by 0.00 %
- Est rental Yield
- 4.93 %Decreased by 8.53 %
- Crime Rate
- 8.00 %Unchanged by 0.00 %
Agent Activity
Leaders Sales created the listing.
Nearby Schools
| Name | Type | Ofsted | Distance |
|---|---|---|---|
| The Write Time | Other Independent Special School | Good | 0.62 KM |
| The Minster Nursery And Infant School | Voluntary Aided School | Good | 0.84 KM |
| The Minster Junior School | Voluntary Aided School | Good | 0.84 KM |
| Harris Primary Academy Croydon | Academy Sponsor Led | 0.93 KM | |
| Link Secondary School | Academy Special Converter | 1.05 KM |
Images
Nearby Streets
| Name | Average Price | Average Sqft | Distance |
|---|---|---|---|
| Eland Place | £ 350,000 | 0 | 0.00 KM |
| The Ridgeway | £ 525,000 | 0 | 0.00 KM |
| Ridge's Yard | £ 380,000 | 0 | 0.00 KM |
| Hart Close | £ 0 | 0 | 0.00 KM |
| Allen Road | £ 0 | 0 | 0.00 KM |
Nearby Transport
| Name | NLC | TLC | Distance |
|---|---|---|---|
| Waddon | 5392 | WDO | 0.65 KM |
| West Croydon | 5411 | WCY | 1.65 KM |
| East Croydon | 5355 | ECR | 2.63 KM |
| South Croydon | 5410 | SCY | 2.79 KM |
| Thornton Heath | 5388 | TTH | 3.37 KM |
Nearby Listings
| Address | Price | Type | Score | Distance |
|---|---|---|---|---|
| Connersville Way, Croydon | £ 260,000 | BUY | 7 / 10 | 0.00 KM |
| Connersville Way, Croydon, CR0 | £ 300,000 | BUY | 7 / 10 | 0.00 KM |
| Connersville Way, Croydon, CR0 | £ 350,000 | BUY | 7 / 10 | 0.00 KM |
| Whitestone Way, Croydon, CR0 | £ 325,000 | BUY | 6 / 10 | 0.04 KM |
| Whitestone Way, CROYDON, Surrey, CR0 | £ 260,000 | BUY | Unknown | 0.04 KM |
Nearby Properties
| Address | Price | Distance |
|---|---|---|
| 104 Whitestone Way | £ 240,500 | 0.08 KM |
| 370 Whitestone Way | £ 206,995 | 0.08 KM |
| 122 Whitestone Way | £ 201,000 | 0.08 KM |
| 132 Whitestone Way | £ 155,495 | 0.08 KM |
| 38 Whitestone Way | £ 188,000 | 0.08 KM |