Hawkins says ..
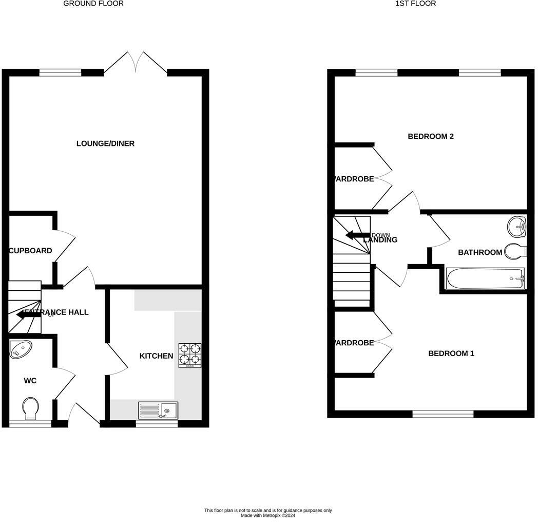
* INVESTORS ONLY * Sheldon Bosley Knights are pleased to offer to market this two bedroom end terrace home on Bulkington Road, Bedworth, within walking distance to the town centre and train station, benefitting from gas central heating and double glazing throughout. In brief the home comprises of...
Property Oracle says ..
This two-bedroom, one-bathroom terraced house located on Bulkington Road in Bedworth, Warwickshire, is marketed as an investment opportunity. Its proximity to Bedworth town centre and the train station is a significant advantage, providing easy access to amenities and transportation. The property’s interior is presented as functional rather than luxurious, with the provided images showcasing a relatively average condition and a small enclosed rear garden. While the photos indicate no apparent major structural flaws, some areas could benefit from cosmetic updates. The listing highlights that the property has gas central heating and double glazing. The pricing seems competitive in light of the nearby property listings, although the absence of specific square footage data for many comparable houses makes a perfectly precise price-per-square-foot analysis impossible. Overall, this property represents a potential investment opportunity suited for buyers or investors seeking a reasonably priced, well-located property with easy access to amenities but with limitations in land size and requiring potential cosmetic improvements.
Therefore, we give this property 6 / 10. *Disclaimer: This is our option and does constitute a recommendation or financial advice. Do your own research. *
- Price
- 7
- Condition
- 6
- Location
- 7
- Land
- 4
- Bedrooms
- 2
- Bathrooms
- 1
- Sqft (est)
- 680.00
The heatmap indicates the level of crime in the area. The color of the heatmap indicates the crime severity and recency.
Metrics Year-on-Year
- Average area value
- 371,430.00 £Increased by 11.76 %
- Est sale value
- 373,320.00 £Increased by 82.39 %
- Average area rental value
- 1,951.00 £/moDecreased by 12.94 %
- Est letting value
- 1,360.00 £/moUnchanged by 0.00 %
- Est rental Yield
- 6.30 %Decreased by 22.13 %
- Crime Rate
- 9.00 %Unchanged by 0.00 %
Agent Activity
Hawkins created the listing.
Nearby Schools
| Name | Type | Ofsted | Distance |
|---|---|---|---|
| All Saints Bedworth Cofe Academy | Academy Converter | 0.28 KM | |
| St Michaels Children'S Centre (Formerly Known As Bedworth Early Years Centre) | Children's Centre | 0.47 KM | |
| Nicholas Chamberlaine School | Academy Sponsor Led | Requires improvement | 0.49 KM |
| St Michael'S Church Of England Academy | Academy Sponsor Led | Good | 0.56 KM |
| St Francis Catholic Academy | Academy Converter | Good | 0.82 KM |
Images
Nearby Streets
| Name | Average Price | Average Sqft | Distance |
|---|---|---|---|
| Byron Avenue | £ 210,000 | 0 | 0.00 KM |
| Milton Close | £ 0 | 0 | 0.00 KM |
| Shakespeare Avenue | £ 0 | 0 | 0.00 KM |
| Chapel Street | £ 0 | 0 | 0.00 KM |
| Edward Road | £ 0 | 0 | 0.00 KM |
Nearby Transport
| Name | NLC | TLC | Distance |
|---|---|---|---|
| Bedworth | 1165 | BEH | 0.41 KM |
| Bermuda Park | 6543 | BEP | 2.69 KM |
| Coventry Arena | 7416 | CAA | 4.82 KM |
| Nuneaton | 1077 | NUN | 5.30 KM |
Nearby Listings
| Address | Price | Type | Score | Distance |
|---|---|---|---|---|
| Bulkington Road, Bedworth | £ 160,000 | BUY | 7 / 10 | 0.00 KM |
| Bulkington Road, Bedworth | £ 170,000 | BUY | 6 / 10 | 0.00 KM |
| Bulkington Road, Bedworth | £ 169,950 | BUY | 7 / 10 | 0.06 KM |
| Bulkington Road, Bedworth, CV12 | £ 160,000 | BUY | 5 / 10 | 0.10 KM |
| Hatters Court, Bedworth, Warwickshire, CV12 | £ 245,000 | BUY | 7 / 10 | 0.10 KM |
Nearby Properties
| Address | Price | Distance |
|---|---|---|
| 96 Bulkington Road | £ 114,000 | 0.06 KM |
| 102 Bulkington Road | £ 37,995 | 0.06 KM |
| 104 Bulkington Road | £ 80,000 | 0.06 KM |
| 88 Bulkington Road | £ 115,000 | 0.06 KM |
| 112 Bulkington Road | £ 113,000 | 0.06 KM |