73 Kemsley Road, Maypole, Birmingham, B14 5DN
By Bond Wolfe
£ 50,000
Reviews
2 out of 5 stars
Bond Wolfe says ..
For Sale By Public Auction 23 October 2025 A vacant freehold end terraced property
Property Oracle says ..
This end-of-terrace property at 73 Kemsley Road, Maypole, Birmingham, presents a significant renovation opportunity. The house requires extensive work throughout, as evidenced by the damaged walls, ceilings, and flooring. The kitchen and bathroom are in poor condition. However, the property benefits from a garden with a shed, providing outdoor space. Located in Maypole, the property is within a reasonable distance of schools and transportation links. The list price of £50,000 is substantially below the local average, reflecting the property’s current condition and offering considerable potential for value appreciation after renovation.
Therefore, we give this property 5 / 10. *Disclaimer: This is our option and does constitute a recommendation or financial advice. Do your own research. *
- Price
- 9
- Condition
- 2
- Location
- 6
- Land
- 6
- Bedrooms
- 3
- Bathrooms
- 0
The heatmap indicates the level of crime in the area. The color of the heatmap indicates the crime severity and recency.
Metrics Year-on-Year
- Average area value
- 210,398.00 £Decreased by 9.64 %
- Average area rental value
- 1,204.00 £/moIncreased by 43.33 %
- Est rental Yield
- 6.87 %Increased by 58.66 %
- Crime Rate
- 10.00 %Unchanged by 0.00 %
Agent Activity
Bond Wolfe created the listing.
Nearby Schools
| Name | Type | Ofsted | Distance |
|---|---|---|---|
| St Jude'S Catholic Primary School | Voluntary Aided School | Good | 0.43 KM |
| Grendon Primary School | Community School | Good | 0.62 KM |
| Maypole Children'S Centre | Children's Centre | 0.76 KM | |
| St Alban'S Catholic Primary School | Voluntary Aided School | Good | 0.82 KM |
| Hollywood Primary School | Community School | Good | 0.91 KM |
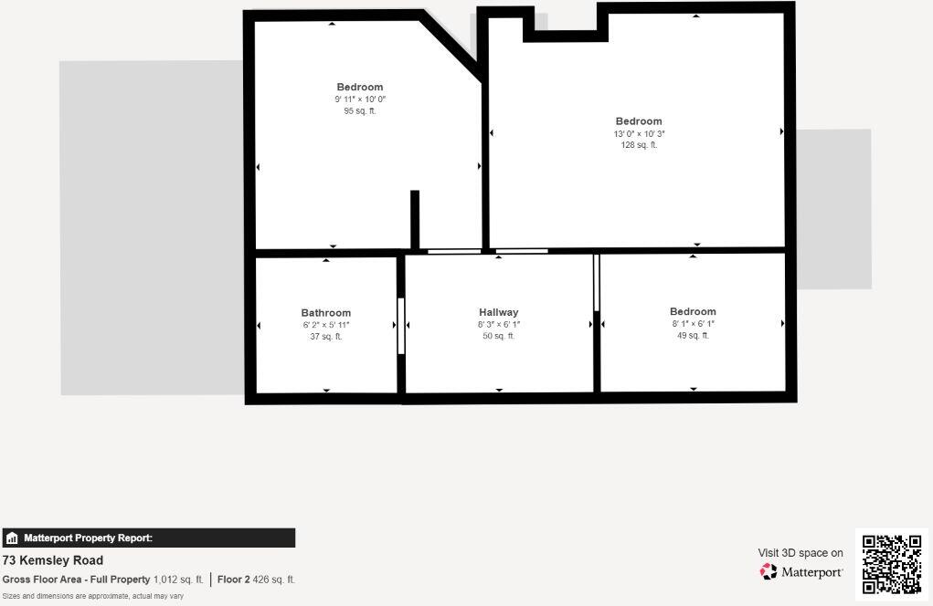
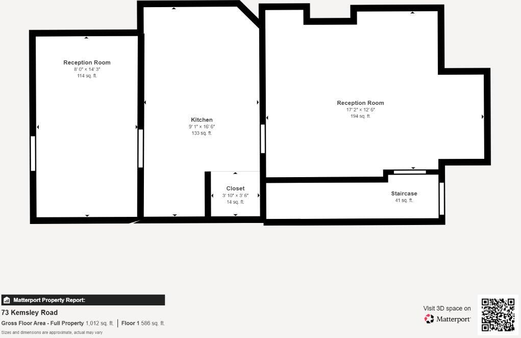
Images
Nearby Streets
| Name | Average Price | Average Sqft | Distance |
|---|---|---|---|
| Myrtle Avenue | £ 269,167 | 0 | 0.00 KM |
| Woodman Road | £ 315,000 | 0 | 0.00 KM |
| Edward Road | £ 299,000 | 0 | 0.00 KM |
| Lark Close | £ 0 | 0 | 0.00 KM |
| Tudor Close | £ 0 | 0 | 0.00 KM |
Nearby Transport
| Name | NLC | TLC | Distance |
|---|---|---|---|
| Wythall | 4532 | WYT | 3.83 KM |
| Yardley Wood | 4537 | YRD | 3.83 KM |
| Whitlocks End | 4539 | WTE | 4.21 KM |
| Shirley | 4526 | SRL | 4.55 KM |
| Bournville | 1112 | BRV | 4.95 KM |
Nearby Listings
| Address | Price | Type | Score | Distance |
|---|---|---|---|---|
| 73 Kemsley Road, Maypole, Birmingham, B14 5DN | £ 50,000 | BUY | 5 / 10 | 0.00 KM |
| Kemsley Road, Birmingham, B14 5DN | £ 280,000 | BUY | 7 / 10 | 0.10 KM |
| Kemsley Road, Birmingham, West Midlands | £ 260,000 | BUY | 7 / 10 | 0.10 KM |
| Nafford Grove, Birmingham | £ 150,000 | BUY | 7 / 10 | 0.12 KM |
| Garage R/O 947-949 Alcester Road South, Kings Heath, Birmingham, B14 5JA | £ 5,000 | BUY | 4 / 10 | 0.15 KM |
Nearby Properties
| Address | Price | Distance |
|---|---|---|
| 15 Kemsley Road | £ 112,500 | 0.10 KM |
| 12 Hawkhurst Road | £ 132,000 | 0.10 KM |
| 10 Hawkhurst Road | £ 115,000 | 0.10 KM |
| 25 Kemsley Road | £ 50,000 | 0.10 KM |
| 27 Kemsley Road | £ 145,000 | 0.10 KM |