The Belmont, Bradford Road, Old Town, SN1
By The House Group
£ 165,000
Reviews
3 out of 5 stars
The House Group says ..
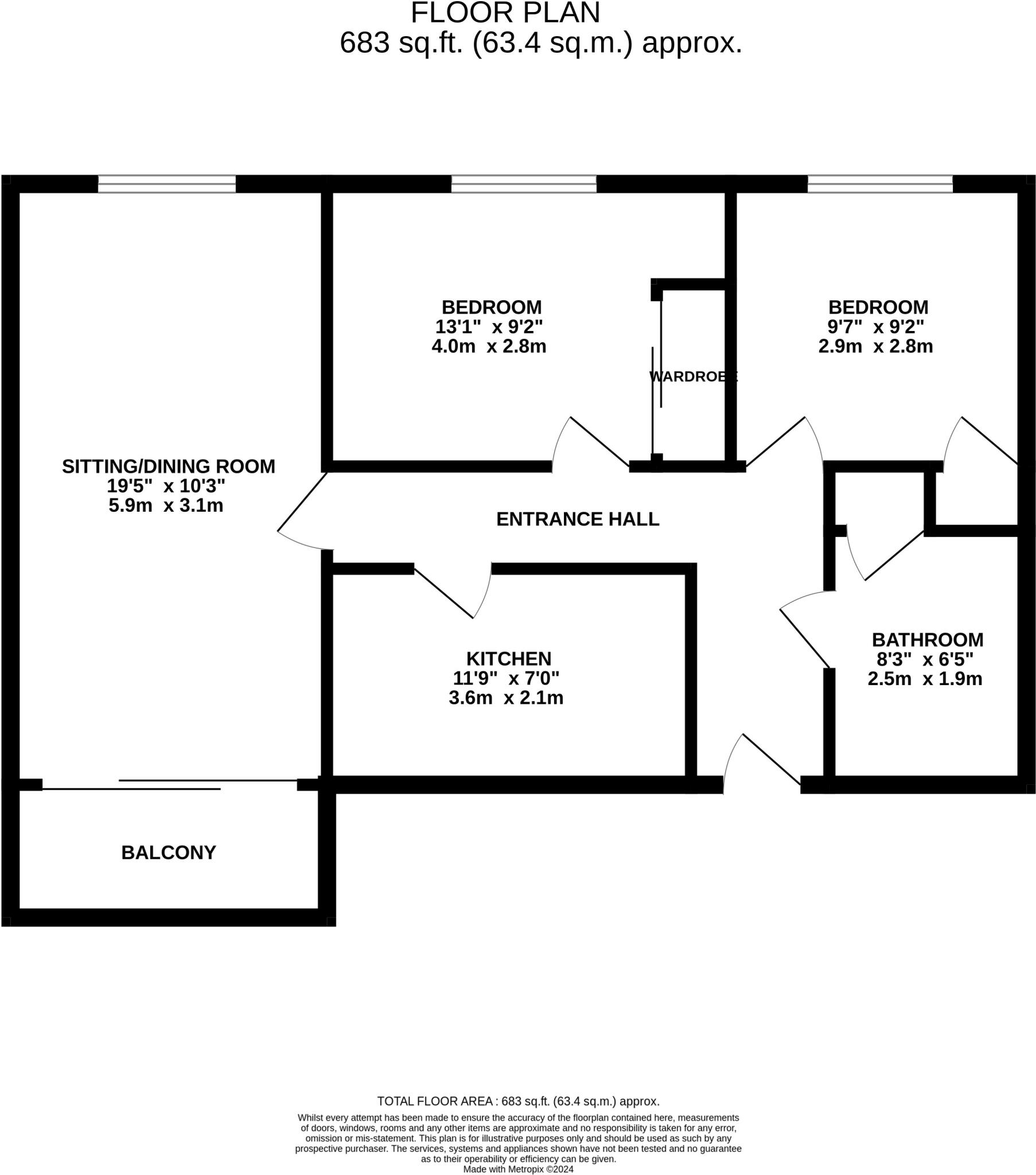
HOUSE are delighted to offer for sale this immaculate two bedroom apartment located in the heart of Old Town, Swindon. The property is offered for sale with NO ONWARD CHAIN and comprises as follows: newly fitted video communal entrance to tow aspects, one via the main road and one via the secure ...
Property Oracle says ..
The property is a two-bedroom apartment located in Old Town, Swindon. Old Town is a desirable area known for its historic charm, independent shops, and proximity to Swindon town centre. The apartment itself appears to be in excellent condition, with modern fixtures and fittings evident in the provided photographs. The kitchen and bathroom are well-maintained and updated. The living areas are spacious and well-presented. While the listing mentions a balcony, the size and usability aren’t specified. The plot size is relatively small, typical of an apartment. Considering the average price per square foot in the area is £348, and this property is listed at £165,000 with 536 sqft, the price per sqft is approximately £308. This represents a lower price per sqft than the area average. However, it’s important to note that the average price and sqft data may not accurately reflect the specific market value of this apartment due to its size and type. The surrounding properties and apartments for sale in the same area support the listed price, with many similar properties in the same price range. The lack of a significant garden is typical for an apartment and should be considered. The proximity to schools and transport links adds to the property’s desirability.
Therefore, we give this property 7 / 10. *Disclaimer: This is our option and does constitute a recommendation or financial advice. Do your own research. *
- Price
- 8
- Condition
- 9
- Location
- 9
- Land
- 3
- Bedrooms
- 2
- Bathrooms
- 1
- Sqft (est)
- 536.00
- Lot (est)
- 683.00
The heatmap indicates the level of crime in the area. The color of the heatmap indicates the crime severity and recency.
Metrics Year-on-Year
- Average area value
- 364,023.00 £Increased by 8.60 %
- Est sale value
- 220,832.00 £Increased by 57.25 %
- Average area rental value
- 1,137.00 £/moDecreased by 2.15 %
- Est letting value
- 536.00 £/mo
- Est rental Yield
- 3.75 %Decreased by 9.86 %
- Crime Rate
- 26.00 %Unchanged by 0.00 %
Agent Activity
The House Group created the listing.
Nearby Schools
| Name | Type | Ofsted | Distance |
|---|---|---|---|
| Lethbridge Primary School | Academy Converter | Good | 0.27 KM |
| King William Street Church Of England Primary School | Academy Converter | Good | 0.34 KM |
| The Croft Primary School | Academy Sponsor Led | Outstanding | 0.65 KM |
| Holy Rood Catholic Primary School | Academy Converter | Requires improvement | 0.73 KM |
| Drove Children'S Centre | Children's Centre | 1.13 KM |
Images
Nearby Streets
| Name | Average Price | Average Sqft | Distance |
|---|---|---|---|
| Queensbury House | £ 140,000 | 0 | 0.00 KM |
| The Mews | £ 0 | 0 | 0.00 KM |
| Hoopers Place | £ 0 | 0 | 0.00 KM |
| Michael's Way | £ 0 | 0 | 0.00 KM |
| Newport Street | £ 180,000 | 0 | 0.00 KM |
Nearby Transport
| Name | NLC | TLC | Distance |
|---|---|---|---|
| Swindon (Wilts) | 3333 | SWI | 1.76 KM |
Nearby Listings
| Address | Price | Type | Score | Distance |
|---|---|---|---|---|
| The Belmont, Bradford Road, Old Town, SN1 | £ 165,000 | BUY | 7 / 10 | 0.00 KM |
| Bradford Road, Old Town, SN1 | £ 150,000 | BUY | 6 / 10 | 0.01 KM |
| Bradford Road, Old Town, SN1 | £ 100,500 | BUY | 6 / 10 | 0.01 KM |
| Bradford Road, Swindon, SN1 4 | £ 150,000 | BUY | 5 / 10 | 0.03 KM |
| Bradford Road, Swindon, SN1 4 | £ 75,000 | BUY | 6 / 10 | 0.06 KM |
Nearby Properties
| Address | Price | Distance |
|---|---|---|
| 15 Bradford Road | £ 140,000 | 0.01 KM |
| 1 Bradford Road | £ 142,000 | 0.01 KM |
| 18 Bradford Road | £ 71,000 | 0.01 KM |
| 16 Bradford Road | £ 102,217 | 0.01 KM |
| 2 Bradford Road | £ 159,950 | 0.01 KM |