Minors & Brady says ..
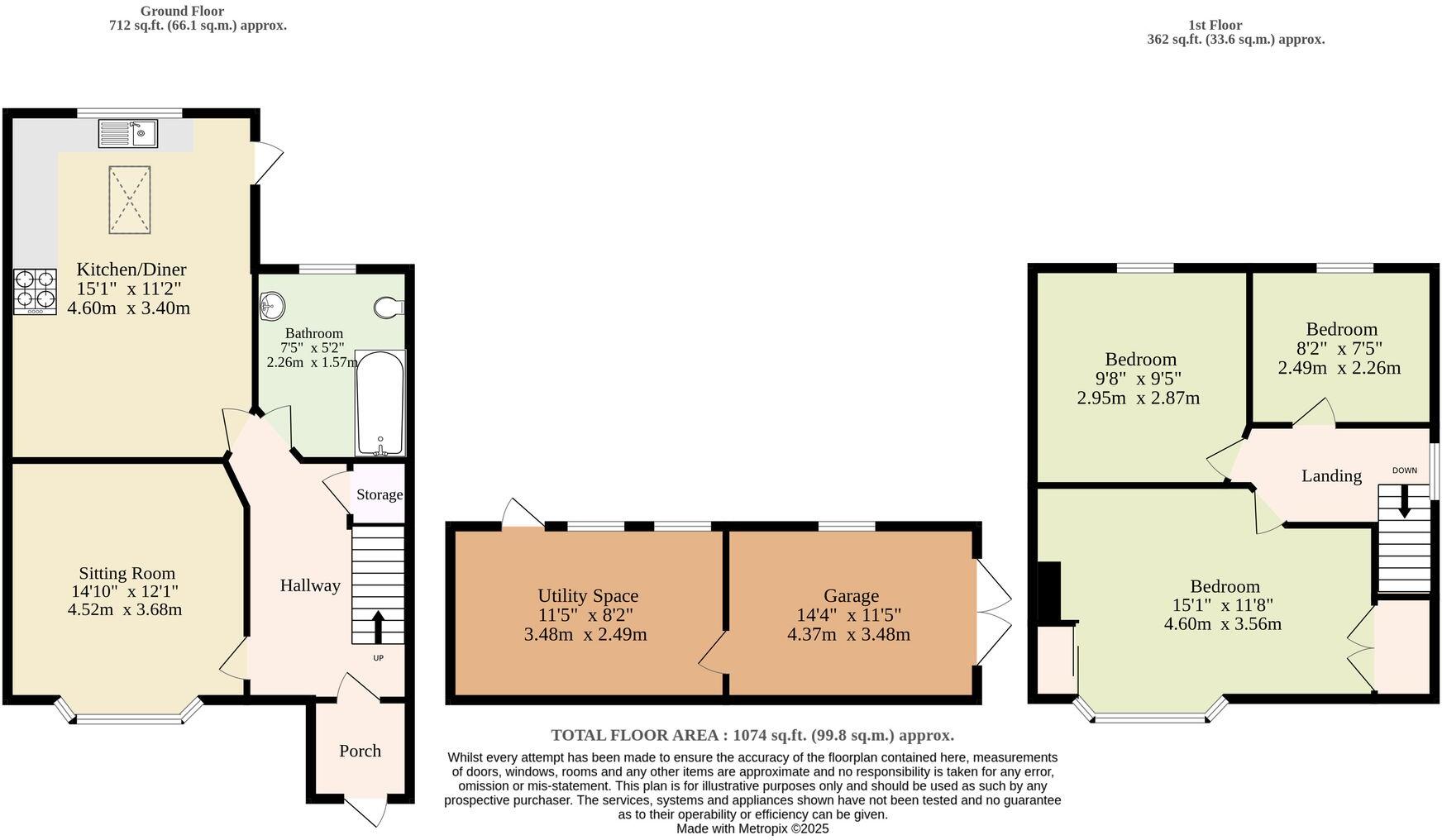
Set on a peaceful, no-through road just southeast of Norwich city centre, this beautifully modernised three-bedroom end-of-terrace home effortlessly combines period charm with contemporary flair. The light-filled kitchen/breakfast room extends to a private, south-facing garden — perfect for summe...
Property Oracle says ..
Therefore, we give this property 6 / 10. *Disclaimer: This is our option and does constitute a recommendation or financial advice. Do your own research. *
- Price
- 6
- Condition
- 7
- Location
- 7
- Land
- 6
- Bedrooms
- 3
- Bathrooms
- 1
The heatmap indicates the level of crime in the area. The color of the heatmap indicates the crime severity and recency.
Metrics Year-on-Year
- Average area value
- 286,250.00 £Increased by 20.30 %
- Average area rental value
- 1,063.00 £/moIncreased by 3.30 %
- Est rental Yield
- 4.46 %Decreased by 14.07 %
- Crime Rate
- 4.00 %Unchanged by 0.00 %
from 237,951.00 £
from 1,029.00 £/mo
from 5.19 %
from 4.00 %
Agent Activity
Minors & Brady created the listing.
Nearby Schools
| Name | Type | Ofsted | Distance |
|---|---|---|---|
| Lakenham Primary School | Foundation School | Good | 0.27 KM |
| Norwich Steiner School | Other Independent School | Good | 0.40 KM |
| East City And Framingham Earl Area Children'S Centre | Children's Centre | 0.73 KM | |
| Edith Cavell Academy And Nursery | Academy Sponsor Led | Good | 0.81 KM |
| The Wherry School | Free Schools Special | 1.06 KM |
Images
Nearby Streets
| Name | Average Price | Average Sqft | Distance |
|---|---|---|---|
| Saint Johns Close | £ 0 | 0 | 0.00 KM |
| Broom Close | £ 0 | 0 | 0.00 KM |
| Old School Court | £ 180,000 | 0 | 0.00 KM |
| Mill Close | £ 155,000 | 0 | 0.00 KM |
| Kings Lane | £ 170,000 | 0 | 0.00 KM |
Nearby Transport
| Name | NLC | TLC | Distance |
|---|---|---|---|
| Norwich | 7309 | NRW | 1.66 KM |
Nearby Listings
| Address | Price | Type | Score | Distance |
|---|---|---|---|---|
| Stratford Close, Norwich | £ 300,000 | BUY | 6 / 10 | 0.00 KM |
| Stratford Close, Norwich | £ 300,000 | BUY | 7 / 10 | 0.02 KM |
| Sunny Hill, Norwich, Norfolk | £ 150,000 | BUY | 6 / 10 | 0.03 KM |
| Stratford Close, Norwich | £ 300,000 | BUY | 6 / 10 | 0.04 KM |
| Sunny Hill, Norwich | £ 145,000 | BUY | 5 / 10 | 0.04 KM |
Nearby Properties
| Address | Price | Distance |
|---|---|---|
| 11 Stratford Close | £ 135,000 | 0.04 KM |
| 12 Stratford Close | £ 245,000 | 0.04 KM |
| 1 Stratford Close | £ 168,000 | 0.04 KM |
| 4 Stratford Close | £ 172,500 | 0.04 KM |
| 16 Stratford Close | £ 152,000 | 0.04 KM |