MI
Higher Lane, Rainford, St Helens, Merseyside, WA11 8EQ
By Miller Homes North West
£ 399,995
Reviews
4 out of 5 stars
Miller Homes North West says ..
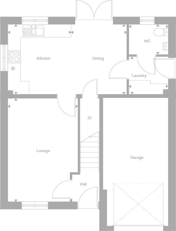
LIMITED OFFER: Reserve your new home by 30th June and receive a 5% DEPOSIT CONTRIBUTION on selected plots. T&Cs apply.The stylish lounge opens on to a bright, inspiring kitchen, a natural hub for family life, with FRENCH DOORS adding an exciting flexibility to the dining area. The dedicated LAUND...
Property Oracle says ..
Therefore, we give this property 8 / 10. *Disclaimer: This is our option and does constitute a recommendation or financial advice. Do your own research. *
- Price
- 9
- Condition
- 9
- Location
- 8
- Land
- 7
- Bedrooms
- 4
- Bathrooms
- 0
- Sqft (est)
- 878.00
The heatmap indicates the level of crime in the area. The color of the heatmap indicates the crime severity and recency.
Metrics Year-on-Year
- Average area value
- 543,800.00 £Increased by 17.00 %
- Est sale value
- 471,486.00 £Increased by 32.27 %
- Average area rental value
- 1,669.00 £/moDecreased by 26.99 %
- Est letting value
- 878.00 £/moDecreased by 50.00 %
- Est rental Yield
- 3.68 %Decreased by 37.63 %
- Crime Rate
- 18.00 %Unchanged by 0.00 %
from 464,776.00 £
from 356,468.00 £
from 2,286.00 £/mo
from 1,756.00 £/mo
from 5.90 %
from 18.00 %
Agent Activity
Miller Homes North West created the listing.
Nearby Schools
| Name | Type | Ofsted | Distance |
|---|---|---|---|
| Rainford Cofe Primary School | Academy Converter | 1.30 KM | |
| Rainford High School | Academy Converter | Good | 1.71 KM |
| Rainford Brook Lodge Community Primary School | Community School | Good | 1.78 KM |
| Corpus Christi Catholic Primary School | Voluntary Aided School | Good | 2.04 KM |
| Bleak Hill Primary School | Community School | Outstanding | 3.58 KM |
Images
Nearby Streets
| Name | Average Price | Average Sqft | Distance |
|---|---|---|---|
| Carter Avenue | £ 0 | 0 | 0.00 KM |
| Wellfield | £ 225,000 | 0 | 0.00 KM |
| Rose Place | £ 240,000 | 0 | 0.00 KM |
| Queensway | £ 160,000 | 0 | 0.00 KM |
| All Saints Court | £ 0 | 0 | 0.00 KM |
Nearby Transport
| Name | NLC | TLC | Distance |
|---|---|---|---|
| Rainford | 2404 | RNF | 2.91 KM |
| Upholland | 2364 | UPL | 5.37 KM |
| Thatto Heath | 2264 | THH | 6.70 KM |
| St Helens Central | 2341 | SNH | 6.84 KM |
| Eccleston Park | 2227 | ECL | 7.10 KM |
Nearby Listings
| Address | Price | Type | Score | Distance |
|---|---|---|---|---|
| Higher Lane, Rainford, St Helens, Merseyside, WA11 8EQ | £ 433,995 | BUY | 7 / 10 | 0.00 KM |
| Higher Lane, Rainford, St Helens, Merseyside, WA11 8EQ | £ 285,995 | BUY | 6 / 10 | 0.00 KM |
| Rookery Lane, Rainford, St Helens, Merseyside, WA11 8EQ | £ 326,995 | BUY | 7 / 10 | 0.00 KM |
| Rookery Lane, Rainford, St Helens, Merseyside, WA11 8EQ | £ 324,995 | BUY | 7 / 10 | 0.00 KM |
| Rookery Lane, Rainford, St Helens, Merseyside, WA11 8EQ | £ 229,995 | BUY | 7 / 10 | 0.00 KM |
Nearby Properties
| Address | Price | Distance |
|---|---|---|
| 67 Rookery Lane | £ 228,000 | 0.25 KM |
| 51 Rookery Lane | £ 195,000 | 0.25 KM |
| 77 Rookery Lane | £ 205,000 | 0.25 KM |
| 85 Rookery Lane | £ 230,000 | 0.25 KM |
| 63 Rookery Lane | £ 290,000 | 0.25 KM |