Southgate Estates says ..
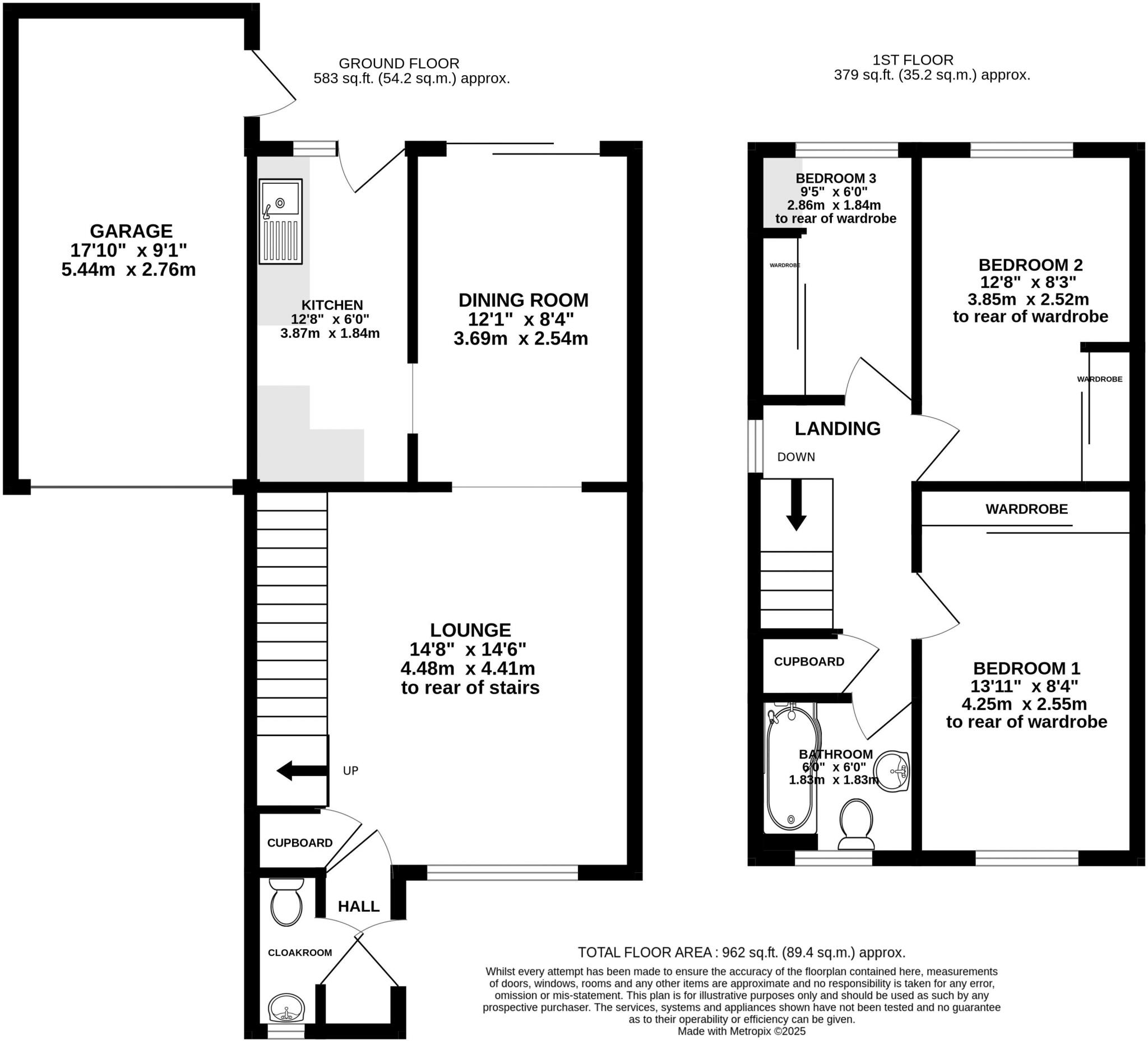
A three bedroom detached family home located in the popular village of Exminster. The property is being sold with no onward chain, and benefits from a garage with off-road parking in front, as well as an enclosed garden to the rear. The internal accommodation briefly consists of an entrance hall,...
Property Oracle says ..
Brownlees is located in the Kenn Valley area of Exminster, Devon. The property is a 3-bedroom, 1-bathroom detached house with 854 sqft of living space and a 962 sqft plot. The list price is £350,000. The average house price in the area is £357,857, with an average price per sqft of £356. This property is slightly below average in terms of price per sqft, considering its size. Based on the provided images, the property appears to be in need of some modernisation and updating. The carpets are worn, and the décor is dated. While structurally sound, the property would benefit from refurbishment to enhance its overall condition and appeal. The kitchen and bathroom, in particular, show signs of age and could use updating. The property includes a small garden, which is a positive aspect, although it is not particularly large. The garden is enclosed and offers some outdoor space. Considering the property’s condition, the relatively small plot size, and its location in a generally desirable area with nearby schools and transportation links, the list price of £350,000 appears to be reasonably priced, although potential buyers should factor in the cost of necessary renovations. The slightly below-average price per sqft compared to local averages reflects the need for modernisation. The nearby schools, Exminster Community Primary and The New School, are within a short distance, making it convenient for families. Several train stations are within a reasonable driving distance, providing good transportation links.
Therefore, we give this property 6 / 10. *Disclaimer: This is our option and does constitute a recommendation or financial advice. Do your own research. *
- Price
- 7
- Condition
- 6
- Location
- 7
- Land
- 5
- Bedrooms
- 3
- Bathrooms
- 1
- Sqft (est)
- 854.00
- Lot (est)
- 962.00
The heatmap indicates the level of crime in the area. The color of the heatmap indicates the crime severity and recency.
Metrics Year-on-Year
- Average area value
- 287,463.00 £Decreased by 27.54 %
- Est sale value
- 287,798.00 £Increased by 8.71 %
- Average area rental value
- 1,250.00 £/moDecreased by 10.65 %
- Est letting value
- 854.00 £/moUnchanged by 0.00 %
- Est rental Yield
- 5.22 %Increased by 23.40 %
- Crime Rate
- 2.00 %Unchanged by 0.00 %
Agent Activity
Southgate Estates created the listing.
Nearby Schools
| Name | Type | Ofsted | Distance |
|---|---|---|---|
| The New School | Other Independent School | 0.45 KM | |
| Exminster Community Primary | Community School | Good | 0.45 KM |
| Countess Wear Community School | Community School | Requires improvement | 2.08 KM |
| Countess Wear Exeter | Children's Centre | 2.11 KM | |
| Infocus School | Non-maintained Special School | Special Measures | 2.70 KM |
Images
Nearby Streets
| Name | Average Price | Average Sqft | Distance |
|---|---|---|---|
| Lime Grove | £ 485,000 | 0 | 0.00 KM |
| Hill Crest | £ 275,000 | 0 | 0.00 KM |
| River View Terrace | £ 310,000 | 0 | 0.00 KM |
| Lower Duck Street | £ 295,000 | 0 | 0.00 KM |
| Sannerville Way | £ 525,000 | 0 | 0.00 KM |
Nearby Transport
| Name | NLC | TLC | Distance |
|---|---|---|---|
| Topsham | 5758 | TOP | 4.00 KM |
| Newcourt | 9589 | NCO | 4.14 KM |
| Digby And Sowton | 5753 | DIG | 4.83 KM |
| Polsloe Bridge | 3422 | POL | 5.78 KM |
| Exeter St Thomas | 3414 | EXT | 6.02 KM |
Nearby Listings
| Address | Price | Type | Score | Distance |
|---|---|---|---|---|
| Brownlees, Exminster | £ 350,000 | BUY | 6 / 10 | 0.00 KM |
| Oak Close, Exminster | £ 290,000 | BUY | 6 / 10 | 0.05 KM |
| Oak Close, Exminster, Exeter | £ 300,000 | BUY | 7 / 10 | 0.05 KM |
| Brownlees, Exminster, Exeter, EX6 | £ 490,000 | BUY | 7 / 10 | 0.07 KM |
| Brownlees, Exminster, Exeter, EX6 | £ 260,000 | BUY | 7 / 10 | 0.07 KM |
Nearby Properties
| Address | Price | Distance |
|---|---|---|
| 39 Oak Close | £ 260,000 | 0.05 KM |
| 32 Oak Close | £ 285,000 | 0.05 KM |
| 31 Oak Close | £ 58,500 | 0.05 KM |
| 23 Oak Close | £ 225,000 | 0.05 KM |
| 29 Oak Close | £ 185,000 | 0.05 KM |