Jack Charles says ..
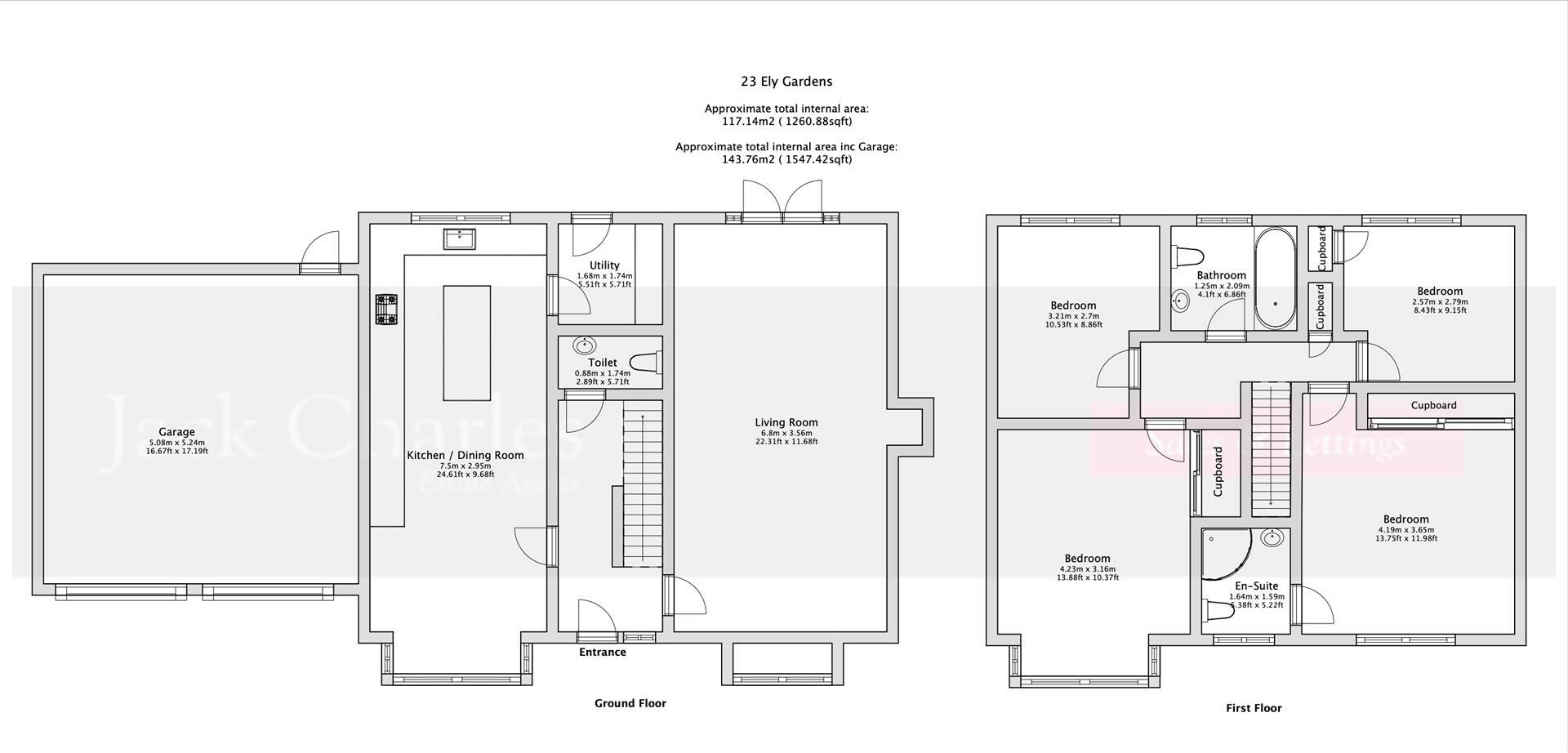
Jack Charles have the pleasure of offering for sale this beautifully presented detached family home situated in a favoured location just off The Ridgeway, and a short walk to town. The property offers scope STPP to extend to the rear and over the garage and into the loft space which others have d...
Property Oracle says ..
The property is located in Ely Gardens, Tonbridge, which is described as a favoured location just off The Ridgeway and a short walk to town. The area has an average house price of £269,779 and an average price per sqft of £246. Nearby listings show prices ranging from £705,000 to £1,100,000. The property itself is a 4-bedroom, 2-bathroom detached house with 1,197.97 sqft of living space and a 1,547.42 sqft plot. The photos show the property to be in excellent condition, with a modern kitchen and bathrooms. There is also a well-maintained garden with a patio area and pergola. Given the condition, location, and size of the property, the list price of £1,100,000 appears to be in line with comparable properties in the area. However, the lack of sqft data for nearby properties makes a precise comparison challenging. The proximity to schools and transport links is a positive factor.
Therefore, we give this property 8 / 10. *Disclaimer: This is our option and does constitute a recommendation or financial advice. Do your own research. *
- Price
- 7
- Condition
- 9
- Location
- 9
- Land
- 8
- Bedrooms
- 4
- Bathrooms
- 2
- Sqft (est)
- 1,197.97
- Lot (est)
- 1,547.42
The heatmap indicates the level of crime in the area. The color of the heatmap indicates the crime severity and recency.
Metrics Year-on-Year
- Average area value
- 259,821.00 £Increased by 8.05 %
- Est sale value
- 379,756.49 £Increased by 23.83 %
- Average area rental value
- 1,011.00 £/moIncreased by 5.53 %
- Est letting value
- 1,197.97 £/moUnchanged by 0.00 %
- Est rental Yield
- 4.67 %Decreased by 2.30 %
- Crime Rate
- 1.00 %Unchanged by 0.00 %
Agent Activity
Jack Charles created the listing.
Nearby Schools
| Name | Type | Ofsted | Distance |
|---|---|---|---|
| Ymca West Kent | Special Post 16 Institution | 0.65 KM | |
| Skills For Independence And Employability Ltd | Special Post 16 Institution | 0.67 KM | |
| Cage Green Primary School | Academy Sponsor Led | 0.83 KM | |
| Hugh Christie School | Foundation School | Good | 0.91 KM |
| Hilden Oaks Preparatory School And Nursery | Other Independent School | 1.03 KM |
Images
Nearby Streets
| Name | Average Price | Average Sqft | Distance |
|---|---|---|---|
| Rochester Road | £ 0 | 0 | 0.00 KM |
| Severn Close | £ 0 | 0 | 0.00 KM |
| Darenth Avenue | £ 0 | 0 | 0.00 KM |
| Wye Road | £ 0 | 0 | 0.00 KM |
| Thames Road | £ 0 | 0 | 0.00 KM |
Nearby Transport
| Name | NLC | TLC | Distance |
|---|---|---|---|
| Tonbridge | 5229 | TON | 2.11 KM |
| Hildenborough | 5236 | HLB | 6.22 KM |
| High Brooms | 5235 | HIB | 6.33 KM |
| Leigh (Kent) | 5294 | LIH | 8.15 KM |
| Tunbridge Wells | 5230 | TBW | 8.73 KM |
Nearby Listings
| Address | Price | Type | Score | Distance |
|---|---|---|---|---|
| Ely Gardens, Tonbridge | £ 1,100,000 | BUY | 8 / 10 | 0.00 KM |
| Ely Gardens, Tonbridge | £ 1,150,000 | BUY | Unknown | 0.09 KM |
| The Ridgeway, Tonbridge, TN10 4NJ | £ 900,000 | BUY | Unknown | 0.14 KM |
| Bickmore Way, Tonbridge, TN9 1ND | £ 950,000 | BUY | 7 / 10 | 0.20 KM |
| Bickmore Way, Tonbridge, Kent, TN9 | £ 1,085,000 | BUY | 8 / 10 | 0.22 KM |
Nearby Properties
| Address | Price | Distance |
|---|---|---|
| 15 Ely Gardens | £ 867,500 | 0.04 KM |
| 20 Ely Gardens | £ 240,000 | 0.04 KM |
| 26 Ely Gardens | £ 205,000 | 0.04 KM |
| 10 Ely Gardens | £ 825,000 | 0.04 KM |
| 23 Ely Gardens | £ 476,000 | 0.04 KM |