Bridgewater View, Anson Street, Eccles
By Leaders Sales
£ 110,000
Reviews
3 out of 5 stars
Leaders Sales says ..
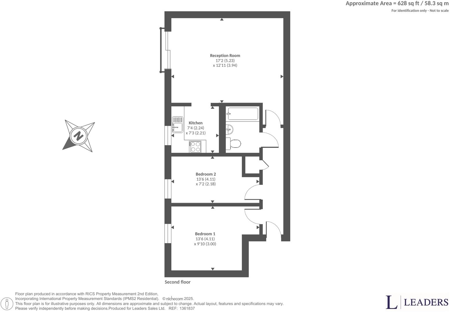
Introducing to the market this charming and well-presented two-bedroom, second floor apartment with Parking located in the popular area of the Worsley loop and nearby canal towpath at Bridgewater View! The apartment is situated on the second floor of a purpose-built building, offering ...
Property Oracle says ..
This two-bedroom apartment in Eccles, Salford, presents a solid opportunity for first-time buyers or investors. The property features a functional layout with a living area, kitchen, bathroom, and two bedrooms. While the apartment is in decent condition, some modernization could enhance its appeal. Its location offers convenient access to transportation and local amenities, making it a practical choice for daily living. The price point, notably below the area’s average per square foot, adds to its attractiveness.
Therefore, we give this property 6 / 10. *Disclaimer: This is our option and does constitute a recommendation or financial advice. Do your own research. *
- Price
- 8
- Condition
- 7
- Location
- 6
- Land
- 3
- Bedrooms
- 2
- Bathrooms
- 1
- Sqft (est)
- 503.75
The heatmap indicates the level of crime in the area. The color of the heatmap indicates the crime severity and recency.
Metrics Year-on-Year
- Average area value
- 373,182.00 £Decreased by 24.99 %
- Est sale value
- 193,943.75 £Decreased by 14.06 %
- Average area rental value
- 1,338.00 £/moDecreased by 1.04 %
- Est letting value
- 503.75 £/moUnchanged by 0.00 %
- Est rental Yield
- 4.30 %Increased by 31.90 %
- Crime Rate
- 0.00 %
Agent Activity
Leaders Sales created the listing.
Nearby Schools
| Name | Type | Ofsted | Distance |
|---|---|---|---|
| Westwood Park Community Primary School | Community School | Requires improvement | 0.76 KM |
| South Children'S Centre | Children's Centre | 0.88 KM | |
| New Park Academy | Academy Special Sponsor Led | 0.93 KM | |
| Broadoak Primary School | Academy Converter | 1.16 KM | |
| Christ Church Cofe Primary School | Voluntary Aided School | Good | 1.19 KM |
Images
Nearby Streets
| Name | Average Price | Average Sqft | Distance |
|---|---|---|---|
| Oakmere Avenue | £ 0 | 0 | 0.00 KM |
| M602 | £ 120,000 | 0 | 0.00 KM |
| Dale Avenue | £ 0 | 0 | 0.00 KM |
| Fairmount Road | £ 0 | 0 | 0.00 KM |
| Newbury Drive | £ 0 | 0 | 0.00 KM |
Nearby Transport
| Name | NLC | TLC | Distance |
|---|---|---|---|
| Patricroft | 2916 | PAT | 0.88 KM |
| Moorside | 2799 | MSD | 2.90 KM |
| Eccles (Manchester) | 2950 | ECC | 3.06 KM |
| Swinton (Manchester) | 2800 | SNN | 3.67 KM |
| Urmston | 2938 | URM | 4.94 KM |
Nearby Listings
| Address | Price | Type | Score | Distance |
|---|---|---|---|---|
| Anson Street, Eccles, Manchester | £ 105,000 | BUY | 5 / 10 | 0.00 KM |
| Bridgewater View, Anson Street, Eccles | £ 110,000 | BUY | 6 / 10 | 0.00 KM |
| Parrin Lane, Eccles, M30 | £ 240,000 | BUY | 6 / 10 | 0.05 KM |
| Parrin Lane, Eccles, M30 | £ 260,000 | BUY | 7 / 10 | 0.07 KM |
| Parrin Lane, Eccles, M30 | £ 180,000 | BUY | 5 / 10 | 0.07 KM |
Nearby Properties
| Address | Price | Distance |
|---|---|---|
| 96 Parrin Lane | £ 113,700 | 0.05 KM |
| 62 Parrin Lane | £ 39,000 | 0.05 KM |
| 8a Parrin Lane | £ 85,000 | 0.05 KM |
| 40 Parrin Lane | £ 75,000 | 0.05 KM |
| 18c Parrin Lane | £ 212,000 | 0.05 KM |