Stags says ..
An attractive vineyard and holiday accommodation business with established restaurant and events venue in a stunning location overlooking the Teign Estuary. In all 14 acres.
Property Oracle says ..
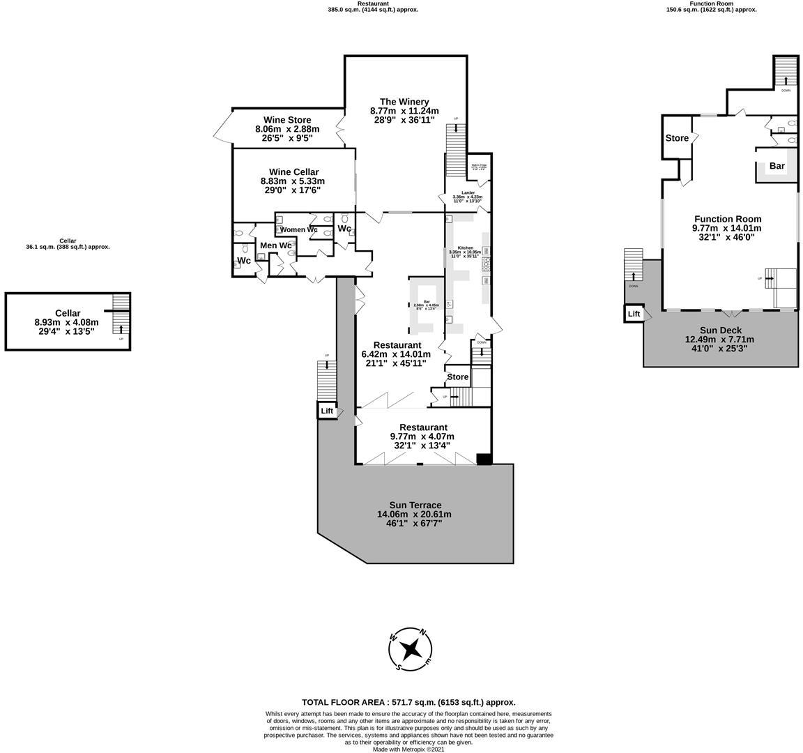
This property presents a unique opportunity to acquire a thriving business in a picturesque setting. The listing describes an attractive vineyard and holiday accommodation, complete with a restaurant and events venue. The location overlooks the Teign Estuary in Bishopsteignton, Devon, offering stunning views. The property includes multiple lodges, suggesting a substantial investment in recent upgrades or construction. The images showcase modern lodging units with well-appointed interiors, a restaurant with a rustic-chic design, and extensive vineyard grounds. The location’s proximity to Teignmouth provides train links, while Bishopsteignton School is within walking distance. The overall impression is of a well-maintained, established business with strong potential for continued success. The lack of precise square footage for the main buildings and absence of financial performance data prevents a more definitive valuation. The significant landholding, comprised primarily of the vineyard, is a substantial asset. A comprehensive due diligence process is essential before purchasing, encompassing a thorough review of the business financials and any potential legal issues. The absence of a detailed plot size and lack of information concerning property taxes, business licenses, and ongoing maintenance costs must be carefully considered.
Therefore, we give this property 7 / 10. *Disclaimer: This is our option and does constitute a recommendation or financial advice. Do your own research. *
- Price
- 7
- Condition
- 8
- Location
- 7
- Land
- 9
- Bedrooms
- 16
- Bathrooms
- 8
- Sqft (est)
- 453.16
The heatmap indicates the level of crime in the area. The color of the heatmap indicates the crime severity and recency.
Metrics Year-on-Year
- Average area value
- 305,488.00 £Decreased by 9.52 %
- Est sale value
- 159,512.32 £Increased by 33.84 %
- Average area rental value
- 1,004.00 £/moDecreased by 1.08 %
- Est letting value
- 453.16 £/mo
- Est rental Yield
- 3.94 %Increased by 9.14 %
- Crime Rate
- 17.00 %Unchanged by 0.00 %
Agent Activity
Stags created the listing.
Nearby Schools
| Name | Type | Ofsted | Distance |
|---|---|---|---|
| Bishopsteignton School | Community School | Good | 1.36 KM |
| Teignmouth Community School, Mill Lane | Academy Converter | Good | 2.25 KM |
| Our Lady And St Patrick'S Roman Catholic Primary School | Academy Sponsor Led | Good | 2.76 KM |
| Dawlish Children'S Centre | Children's Centre | 2.77 KM | |
| Teignmouth Children'S Centre | Children's Centre | 2.77 KM |
Images
Nearby Streets
| Name | Average Price | Average Sqft | Distance |
|---|---|---|---|
| The Orchard | £ 435,000 | 0 | 0.00 KM |
| West Street | £ 0 | 0 | 0.00 KM |
| The Haven | £ 0 | 0 | 0.00 KM |
Nearby Transport
| Name | NLC | TLC | Distance |
|---|---|---|---|
| Teignmouth | 3430 | TGM | 4.54 KM |
| Newton Abbot | 3426 | NTA | 7.72 KM |
| Dawlish | 3408 | DWL | 8.21 KM |
| Torre | 3432 | TRR | 9.35 KM |
Nearby Listings
| Address | Price | Type | Score | Distance |
|---|---|---|---|---|
| Teign Estuary | £ 1,500,000 | BUY | 7 / 10 | 0.00 KM |
| Whidborne Mews, Ash Hill, Bishopsteignton, Teignmouth, TQ14 | £ 2,000,000 | BUY | 7 / 10 | 0.00 KM |
| Ash Hill, Bishopsteignton, TQ14 | £ 675,000 | BUY | Unknown | 0.08 KM |
| Whidborne Mews, Ash Hill, Bishopsteignton, Teignmouth, TQ14 | £ 325,000 | BUY | 6 / 10 | 0.09 KM |
| Coombe Way, Bishopsteignton, Teignmouth | £ 825,000 | BUY | Unknown | 0.10 KM |
Nearby Properties
| Address | Price | Distance |
|---|---|---|
| Whidborne Manor | £ 645,000 | 0.15 KM |
| Summerhill | £ 250,000 | 0.32 KM |
| Fairview | £ 107,000 | 0.32 KM |
| Haldon View | £ 310,000 | 0.32 KM |
| Withy Cottage | £ 475,000 | 0.32 KM |