Carling Jones says ..
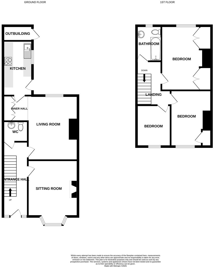
Beautifully presented three bedroom stone terrace located in the popular village of Earby. With two large reception rooms, three bedrooms and a rear yard, this property is perfect for a first time buyer or young family.
Property Oracle says ..
This three-bedroom terraced house is located on School Lane in Earby, Lancashire. The property benefits from a convenient location, with nearby primary schools and train stations. While the images suggest the property is in good condition and has been recently updated, the lack of plot size information prevents a complete assessment of the land. Compared to similar properties in the area, the list price of £185,000 appears reasonable, although further information on the property’s specific features and condition would be beneficial for a more precise evaluation.
Therefore, we give this property 6 / 10. *Disclaimer: This is our option and does constitute a recommendation or financial advice. Do your own research. *
- Price
- 7
- Condition
- 8
- Location
- 7
- Land
- 3
- Bedrooms
- 3
- Bathrooms
- 1
- Sqft (est)
- 1,040.00
The heatmap indicates the level of crime in the area. The color of the heatmap indicates the crime severity and recency.
Metrics Year-on-Year
- Average area value
- 263,117.00 £Decreased by 2.20 %
- Est sale value
- 313,040.00 £Decreased by 2.90 %
- Average area rental value
- 939.00 £/moIncreased by 34.33 %
- Est letting value
- 1,040.00 £/mo
- Est rental Yield
- 4.28 %Increased by 37.18 %
- Crime Rate
- 52.00 %Unchanged by 0.00 %
Agent Activity
Carling Jones created the listing.
Nearby Schools
| Name | Type | Ofsted | Distance |
|---|---|---|---|
| Earby Springfield Primary School | Community School | Good | 1.03 KM |
| Thornton In Craven Community Primary School | Community School | Good | 1.76 KM |
| Kelbrook Primary School | Community School | Good | 2.54 KM |
| Salterforth Primary School | Community School | Good | 3.06 KM |
| Coates Lane Primary School | Community School | Good | 3.39 KM |
Images
Nearby Streets
| Name | Average Price | Average Sqft | Distance |
|---|---|---|---|
| Highfield Road | £ 166,908 | 0 | 0.00 KM |
| School Lane | £ 194,975 | 0 | 0.00 KM |
| Albion Street | £ 197,475 | 0 | 0.00 KM |
| Valley Road | £ 139,950 | 0 | 0.00 KM |
| Victoria Road | £ 189,950 | 0 | 0.00 KM |
Nearby Transport
| Name | NLC | TLC | Distance |
|---|---|---|---|
| Gargrave | 2654 | GGV | 7.97 KM |
| Colne | 2562 | CNE | 8.20 KM |
Nearby Listings
| Address | Price | Type | Score | Distance |
|---|---|---|---|---|
| School Lane, Earby | £ 185,000 | BUY | 6 / 10 | 0.00 KM |
| School Lane, Earby | £ 199,950 | BUY | 7 / 10 | 0.03 KM |
| Lincoln Road, Earby, BB18 | £ 162,500 | BUY | 5 / 10 | 0.03 KM |
| Lincoln Road, Earby, BB18 | £ 115,000 | BUY | 5 / 10 | 0.03 KM |
| Albion Street, Earby | £ 119,950 | BUY | 6 / 10 | 0.11 KM |
Nearby Properties
| Address | Price | Distance |
|---|---|---|
| 18 School Lane | £ 170,000 | 0.03 KM |
| 33 School Lane | £ 109,000 | 0.03 KM |
| 24 School Lane | £ 240,000 | 0.03 KM |
| 15 Lincoln Road | £ 66,000 | 0.04 KM |
| 3 Lincoln Road | £ 89,000 | 0.04 KM |