NE
Piano Lane, Carysfort Road, London
By Next Move
£ 750,000
Reviews
3 out of 5 stars
Next Move says ..
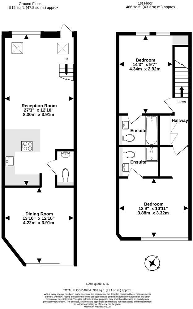
Stylish modern two bedroom duplex apartment with dedicated parking space, 24 hour concierge and contemporary architecture. Bright and spacious accommodation in excess of 950 sq ft is set on the ground and first floor of this popular gated mews development. This superb residence boasts a wonde...
Property Oracle says ..
Therefore, we give this property 6 / 10. *Disclaimer: This is our option and does constitute a recommendation or financial advice. Do your own research. *
- Price
- 6
- Condition
- 9
- Location
- 8
- Land
- 3
- Bedrooms
- 2
- Bathrooms
- 2
- Sqft (est)
- 801.80
The heatmap indicates the level of crime in the area. The color of the heatmap indicates the crime severity and recency.
Metrics Year-on-Year
- Average area value
- 920,000.00 £Increased by 33.45 %
- Est sale value
- 729,638.00 £Increased by 8.98 %
- Average area rental value
- 2,550.00 £/moIncreased by 2.12 %
- Est letting value
- 1,603.60 £/moDecreased by 33.33 %
- Est rental Yield
- 3.33 %Decreased by 23.45 %
- Crime Rate
- 6.00 %Unchanged by 0.00 %
from 689,400.00 £
from 669,503.00 £
from 2,497.00 £/mo
from 2,405.40 £/mo
from 4.35 %
from 6.00 %
Agent Activity
Next Move created the listing.
Nearby Schools
| Name | Type | Ofsted | Distance |
|---|---|---|---|
| Betty Layward Primary School | Community School | Good | 0.14 KM |
| Stoke Newington School And Sixth Form | Community School | Good | 0.14 KM |
| Grasmere Primary School | Community School | Good | 0.41 KM |
| St Mary'S Church Of England Primary School, Stoke Newington | Voluntary Aided School | Good | 0.69 KM |
| The Factory Children'S Centre | Children's Centre | 0.71 KM |
Images
Nearby Streets
| Name | Average Price | Average Sqft | Distance |
|---|---|---|---|
| Green Lanes | £ 0 | 0 | 0.00 KM |
| Collins Road | £ 425,000 | 0 | 0.00 KM |
| Park View | £ 0 | 0 | 0.00 KM |
| Scholars' Place | £ 825,000 | 0 | 0.00 KM |
| Riversdale Road | £ 887,857 | 0 | 0.00 KM |
Nearby Transport
| Name | NLC | TLC | Distance |
|---|---|---|---|
| Canonbury | 1441 | CNN | 1.23 KM |
| Dalston Kingsland | 1429 | DLK | 1.56 KM |
| Stoke Newington | 6934 | SKW | 1.66 KM |
| Dalston Junction | 1443 | DLJ | 1.77 KM |
| Rectory Road | 6967 | REC | 1.95 KM |
Nearby Listings
| Address | Price | Type | Score | Distance |
|---|---|---|---|---|
| Piano Lane, Carysfort Road, London | £ 750,000 | BUY | 6 / 10 | 0.00 KM |
| Piano Lane, Stoke Newington, N16 | £ 775,000 | BUY | 9 / 10 | 0.01 KM |
| Red Square, 3 Piano Lane, Carysfort Road, London, N16 | £ 750,000 | BUY | Unknown | 0.01 KM |
| Red Square, Stoke Newington, London, N16 | £ 700,000 | BUY | Unknown | 0.02 KM |
| Piano Lane, Stoke Newington, London, N16 | £ 700,000 | BUY | 6 / 10 | 0.02 KM |
Nearby Properties
| Address | Price | Distance |
|---|---|---|
| 42 Carysfort Road | £ 1,435,000 | 0.11 KM |
| 16 Carysfort Road | £ 615,000 | 0.11 KM |
| 32a Carysfort Road | £ 334,700 | 0.11 KM |
| 32b Carysfort Road | £ 228,700 | 0.11 KM |
| 30 Carysfort Road | £ 1,250,000 | 0.11 KM |