CH
Southport Road, Ormskirk, Lancashire, L39
By Churcher Estates
£ 170,000
Reviews
3 out of 5 stars
Churcher Estates says ..
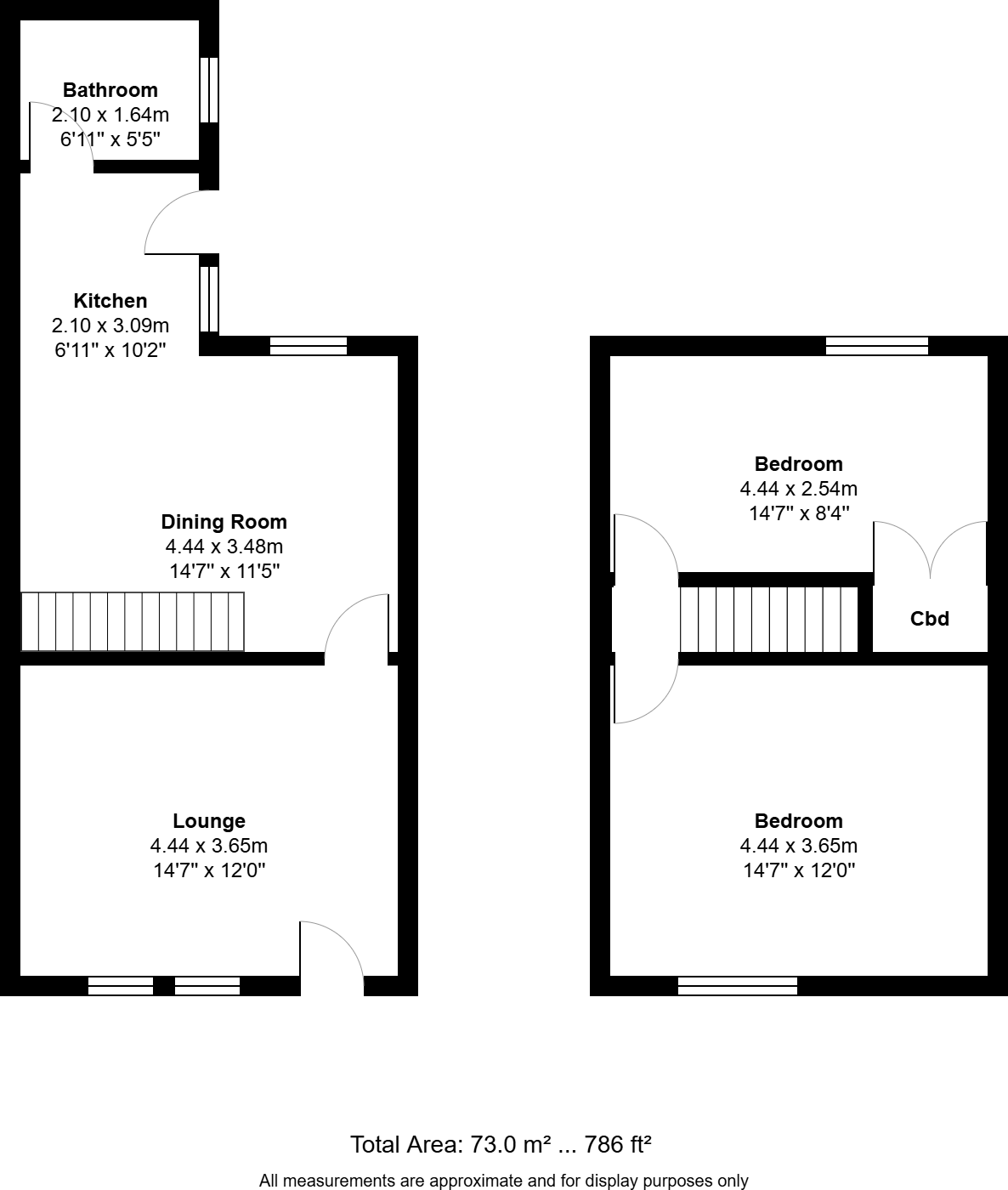
Churcher Estates are proud to present this well-proportioned two-bedroom end terraced property, ideally positioned in the heart of Ormskirk. This superb home is just a short drive from Ormskirk Railway Station, providing direct links into Liverpool City Centre and beyond. Ormskirk town centre-with i
Property Oracle says ..
Therefore, we give this property 6 / 10. *Disclaimer: This is our option and does constitute a recommendation or financial advice. Do your own research. *
- Price
- 8
- Condition
- 6
- Location
- 7
- Land
- 3
- Bedrooms
- 2
- Bathrooms
- 1
- Sqft (est)
- 785.77
The heatmap indicates the level of crime in the area. The color of the heatmap indicates the crime severity and recency.
Metrics Year-on-Year
- Average area value
- 307,500.00 £Increased by 15.00 %
- Est sale value
- 214,515.21 £Decreased by 8.39 %
- Average area rental value
- 831.00 £/moIncreased by 55.33 %
- Est letting value
- 0.00 £/mo
- Est rental Yield
- 3.24 %Increased by 35.00 %
- Crime Rate
- 7.00 %Unchanged by 0.00 %
from 267,396.00 £
from 234,159.46 £
from 535.00 £/mo
from 0.00 £/mo
from 2.40 %
from 7.00 %
Agent Activity
Churcher Estates created the listing.
Nearby Schools
| Name | Type | Ofsted | Distance |
|---|---|---|---|
| Turning Point Academy | Other Independent School | Good | 0.43 KM |
| Moorgate Nursery School & Children'S Centre | Children's Centre | 0.70 KM | |
| Moorgate Nursery School | Local Authority Nursery School | Outstanding | 0.70 KM |
| Ormskirk St Anne'S Catholic Primary School | Voluntary Aided School | Good | 0.72 KM |
| Ormskirk West End School | Community School | Good | 0.73 KM |
Images
Nearby Streets
| Name | Average Price | Average Sqft | Distance |
|---|---|---|---|
| Churchfields | £ 350,000 | 0 | 0.00 KM |
| Green Lane Avenue | £ 0 | 0 | 0.00 KM |
| Church Street | £ 0 | 0 | 0.00 KM |
| Market Cross | £ 0 | 0 | 0.00 KM |
| Leyland Way | £ 0 | 0 | 0.00 KM |
Nearby Transport
| Name | NLC | TLC | Distance |
|---|---|---|---|
| Ormskirk | 2281 | OMS | 0.90 KM |
| Aughton Park | 2215 | AUG | 1.94 KM |
| Town Green | 2283 | TWN | 3.52 KM |
| New Lane | 2358 | NLN | 5.15 KM |
| Burscough Junction | 2280 | BCJ | 6.15 KM |
Nearby Listings
| Address | Price | Type | Score | Distance |
|---|---|---|---|---|
| Southport Road, Ormskirk, Lancashire, L39 | £ 170,000 | BUY | 6 / 10 | 0.00 KM |
| Southport Road, Ormskirk, L39 | £ 550,000 | BUY | Unknown | 0.01 KM |
| Southport Road, Ormskirk, L39 | £ 475,000 | BUY | 8 / 10 | 0.03 KM |
| Southport Road, Ormskirk, Lancashire, L39 | £ 250,000 | BUY | 5 / 10 | 0.06 KM |
| Southport Road, Ormskirk, Lancashire, L39 1LN | £ 220,000 | BUY | Unknown | 0.06 KM |
Nearby Properties
| Address | Price | Distance |
|---|---|---|
| 70 Southport Road | £ 317,500 | 0.00 KM |
| 34 Southport Road | £ 135,000 | 0.00 KM |
| 32 Southport Road | £ 139,000 | 0.00 KM |
| 50 Southport Road | £ 189,950 | 0.00 KM |
| 28 Southport Road | £ 114,000 | 0.00 KM |