FO
Claremont Road, Forest Gate, London, E7
By Foxtons
£ 1,600,000
Reviews
3 out of 5 stars
Foxtons says ..
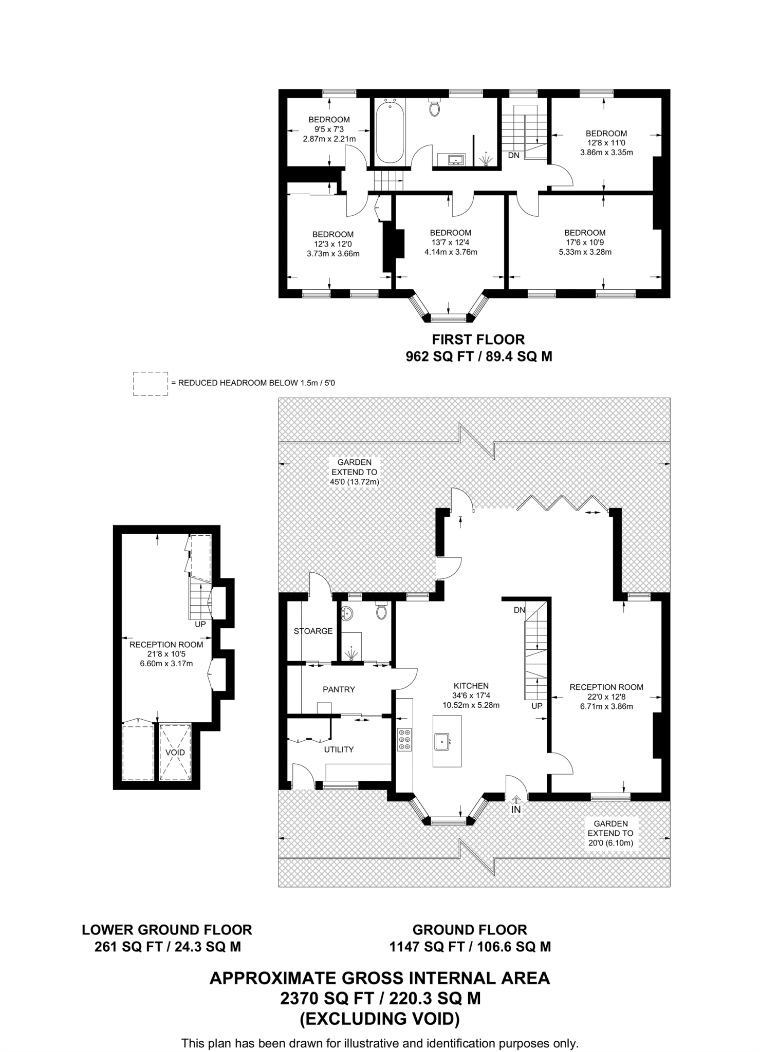
This outstanding 5 bedroom freehold house offers incredible open plan living and entertaining space with exceptionally high quality fixtures and fittings with beautifully maintained gardens.
Property Oracle says ..
Therefore, we give this property 6 / 10. *Disclaimer: This is our option and does constitute a recommendation or financial advice. Do your own research. *
- Price
- 3
- Condition
- 9
- Location
- 8
- Land
- 7
- Bedrooms
- 5
- Bathrooms
- 2
- Sqft (est)
- 1,807.05
The heatmap indicates the level of crime in the area. The color of the heatmap indicates the crime severity and recency.
Metrics Year-on-Year
- Average area value
- 534,167.00 £Increased by 13.39 %
- Est sale value
- 1,534,185.45 £Increased by 54.93 %
- Average area rental value
- 1,996.00 £/moDecreased by 1.19 %
- Est letting value
- 5,421.15 £/moIncreased by 50.00 %
- Est rental Yield
- 4.48 %Decreased by 13.01 %
- Crime Rate
- 3.00 %Unchanged by 0.00 %
from 471,088.00 £
from 990,263.40 £
from 2,020.00 £/mo
from 3,614.10 £/mo
from 5.15 %
from 3.00 %
Agent Activity
Foxtons created the listing.
Nearby Schools
| Name | Type | Ofsted | Distance |
|---|---|---|---|
| Zakariya Primary School | Other Independent School | Requires improvement | 0.18 KM |
| Sandringham Primary School | Community School | Outstanding | 0.34 KM |
| Woodgrange Infant School | Community School | Good | 0.50 KM |
| Godwin Junior School | Community School | Good | 0.50 KM |
| Kay Rowe Children'S Centre | Children's Centre | 0.52 KM |
Images
Nearby Streets
| Name | Average Price | Average Sqft | Distance |
|---|---|---|---|
| Richmond Road | £ 297,500 | 0 | 0.00 KM |
| Balmoral Road | £ 0 | 0 | 0.00 KM |
| Balmoral Road | £ 220,000 | 0 | 0.00 KM |
| Westbury Road | £ 253,333 | 0 | 0.00 KM |
| Post Office Approach | £ 0 | 0 | 0.00 KM |
Nearby Transport
| Name | NLC | TLC | Distance |
|---|---|---|---|
| Wanstead Park | 7408 | WNP | 0.79 KM |
| Forest Gate | 6876 | FOG | 0.93 KM |
| Woodgrange Park | 7467 | WGR | 1.29 KM |
| Manor Park | 6883 | MNP | 1.56 KM |
| Maryland | 6970 | MYL | 2.99 KM |
Nearby Listings
| Address | Price | Type | Score | Distance |
|---|---|---|---|---|
| Claremont Road, Forest Gate, London, E7 | £ 1,600,000 | BUY | 6 / 10 | 0.00 KM |
| Windsor Road, Forest Gate, London, E7 | £ 1,500,000 | BUY | Unknown | 0.07 KM |
| Windsor Road, Forest Gate, London, E7 | £ 1,600,000 | BUY | Unknown | 0.08 KM |
| Windsor Road, Forest Gate, London, E7 | £ 1,600,000 | BUY | 5 / 10 | 0.08 KM |
| Osborne Road, Forest Gate, London, E7 | £ 1,350,000 | BUY | Unknown | 0.12 KM |
Nearby Properties
| Address | Price | Distance |
|---|---|---|
| 93 Claremont Road | £ 275,000 | 0.03 KM |
| 61c Claremont Road | £ 183,000 | 0.03 KM |
| 65 Claremont Road | £ 845,000 | 0.03 KM |
| 69 Claremont Road | £ 925,000 | 0.03 KM |
| 77 Claremont Road | £ 550,000 | 0.03 KM |