Chanctonbury Way, Woodside Park
By Real Estates
£ 995,000
Reviews
3 out of 5 stars
Real Estates says ..
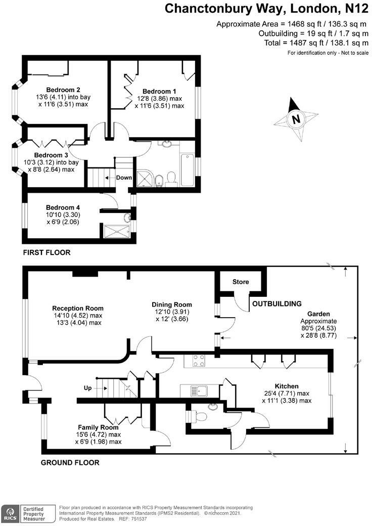
* CHAIN FREE * Real Estates are pleased to offer this 4 BEDROOM SEMI-DETACHED family home located on the doorstep of Woodside Park's local amenities, including the Northern Line Tube Station, shops and cafes of Sussex Ring, and Riverside Walk park areas. This property has already been e...
Property Oracle says ..
This 4-bedroom semi-detached house located on Chanctonbury Way, Woodside Park, Barnet, is presented as a family home. The property benefits from a convenient location close to Woodside Park underground station, ensuring good connectivity to central London. The surrounding area has local amenities such as shops and cafes. Several well-regarded schools are within a reasonable distance, making it an attractive option for families. The interior of the property is presented as clean and well-maintained, though the photos suggest the property could benefit from some renovations to modernize the kitchen and bathrooms, and overall modernize the decor. The property is a two story house with a garden which looks to be sizeable; although the provided plot size is listed at 0.00 sqft this cannot be confirmed from the provided data. The list price of £995,000 appears to be in line with comparable properties within the area, taking into account the need for potential modernization. Potential buyers should be aware of the need for some renovations and complete their own due diligence to gain a more precise plot size to help with their assessment of the property.
Therefore, we give this property 6 / 10. *Disclaimer: This is our option and does constitute a recommendation or financial advice. Do your own research. *
- Price
- 7
- Condition
- 6
- Location
- 7
- Land
- 4
- Bedrooms
- 4
- Bathrooms
- 2
- Sqft (est)
- 1,486.50
The heatmap indicates the level of crime in the area. The color of the heatmap indicates the crime severity and recency.
Metrics Year-on-Year
- Average area value
- 1,077,389.00 £Increased by 1.83 %
- Est sale value
- 969,198.00 £Increased by 8.49 %
- Average area rental value
- 2,772.00 £/moIncreased by 5.36 %
- Est letting value
- 1,486.50 £/moUnchanged by 0.00 %
- Est rental Yield
- 3.09 %Increased by 3.69 %
- Crime Rate
- 3.00 %Unchanged by 0.00 %
Agent Activity
Real Estates created the listing.
Nearby Schools
| Name | Type | Ofsted | Distance |
|---|---|---|---|
| The Holmewood School | Other Independent Special School | Good | 0.66 KM |
| Moss Hall Nursery School | Local Authority Nursery School | Outstanding | 0.66 KM |
| Moss Hall Junior School | Community School | Requires improvement | 0.78 KM |
| Moss Hall Infant School | Community School | Outstanding | 0.78 KM |
| Woodridge Primary School | Community School | Good | 1.02 KM |
Images
Nearby Streets
| Name | Average Price | Average Sqft | Distance |
|---|---|---|---|
| Station Approach | £ 0 | 0 | 0.00 KM |
| Woodside Court | £ 850,000 | 0 | 0.00 KM |
| Finchley Court | £ 0 | 0 | 0.00 KM |
| Adams Close | £ 550,000 | 0 | 0.00 KM |
| Coleridge Road | £ 0 | 0 | 0.00 KM |
Nearby Transport
| Name | NLC | TLC | Distance |
|---|---|---|---|
| Oakleigh Park | 6020 | OKL | 3.61 KM |
| New Barnet | 6018 | NBA | 4.14 KM |
| New Southgate | 6019 | NSG | 5.20 KM |
| Hadley Wood | 6075 | HDW | 6.10 KM |
| Mill Hill Broadway | 1527 | MIL | 6.55 KM |
Nearby Listings
| Address | Price | Type | Score | Distance |
|---|---|---|---|---|
| Chanctonbury Way, Woodside Park | £ 995,000 | BUY | 6 / 10 | 0.00 KM |
| Chanctonbury Way, North Finchley, London, N12 | £ 900,000 | BUY | Unknown | 0.10 KM |
| Chanctonbury Way, London | £ 1,100,000 | BUY | 7 / 10 | 0.10 KM |
| Westbury Road, Woodside Park, London, N12 | £ 2,395,000 | BUY | 7 / 10 | 0.17 KM |
| Chanctonbury Way, Woodside Park | £ 1,150,000 | BUY | Unknown | 0.19 KM |
Nearby Properties
| Address | Price | Distance |
|---|---|---|
| 11 Sussex Ring | £ 325,000 | 0.10 KM |
| 10 Sussex Ring | £ 845,000 | 0.10 KM |
| 48 Chanctonbury Way | £ 700,000 | 0.10 KM |
| 10 Chanctonbury Way | £ 910,000 | 0.10 KM |
| 6 Chanctonbury Way | £ 742,500 | 0.10 KM |