Woodrow Drive, Wokingham, RG40
By Property Assistant UK Ltd
£ 550,000
Reviews
3 out of 5 stars
Property Assistant UK Ltd says ..
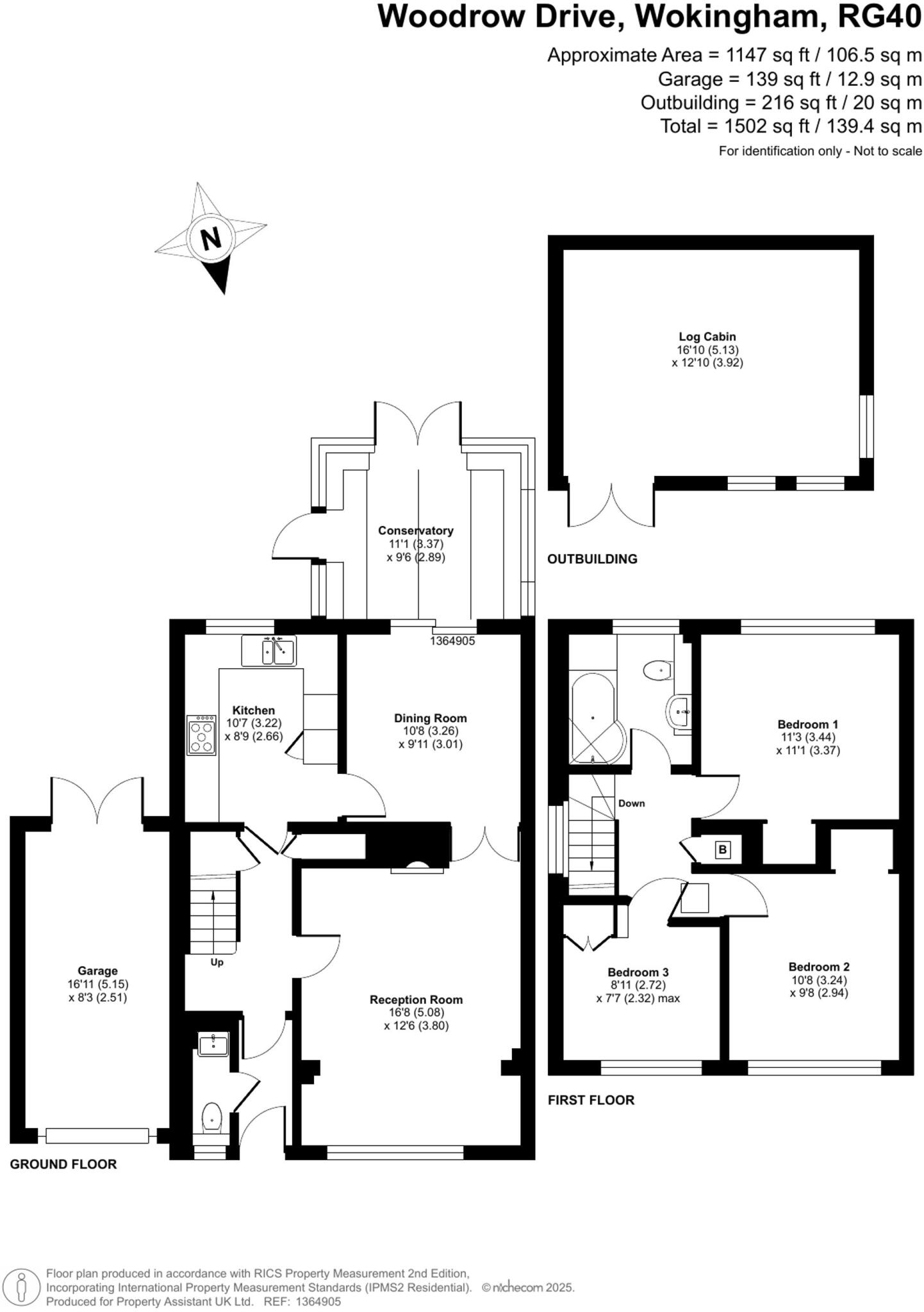
This extended family home sits proudly in one of Wokingham’s most desirable family-friendly neighbourhoods with log cabin ideal for home office or hobby room.
Property Oracle says ..
This is a detached property located on Woodrow Drive in Wokingham. The house has three bedrooms and one bathroom. The images suggest the property is in generally good condition, with a modern kitchen and tidy interior. The property benefits from a garden with a notable outbuilding, which could be used as a home office or additional living space. The location is convenient, with nearby schools and transportation links. The asking price of £550,000 seems reasonable considering the location and features of the property.
Therefore, we give this property 7 / 10. *Disclaimer: This is our option and does constitute a recommendation or financial advice. Do your own research. *
- Price
- 7
- Condition
- 7
- Location
- 7
- Land
- 8
- Bedrooms
- 3
- Bathrooms
- 1
The heatmap indicates the level of crime in the area. The color of the heatmap indicates the crime severity and recency.
Metrics Year-on-Year
- Average area value
- 561,923.00 £Increased by 17.28 %
- Average area rental value
- 1,746.00 £/moDecreased by 3.54 %
- Est rental Yield
- 3.73 %Decreased by 17.66 %
- Crime Rate
- 8.00 %Unchanged by 0.00 %
Agent Activity
Property Assistant UK Ltd created the listing.
Nearby Schools
| Name | Type | Ofsted | Distance |
|---|---|---|---|
| St Crispin'S School | Academy Converter | 0.61 KM | |
| Westende Junior School | Academy Converter | 0.82 KM | |
| Brambles Children'S Centre | Children's Centre | 0.84 KM | |
| Keep Hatch Primary School | Academy Converter | 0.87 KM | |
| All Saints Cofe (Aided) Primary School | Voluntary Aided School | Good | 0.90 KM |
Images
Nearby Streets
| Name | Average Price | Average Sqft | Distance |
|---|---|---|---|
| Binfield Road | £ 0 | 0 | 0.00 KM |
| Tudor Close | £ 0 | 0 | 0.00 KM |
| Sundew Close | £ 0 | 0 | 0.00 KM |
| Baker Crescent | £ 628,333 | 0 | 0.00 KM |
| Southlands Road | £ 0 | 0 | 0.00 KM |
Nearby Transport
| Name | NLC | TLC | Distance |
|---|---|---|---|
| Wokingham | 5696 | WKM | 2.82 KM |
| Crowthorne | 5628 | CRN | 5.05 KM |
| Winnersh | 5697 | WNS | 6.92 KM |
| Bracknell | 5693 | BCE | 7.22 KM |
| Sandhurst (Berks) | 5646 | SND | 7.37 KM |
Nearby Listings
| Address | Price | Type | Score | Distance |
|---|---|---|---|---|
| Woodrow Drive, Wokingham, RG40 | £ 550,000 | BUY | 7 / 10 | 0.00 KM |
| Woodrow Drive, Wokingham | £ 550,000 | BUY | 7 / 10 | 0.07 KM |
| Harmar Close, Wokingham | £ 536,000 | BUY | 6 / 10 | 0.09 KM |
| Bean Oak Road, Wokingham, RG40 1RJ | £ 200,000 | BUY | Unknown | 0.12 KM |
| Secret Address, Wokingham, RG40 | £ 800,000 | BUY | 6 / 10 | 0.16 KM |
Nearby Properties
| Address | Price | Distance |
|---|---|---|
| 66 Woodrow Drive | £ 310,000 | 0.03 KM |
| 82 Woodrow Drive | £ 635,000 | 0.03 KM |
| 70 Woodrow Drive | £ 360,000 | 0.03 KM |
| 42 Woodrow Drive | £ 365,000 | 0.03 KM |
| 60 Woodrow Drive | £ 119,950 | 0.03 KM |