Briants Piece, Hermitage, Thatcham, RG18
RI

Briants Piece, Hermitage, Thatcham, RG18

By Richard James

£ 750,000

Reviews

4 out of 5 stars

Richard James says ..

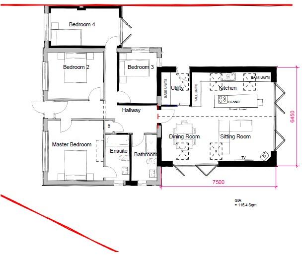
GUIDE PRICE: £750,000 - £785,000 - NO ONWARD CHAIN! *Open House: Saturday 1st March - By Appointment Only* Nestled in a peaceful cul-de-sac within the sought-after village of Hermitage, this beautifully renovated and extended four-bedroom, two-bathroom bungalow is a true gem. Set on an impres...

Property Oracle says ..

Briants Piece is located in Hermitage, a village in West Berkshire. The property is a newly built, modern bungalow with a contemporary design. Based on the images, the property appears to be in excellent condition, with high-quality fixtures and fittings throughout. The kitchen is modern and spacious, and the bathrooms are well-appointed. The property also benefits from a good-sized garden, which is visible in the provided images. The list price of £750,000 is slightly below the average price for the area (£784,350), but the average property size is significantly larger (1,778 sqft vs 1,242 sqft). Considering the property’s modern condition, the relatively small plot size, and its location in a desirable village like Hermitage, the price seems reasonable. Nearby comparable properties support this assessment. While some properties in Hermitage are listed at higher prices, others are listed at similar or lower prices, suggesting the £750,000 asking price is within the range of market value for properties of this size and type in the area. The proximity to good schools and transport links in Thatcham further enhances its desirability.

Therefore, we give this property 8 / 10. *Disclaimer: This is our option and does constitute a recommendation or financial advice. Do your own research. *

Price
8
Condition
10
Location
9
Land
7
Bedrooms
4
Bathrooms
2
Sqft (est)
1,242.16

The heatmap indicates the level of crime in the area. The color of the heatmap indicates the crime severity and recency.

Metrics Year-on-Year

Average area value
823,568.00 £
Increased by 14.19 %
from 721,203.00 £
Est sale value
637,228.08 £
Decreased by 32.59 %
from 945,283.76 £
Average area rental value
2,482.00 £/mo
Increased by 57.59 %
from 1,575.00 £/mo
Est letting value
1,242.16 £/mo
Unchanged by 0.00 %
from 1,242.16 £/mo
Est rental Yield
3.62 %
Increased by 38.17 %
from 2.62 %
Crime Rate
5.00 %
Unchanged by 0.00 %
from 5.00 %

Agent Activity

  • Richard James created the listing.

Nearby Schools

NameTypeOfstedDistance
Hermitage Primary SchoolCommunity SchoolGood0.82 KM
Downe HouseOther Independent School1.90 KM
Cold Ash St Mark'S Ce Primary SchoolVoluntary Controlled SchoolGood2.93 KM
Curridge Primary SchoolCommunity SchoolGood3.15 KM
Priors Court SchoolOther Independent Special SchoolOutstanding3.24 KM

Images

image00002 image00007 image00006 image00012 image00003 image00008 image00013 image00009 image00011 edit image00016 image00004 rj010170vspdn1aaa image00002 rj010171vspbd1aaa image00016 lifestyle image00006 image00012 image00003 rj010170vspbd1abb image00008 rj010170vspst1acc image00009 treetops image00007 edit image00004

Nearby Streets

NameAverage PriceAverage SqftDistance
Ridgeway Close £ 000.00 KM
Doctors Lane £ 1,475,00000.00 KM
Blake Road £ 000.00 KM
Crabtree Lane £ 000.00 KM
Long Lane £ 675,00000.00 KM

Nearby Transport

NameNLCTLCDistance
Thatcham3152THA7.26 KM
Newbury Racecourse3071NRC7.40 KM
Newbury3074NBY8.52 KM

Nearby Listings

AddressPriceTypeScoreDistance
Briants Piece, Hermitage, Thatcham, RG18 £ 750,000BUY8 / 100.00 KM
Briants Piece, Hermitage, Thatcham, RG18 £ 502,500BUY7 / 100.01 KM
Briants Piece, Hermitage, Thatcham, Berkshire, RG18 £ 475,000BUY7 / 100.01 KM
Briants Piece, Hermitage, Thatcham, RG18 £ 475,000BUY7 / 100.02 KM
High Street, Hermitage, Thatcham, Berkshire, RG18 £ 725,000BUY7 / 100.10 KM

Nearby Properties

AddressPriceDistance
32 Briants Piece £ 435,0000.01 KM
3 Briants Piece £ 500,0000.01 KM
21 Briants Piece £ 397,0000.01 KM
24 Briants Piece £ 335,0000.01 KM
20 Briants Piece £ 247,0000.02 KM