Northwood says ..
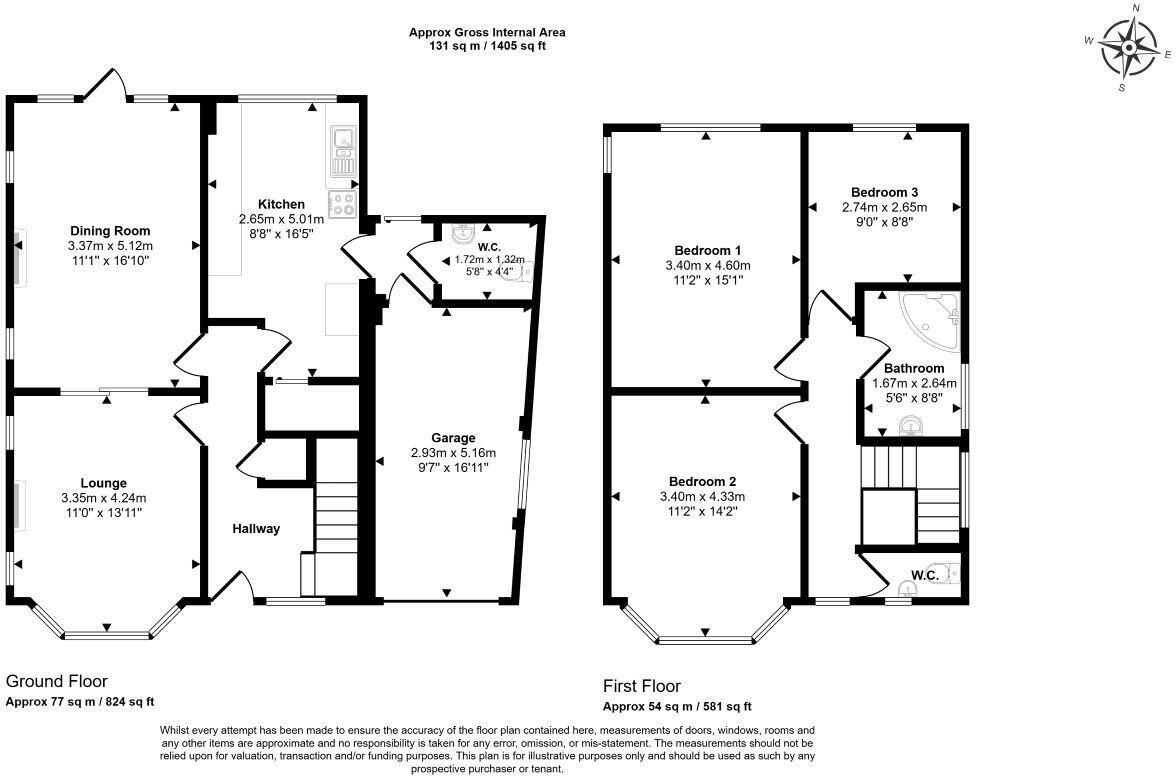
Three-bed detached in Sale (M33 3QZ): two receptions, integral garage, front/rear garden, ripe for update.
Property Oracle says ..
Therefore, we give this property 5 / 10. *Disclaimer: This is our option and does constitute a recommendation or financial advice. Do your own research. *
- Price
- 4
- Condition
- 3
- Location
- 8
- Land
- 6
- Bedrooms
- 3
- Bathrooms
- 1
- Sqft (est)
- 1,121.45
The heatmap indicates the level of crime in the area. The color of the heatmap indicates the crime severity and recency.
Metrics Year-on-Year
- Average area value
- 380,332.00 £Increased by 1.15 %
- Est sale value
- 611,190.25 £Increased by 46.11 %
- Average area rental value
- 1,544.00 £/moUnchanged by 0.00 %
- Est letting value
- 2,242.90 £/moIncreased by 100.00 %
- Est rental Yield
- 4.87 %Decreased by 1.22 %
- Crime Rate
- 0.00 %
from 376,011.00 £
from 418,300.85 £
from 1,544.00 £/mo
from 1,121.45 £/mo
from 4.93 %
from 0.00 %
Agent Activity
Northwood created the listing.
Nearby Schools
| Name | Type | Ofsted | Distance |
|---|---|---|---|
| Brooklands Primary School | Community School | Good | 0.61 KM |
| Sale Grammar School | Academy Converter | 0.80 KM | |
| Heyes Lane Primary School | Community School | Good | 0.90 KM |
| St Joseph'S Catholic Primary School | Voluntary Aided School | Outstanding | 1.02 KM |
| Springfield Primary School | Community School | Outstanding | 1.21 KM |
Images
Nearby Streets
| Name | Average Price | Average Sqft | Distance |
|---|---|---|---|
| Westwood Drive | £ 650,000 | 0 | 0.00 KM |
| Cheswick Close | £ 0 | 0 | 0.00 KM |
| Philip Drive | £ 130,000 | 0 | 0.00 KM |
| Avondale Lodge | £ 232,500 | 0 | 0.00 KM |
| Homelaurel House | £ 57,500 | 0 | 0.00 KM |
Nearby Transport
| Name | NLC | TLC | Distance |
|---|---|---|---|
| Navigation Road | 2940 | NVR | 3.23 KM |
| Altrincham | 2806 | ALT | 4.08 KM |
| Humphrey Park | 2937 | HUP | 4.42 KM |
| Trafford Park | 2969 | TRA | 4.76 KM |
| Hale (Manchester) | 2845 | HAL | 4.86 KM |
Nearby Listings
| Address | Price | Type | Score | Distance |
|---|---|---|---|---|
| Westwood Drive, Sale, M33 | £ 550,000 | BUY | 5 / 10 | 0.00 KM |
| 5 Westwood Drive, Sale, Cheshire, M33 3QZ | £ 475,000 | BUY | Unknown | 0.04 KM |
| Brooklands Road, Sale | £ 900,000 | BUY | Unknown | 0.05 KM |
| Dorchester Court, Brooklands Road, Sale, Greater Manchester, M33 | £ 185,000 | BUY | 6 / 10 | 0.07 KM |
| Brooklands Road, Sale, Greater Manchester, M33 | £ 240,000 | BUY | 7 / 10 | 0.08 KM |
Nearby Properties
| Address | Price | Distance |
|---|---|---|
| 129 Brooklands Road | £ 431,000 | 0.08 KM |
| 139 Brooklands Road | £ 865,000 | 0.08 KM |
| 137 Brooklands Road | £ 430,000 | 0.08 KM |
| 131 Brooklands Road | £ 420,000 | 0.08 KM |
| 133 Brooklands Road | £ 595,000 | 0.08 KM |