Yopa says ..
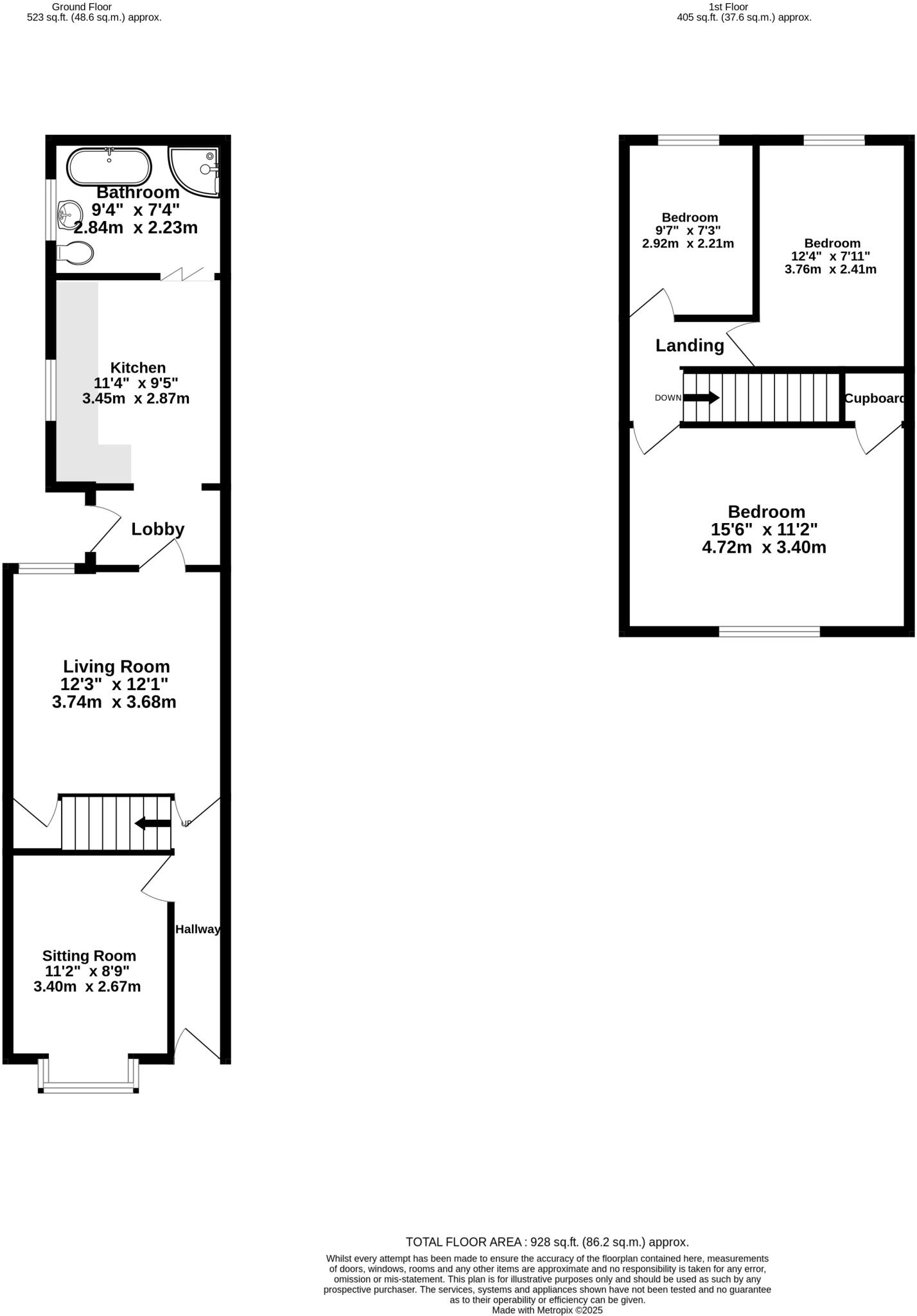
An attractive three bedroom terraced property situated in this popular area of Halesowen. The property is perfect for a couple or a family with plenty of space, three well proportioned bedrooms, and a private garden. Viewing highly recommended.
Property Oracle says ..
Therefore, we give this property 7 / 10. *Disclaimer: This is our option and does constitute a recommendation or financial advice. Do your own research. *
- Price
- 8
- Condition
- 7
- Location
- 7
- Land
- 8
- Bedrooms
- 3
- Bathrooms
- 1
- Sqft (est)
- 766.92
The heatmap indicates the level of crime in the area. The color of the heatmap indicates the crime severity and recency.
Metrics Year-on-Year
- Average area value
- 327,363.00 £Increased by 26.97 %
- Est sale value
- 294,497.28 £Increased by 70.67 %
- Average area rental value
- 1,112.00 £/moIncreased by 23.69 %
- Est letting value
- 766.92 £/mo
- Est rental Yield
- 4.08 %Decreased by 2.39 %
- Crime Rate
- 11.00 %Unchanged by 0.00 %
from 257,821.00 £
from 172,557.00 £
from 899.00 £/mo
from 0.00 £/mo
from 4.18 %
from 11.00 %
Agent Activity
Yopa created the listing.
Nearby Schools
| Name | Type | Ofsted | Distance |
|---|---|---|---|
| Olive Hill Children'S Centre | Children's Centre | 0.43 KM | |
| Olive Hill Primary Academy | Academy Converter | 0.52 KM | |
| Halesbury School | Foundation Special School | Good | 0.80 KM |
| Young Parents Sure Start Children'S Centre | Children's Centre | 0.95 KM | |
| Hurst Green Primary School | Community School | Good | 1.02 KM |
Images
Nearby Streets
| Name | Average Price | Average Sqft | Distance |
|---|---|---|---|
| St Loye's Close | £ 0 | 0 | 0.00 KM |
| Victoria Road | £ 100,000 | 0 | 0.00 KM |
| Vernon Close | £ 0 | 0 | 0.00 KM |
| Green Lane | £ 194,375 | 0 | 0.00 KM |
| Church Street | £ 180,000 | 0 | 0.00 KM |
Nearby Transport
| Name | NLC | TLC | Distance |
|---|---|---|---|
| Rowley Regis | 4606 | ROW | 0.95 KM |
| Old Hill | 4641 | OHL | 2.33 KM |
| Langley Green | 4607 | LGG | 4.27 KM |
| Sandwell And Dudley | 1149 | SAD | 5.04 KM |
| Cradley Heath | 4639 | CRA | 6.12 KM |
Nearby Listings
| Address | Price | Type | Score | Distance |
|---|---|---|---|---|
| Maple Road, Halesowen, B62 | £ 210,000 | BUY | 7 / 10 | 0.00 KM |
| Maple Road, Halesowen, B62 8JP | £ 220,000 | BUY | 7 / 10 | 0.06 KM |
| Maple Road, Halesowen, B62 8JP | £ 210,000 | BUY | 7 / 10 | 0.06 KM |
| HALESOWEN, Olive Hill Road | £ 450,000 | BUY | 7 / 10 | 0.09 KM |
| Olive Hill Road, Halesowen, B62 8JN | £ 210,000 | BUY | 7 / 10 | 0.09 KM |
Nearby Properties
| Address | Price | Distance |
|---|---|---|
| 19 Malt Mill Lane | £ 94,000 | 0.06 KM |
| 19 Maple Road | £ 155,200 | 0.06 KM |
| 37 Maple Road | £ 128,000 | 0.06 KM |
| 16 Maple Road | £ 37,500 | 0.06 KM |
| 27 Maple Road | £ 120,000 | 0.06 KM |