Glenroyd Avenue, Bradford, BD6
By Righthaus Properties
£ 145,000
Reviews
2 out of 5 stars
Righthaus Properties says ..
PUBLIC NOTICE: Righthaus Properties Ltd are now in receipt of an offer for the sum of £152,500 for 46 Glenroyd Avenue, Bradford BD6 1EX. Anyone wishing to place an offer on the property should contact Righthaus Estate Agents, 208 High Street, Wibsey, Bradford BD6 1QP, Tel: before exc...
Property Oracle says ..
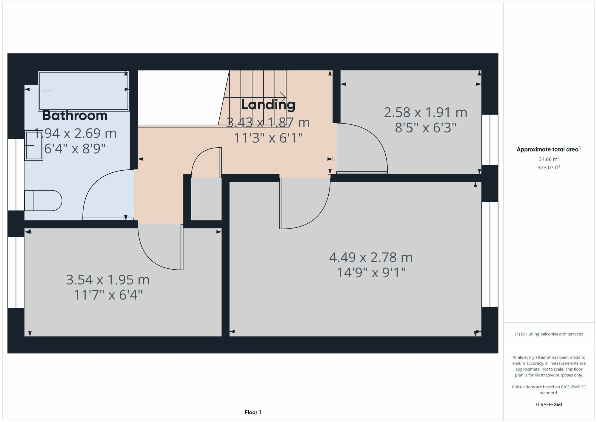
This three-bedroom, one-bathroom end-of-terrace house in Bradford, West Yorkshire is listed at £145,000. The property presents a mixed picture, showing some areas that are reasonably well-maintained alongside others requiring significant improvement. The location benefits from proximity to several well-regarded primary schools and train stations, suggesting convenient access to education and transportation. However, more specific information about local amenities and the overall neighborhood would provide a more comprehensive picture. The house itself presents a moderate level of condition; the interior images reveal a need for updating in the kitchen and potential plumbing repairs. Additionally, the garden requires attention and landscaping. While the property is habitable, prospective buyers should factor in refurbishment costs when considering the listed price. The size of the property (780.81 sqft) appears slightly smaller than average compared to the neighborhood but it is not unusual given the type of housing. Given the need for some updating and lack of precise square footage information for surrounding properties, the listed price appears relatively reasonable in light of comparable recent sales and offers on similar properties in the immediate vicinity, but not exceptionally well-priced. Buyers should conduct a thorough survey before purchasing to fully assess the necessary repairs and factor those costs into their offer.
Therefore, we give this property 5 / 10. *Disclaimer: This is our option and does constitute a recommendation or financial advice. Do your own research. *
- Price
- 7
- Condition
- 5
- Location
- 6
- Land
- 3
- Bedrooms
- 3
- Bathrooms
- 1
- Sqft (est)
- 780.81
The heatmap indicates the level of crime in the area. The color of the heatmap indicates the crime severity and recency.
Metrics Year-on-Year
- Average area value
- 856,250.00 £Increased by 15.74 %
- Est sale value
- 554,375.10 £Increased by 21.37 %
- Average area rental value
- 2,000.00 £/moDecreased by 15.25 %
- Est letting value
- 780.81 £/moUnchanged by 0.00 %
- Est rental Yield
- 2.80 %Decreased by 26.89 %
- Crime Rate
- 5.00 %Unchanged by 0.00 %
Agent Activity
Righthaus Properties created the listing.
Nearby Schools
| Name | Type | Ofsted | Distance |
|---|---|---|---|
| Low Moor Cofe Primary School | Voluntary Controlled School | Outstanding | 0.75 KM |
| Hill Top Cofe Primary School | Foundation School | Good | 1.19 KM |
| Bankfoot Primary School | Community School | Outstanding | 1.22 KM |
| St Matthew'S Cofe Primary School And Nursery | Voluntary Controlled School | Good | 1.25 KM |
| Woodroyd Children'S Centre | Children's Centre | 1.54 KM |
Images
Nearby Streets
| Name | Average Price | Average Sqft | Distance |
|---|---|---|---|
| Huddersfield Road | £ 0 | 0 | 0.00 KM |
| Sutcliffe Terrace | £ 0 | 0 | 0.00 KM |
| Chapel House Road | £ 170,000 | 0 | 0.00 KM |
| Dean Road | £ 0 | 0 | 0.00 KM |
| Park House Close | £ 0 | 0 | 0.00 KM |
Nearby Transport
| Name | NLC | TLC | Distance |
|---|---|---|---|
| Low Moor | 8416 | LMR | 1.58 KM |
| Bradford Interchange | 8345 | BDI | 3.48 KM |
| Bradford Forster Square | 8346 | BDQ | 3.99 KM |
| Frizinghall | 8556 | FZH | 6.56 KM |
| Brighouse | 8514 | BGH | 7.38 KM |
Nearby Listings
| Address | Price | Type | Score | Distance |
|---|---|---|---|---|
| Cleckheaton Road, Odsal, Bradford | £ 187,500 | BUY | 5 / 10 | 0.04 KM |
| Cleckheaton Road, Odsal, Bradford | £ 129,950 | BUY | 5 / 10 | 0.06 KM |
| Glenroyd Avenue, Odsal BD6 | £ 99,950 | BUY | 5 / 10 | 0.07 KM |
| 41 Glenroyd Avenue, Odsal, Bradford, West Yorkshire, BD6 1EX | £ 37,500 | BUY | 6 / 10 | 0.09 KM |
| Huddersfield Road, Bradford, BD6 1BA | £ 220,000 | BUY | 6 / 10 | 0.10 KM |
Nearby Properties
| Address | Price | Distance |
|---|---|---|
| 66 Cleckheaton Road | £ 155,000 | 0.03 KM |
| 20 Cleckheaton Road | £ 120,000 | 0.03 KM |
| 6 Cleckheaton Road | £ 122,000 | 0.03 KM |
| 56 Cleckheaton Road | £ 115,000 | 0.03 KM |
| 12 Cleckheaton Road | £ 41,950 | 0.03 KM |