LA
Sullivan Close, Dartford
By Land Estates Agent
£ 825,000
Reviews
3 out of 5 stars
Land Estates Agent says ..
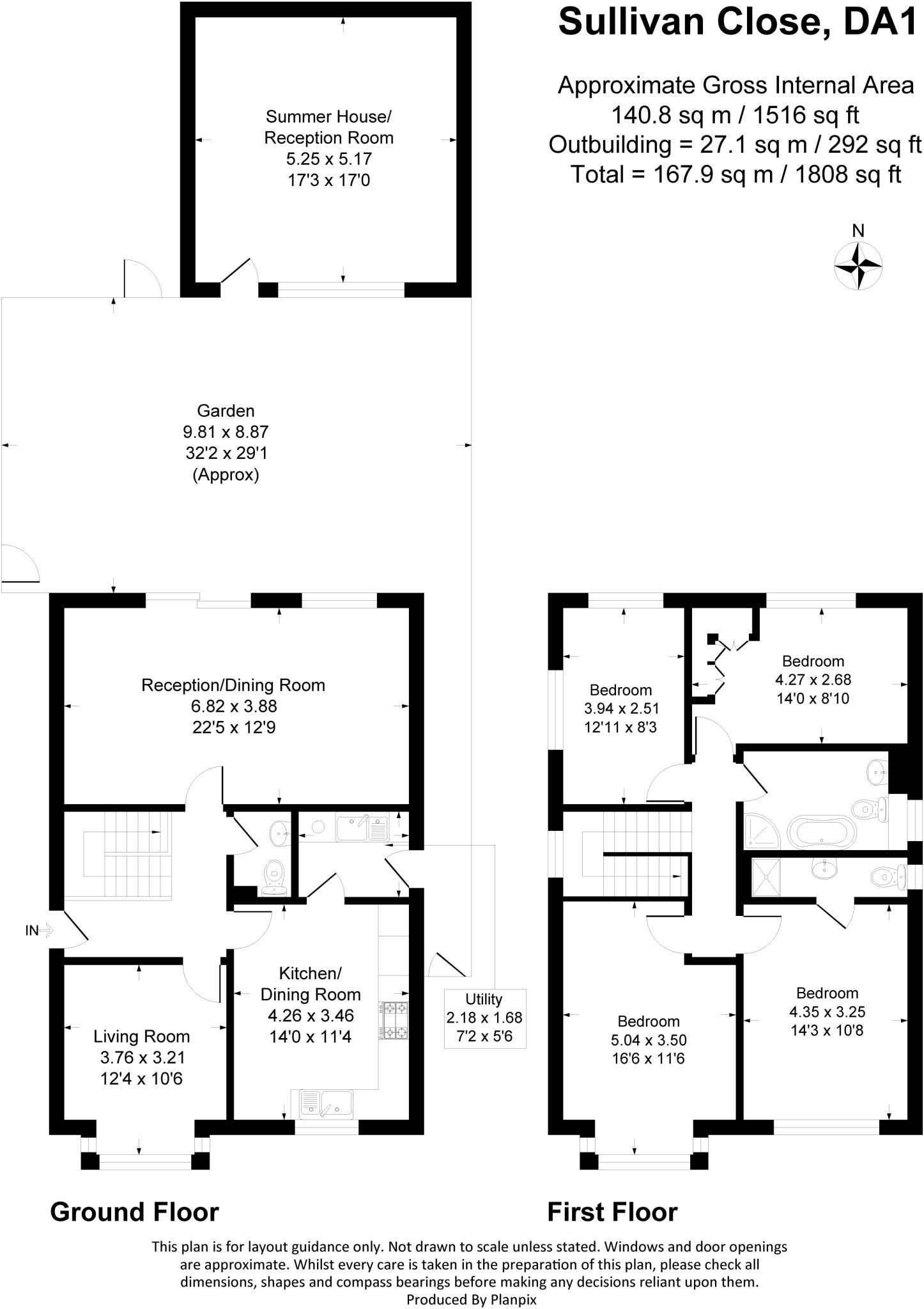
Land Estates are delighted to present this stunning four-bedroom detached home located on the sought-after Sullivan Close in West Dartford. This beautifully presented property is ideal for growing families and offers excellent space and flexibility throughout. The ground floor (cont.)
Property Oracle says ..
Therefore, we give this property 7 / 10. *Disclaimer: This is our option and does constitute a recommendation or financial advice. Do your own research. *
- Price
- 6
- Condition
- 7
- Location
- 8
- Land
- 7
- Bedrooms
- 4
- Bathrooms
- 2
The heatmap indicates the level of crime in the area. The color of the heatmap indicates the crime severity and recency.
Metrics Year-on-Year
- Average area value
- 522,333.00 £Decreased by 15.71 %
- Average area rental value
- 2,481.00 £/moDecreased by 21.34 %
- Est rental Yield
- 5.70 %Decreased by 6.71 %
- Crime Rate
- 1.00 %Unchanged by 0.00 %
from 619,682.00 £
from 3,154.00 £/mo
from 6.11 %
from 1.00 %
Agent Activity
Land Estates Agent created the listing.
Nearby Schools
| Name | Type | Ofsted | Distance |
|---|---|---|---|
| Dartford Grammar School For Girls | Academy Converter | Outstanding | 0.33 KM |
| Dartford Science & Technology College | Foundation School | Good | 0.36 KM |
| West Hill Primary Academy | Academy Converter | Good | 0.36 KM |
| Dartford Grammar School | Academy Converter | 0.50 KM | |
| Our Lady'S Catholic Primary School, Dartford | Voluntary Aided School | Good | 0.85 KM |
Images
Nearby Streets
| Name | Average Price | Average Sqft | Distance |
|---|---|---|---|
| Sullivan Close | £ 0 | 0 | 0.00 KM |
| Cross Road | £ 0 | 0 | 0.00 KM |
| Western Terrace | £ 550,000 | 0 | 0.00 KM |
| Laurel Close | £ 0 | 0 | 0.00 KM |
| Linden Avenue | £ 0 | 0 | 0.00 KM |
Nearby Transport
| Name | NLC | TLC | Distance |
|---|---|---|---|
| Dartford | 5101 | DFD | 2.04 KM |
| Crayford | 5100 | CRY | 2.49 KM |
| Slade Green | 5154 | SGR | 2.88 KM |
| Erith | 5104 | ERH | 5.08 KM |
| Barnehurst | 5089 | BNH | 5.14 KM |
Nearby Listings
| Address | Price | Type | Score | Distance |
|---|---|---|---|---|
| Sullivan Close, Dartford | £ 825,000 | BUY | 7 / 10 | 0.00 KM |
| Sullivan Close, West Dartford, Kent, DA1 | £ 800,000 | BUY | 7 / 10 | 0.02 KM |
| Shepherds Lane, Dartford | £ 1,300,000 | BUY | 6 / 10 | 0.11 KM |
| Sullivan Close, Dartford | £ 685,000 | BUY | 7 / 10 | 0.13 KM |
| Devonshire Avenue, Dartford, DA1 3DN | £ 650,000 | BUY | 7 / 10 | 0.18 KM |
Nearby Properties
| Address | Price | Distance |
|---|---|---|
| 12 Sullivan Close | £ 325,000 | 0.09 KM |
| 18 Sullivan Close | £ 380,000 | 0.09 KM |
| 16 Sullivan Close | £ 325,000 | 0.09 KM |
| 15 Sullivan Close | £ 320,000 | 0.09 KM |
| 2 Sullivan Close | £ 372,000 | 0.09 KM |