Scott Road, Kilmarnock, KA1
By Lomond Property
£ 75,000
Reviews
3 out of 5 stars
Lomond Property says ..
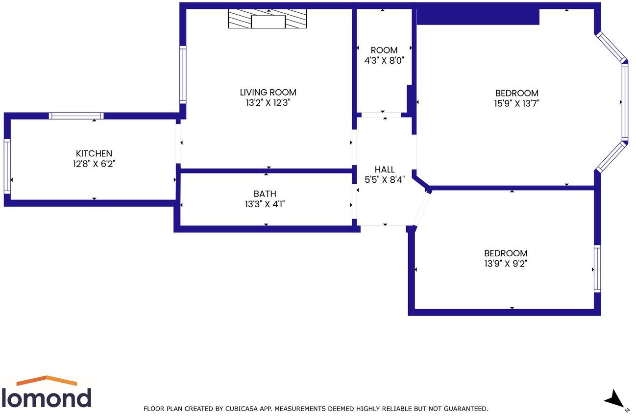
Positioned perfectly on the ever-popular Scott Road, this beautifully presented traditional two-bedroom upper flat sits proudly within an immaculate sandstone block, offering a perfect blend of classic charm and modern flair. From the moment you step inside, you'll feel at home in the generous...
Property Oracle says ..
This property is a 2 bedroom flat located in Kilmarnock, East Ayrshire. The list price is £75,000. The property has a modern kitchen and bathroom, and appears to be well maintained. There is a garden to the rear of the property. Kilmarnock has a train station approximately 1.4km from the property providing links to other parts of Scotland. The average price for a property in the area is significantly higher at £362,778. However, this average is skewed by larger properties; the average price per sqft is £282, while this property is listed at a price per sqft considerably lower. The nearby comparable properties are all flats and are priced similarly, suggesting that the list price is reasonable considering the size and condition of the property. The property benefits from a relatively large garden which is a desirable feature in a flat.
Therefore, we give this property 7 / 10. *Disclaimer: This is our option and does constitute a recommendation or financial advice. Do your own research. *
- Price
- 8
- Condition
- 8
- Location
- 7
- Land
- 7
- Bedrooms
- 2
- Bathrooms
- 1
- Sqft (est)
- 718.83
The heatmap indicates the level of crime in the area. The color of the heatmap indicates the crime severity and recency.
Metrics Year-on-Year
- Average area value
- 317,330.00 £Decreased by 9.75 %
- Est sale value
- 306,940.41 £Increased by 25.96 %
- Average area rental value
- 1,425.00 £/moIncreased by 27.12 %
- Est letting value
- 718.83 £/moUnchanged by 0.00 %
- Est rental Yield
- 5.39 %Increased by 40.73 %
- Crime Rate
- 0.00 %
Agent Activity
Lomond Property created the listing.
Images
Nearby Streets
| Name | Average Price | Average Sqft | Distance |
|---|---|---|---|
| James Sym Crescent | £ 129,995 | 0 | 0.00 KM |
| Mathew Smith Avenue | £ 0 | 0 | 0.00 KM |
| Aird Avenue | £ 0 | 0 | 0.00 KM |
| Burnside Street | £ 0 | 0 | 0.00 KM |
| Holmlea Place | £ 280,000 | 0 | 0.00 KM |
Nearby Transport
| Name | NLC | TLC | Distance |
|---|---|---|---|
| Kilmarnock | 9512 | KMK | 1.39 KM |
| Kilmaurs | 9516 | KLM | 4.84 KM |
| Stewarton | 9554 | STT | 9.06 KM |
Nearby Listings
| Address | Price | Type | Score | Distance |
|---|---|---|---|---|
| Scott Road, Kilmarnock, KA1 | £ 75,000 | BUY | 7 / 10 | 0.00 KM |
| McLelland Drive, Kilmarnock, KA1 | £ 50,000 | BUY | Unknown | 0.14 KM |
| McLelland Drive, Kilmarnock | £ 67,500 | BUY | 7 / 10 | 0.14 KM |
| 27 Aird Avenue, Kilmarnock, KA1 1SP | £ 95,000 | BUY | 6 / 10 | 0.20 KM |
| Barbadoes Road, Kilmarnock, Ayrshire, KA1 | £ 70,000 | BUY | 7 / 10 | 0.20 KM |