Brecken Close, St. Albans, Hertfordshire, AL4
By Frost's Estate Agents
£ 250,000
Reviews
3 out of 5 stars
Frost's Estate Agents says ..
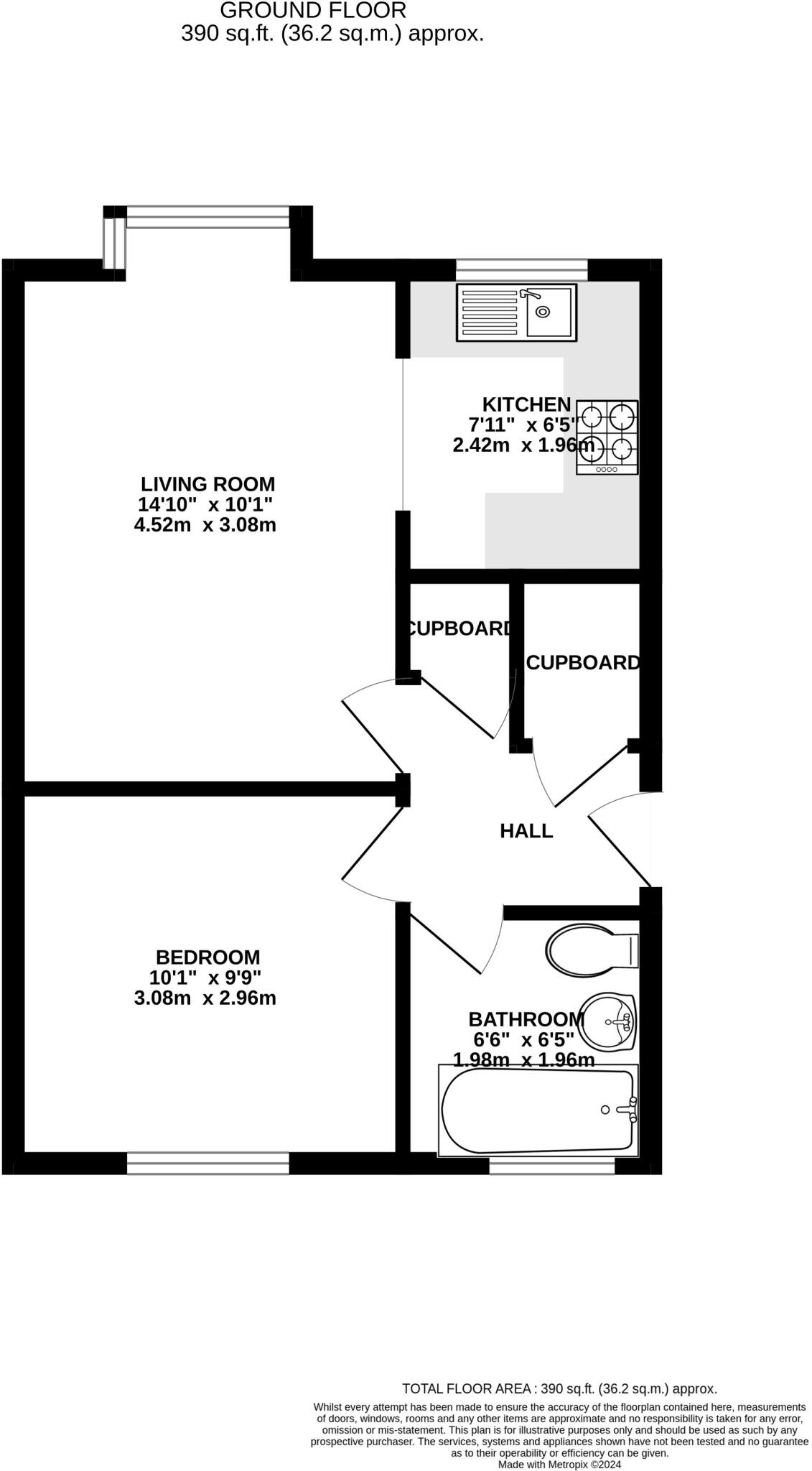
A well-presented one bedroom ground floor apartment situated in this popular Marshalswick close. The property comes with a long lease and no upper chain.
Property Oracle says ..
This property is a 1 bedroom, 1 bathroom apartment located in St Albans, Hertfordshire. The apartment is relatively small at 341.72 sqft and situated on a 390 sqft plot. The location benefits from being close to several schools and transportation links. However, the list price of £250,000 is significantly lower than the average price for the area (£792,500), and considerably lower than the average price per sqft (£647). This suggests the property may be undervalued, potentially due to its condition or other factors not immediately apparent from the provided data. The images suggest the property is in need of some modernisation, although not necessarily extensive renovations. The property also benefits from a small garden area.
Therefore, we give this property 6 / 10. *Disclaimer: This is our option and does constitute a recommendation or financial advice. Do your own research. *
- Price
- 7
- Condition
- 6
- Location
- 8
- Land
- 4
- Bedrooms
- 1
- Bathrooms
- 1
- Sqft (est)
- 341.72
- Lot (est)
- 390.00
The heatmap indicates the level of crime in the area. The color of the heatmap indicates the crime severity and recency.
Metrics Year-on-Year
- Average area value
- 770,000.00 £Increased by 1.19 %
- Est sale value
- 241,937.76 £Increased by 35.89 %
- Average area rental value
- 1,713.00 £/moDecreased by 7.36 %
- Est letting value
- 341.72 £/moUnchanged by 0.00 %
- Est rental Yield
- 2.67 %Decreased by 8.56 %
- Crime Rate
- 17.00 %Unchanged by 0.00 %
Agent Activity
Frost's Estate Agents created the listing.
Nearby Schools
| Name | Type | Ofsted | Distance |
|---|---|---|---|
| Wheatfields Junior Mixed School | Academy Converter | 0.36 KM | |
| Wheatfields Infants' And Nursery School | Academy Converter | 0.36 KM | |
| Sandringham School | Academy Converter | 0.77 KM | |
| Sa5 Marshalswick Family Centre | Children's Centre | 0.98 KM | |
| Bernards Heath Junior School | Community School | Outstanding | 1.61 KM |
Images
Nearby Streets
| Name | Average Price | Average Sqft | Distance |
|---|---|---|---|
| Sandringham Crescent | £ 0 | 0 | 0.00 KM |
| St. Albans Road | £ 0 | 0 | 0.00 KM |
| St Albans Road | £ 375,000 | 0 | 0.00 KM |
| St.Albans Road | £ 1,099,998 | 0 | 0.00 KM |
| Marshalswick Lane | £ 1,337,500 | 0 | 0.00 KM |
Nearby Transport
| Name | NLC | TLC | Distance |
|---|---|---|---|
| St Albans City | 1548 | SAC | 2.60 KM |
| St Albans Abbey | 1562 | SAA | 4.17 KM |
| Park Street | 1561 | PKT | 5.71 KM |
| Harpenden | 1543 | HPD | 6.41 KM |
| How Wood (Hertfordshire) | 1563 | HWW | 6.70 KM |
Nearby Listings
| Address | Price | Type | Score | Distance |
|---|---|---|---|---|
| Brecken Close, St. Albans, Hertfordshire, AL4 | £ 250,000 | BUY | 6 / 10 | 0.00 KM |
| Brecken Close, St. Albans | £ 215,000 | BUY | 6 / 10 | 0.01 KM |
| Brecken Close, St. Albans, AL4 9LF | £ 450,000 | BUY | 6 / 10 | 0.06 KM |
| Brecken Close, St. Albans, Hertfordshire, AL4 | £ 550,000 | BUY | Unknown | 0.07 KM |
| Boling Brook, St. Albans, AL4 9NP | £ 700,000 | BUY | 7 / 10 | 0.08 KM |
Nearby Properties
| Address | Price | Distance |
|---|---|---|
| 11 Brecken Close | £ 307,000 | 0.01 KM |
| 22 Brecken Close | £ 215,000 | 0.01 KM |
| 12 Brecken Close | £ 486,500 | 0.01 KM |
| 13 Brecken Close | £ 475,000 | 0.01 KM |
| 33 Brecken Close | £ 167,500 | 0.01 KM |