Whitlock and Heaps says ..
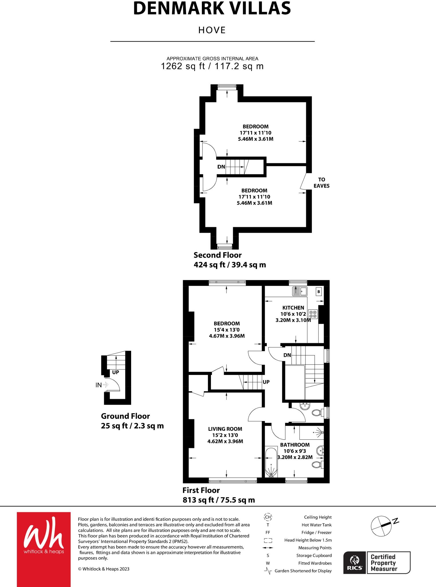
Whitlock and Heaps are pleased to offer to market this spacious maisonette being arranged over the first and top floors of this semi detached property offering good size three double bedroom accommodation with a white bathroom suite and modern kitchen. Situated in this central location within a f...
Property Oracle says ..
This three-bedroom maisonette located on Denmark Villas, Hove, offers a convenient and well-connected urban lifestyle. Its proximity to Hove railway station and several well-regarded schools makes it an attractive option for families and commuters alike. The property’s interior appears functional and reasonably well-maintained, though it might benefit from some modernizations to increase its aesthetic appeal and potential market value. The kitchen and bathroom seem functional but could benefit from an update. Notably, there appears to be no garden space associated with the property. The listed price of £385,000 aligns with the general pricing range of other properties in the area but is not exceptionally undervalued. Considering the property’s location, condition, and lack of outdoor space, it presents a reasonable, if not exceptional, buying opportunity. The potential for modest improvements could further increase its overall value and marketability. More details on the exact square footage and the property’s specific features would be beneficial for a more thorough valuation.
Therefore, we give this property 5 / 10. *Disclaimer: This is our option and does constitute a recommendation or financial advice. Do your own research. *
- Price
- 7
- Condition
- 6
- Location
- 8
- Land
- 1
- Bedrooms
- 3
- Bathrooms
- 1
- Sqft (est)
- 1,261.53
The heatmap indicates the level of crime in the area. The color of the heatmap indicates the crime severity and recency.
Metrics Year-on-Year
- Average area value
- 684,528.00 £Increased by 37.85 %
- Est sale value
- 629,503.47 £Decreased by 17.38 %
- Average area rental value
- 1,631.00 £/moDecreased by 11.84 %
- Est letting value
- 1,261.53 £/moDecreased by 50.00 %
- Est rental Yield
- 2.86 %Decreased by 36.02 %
- Crime Rate
- 10.00 %Unchanged by 0.00 %
Agent Activity
Whitlock and Heaps marked this listing as sold.
Whitlock and Heaps created the listing.
Nearby Schools
| Name | Type | Ofsted | Distance |
|---|---|---|---|
| St Andrew'S Cofe (Aided) Primary School | Voluntary Aided School | Good | 0.50 KM |
| Drive Preparatory School | Other Independent School | Good | 0.56 KM |
| Conway Court Children'S Centre | Children's Centre | 0.69 KM | |
| The Montessori Place | Other Independent School | Outstanding | 0.82 KM |
| Brighton And Hove Clinic School | Other Independent Special School | Good | 1.17 KM |
Images
Nearby Streets
| Name | Average Price | Average Sqft | Distance |
|---|---|---|---|
| Clarendon Villas | £ 0 | 0 | 0.00 KM |
| Hova Villas | £ 0 | 0 | 0.00 KM |
| Newtown Road | £ 498,267 | 0 | 0.00 KM |
| Church Road | £ 300,000 | 0 | 0.00 KM |
| Shirley Drive | £ 0 | 0 | 0.00 KM |
Nearby Transport
| Name | NLC | TLC | Distance |
|---|---|---|---|
| Hove | 5273 | HOV | 0.27 KM |
| Aldrington | 5280 | AGT | 1.51 KM |
| Preston Park | 5285 | PRP | 2.25 KM |
| Brighton | 5268 | BTN | 3.28 KM |
| London Road (Brighton) | 5281 | LRB | 3.80 KM |
Nearby Listings
| Address | Price | Type | Score | Distance |
|---|---|---|---|---|
| Denmark Villas, Hove | £ 385,000 | BUY | 5 / 10 | 0.00 KM |
| Denmark Villas, Hove | £ 425,000 | BUY | 7 / 10 | 0.00 KM |
| Basement Flat 65 Denmark Villas, Hove, BN3 | £ 315,000 | BUY | 6 / 10 | 0.00 KM |
| Denmark Villas, Hove, East Sussex, BN3 | £ 400,000 | BUY | 6 / 10 | 0.00 KM |
| Denmark Villas, Hove | £ 1,400,000 | BUY | Unknown | 0.01 KM |
Nearby Properties
| Address | Price | Distance |
|---|---|---|
| 35 Denmark Villas | £ 1,510,000 | 0.00 KM |
| 57 Denmark Villas | £ 1,100,000 | 0.00 KM |
| 49a Denmark Villas | £ 375,000 | 0.00 KM |
| 29 Denmark Villas | £ 1,170,027 | 0.00 KM |
| 21 Denmark Villas | £ 950,000 | 0.00 KM |