Perowne Street, Aldershot, Hampshire, GU11
By Mackenzie Smith
£ 375,000
Reviews
3 out of 5 stars
Mackenzie Smith says ..
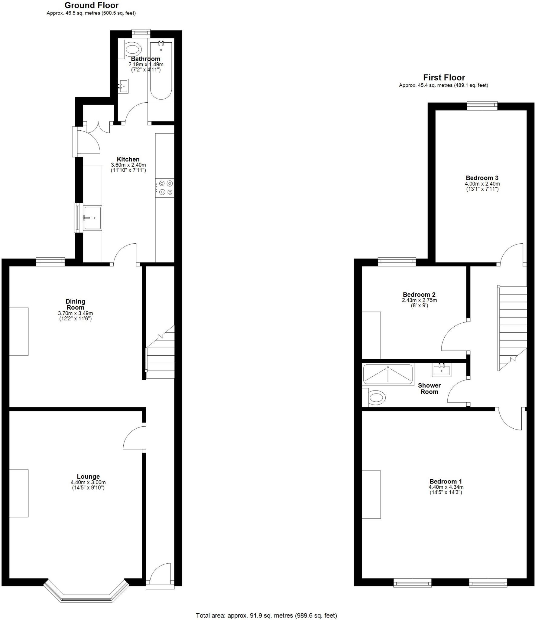
This charming end terrace character house offers three bedrooms and two bathrooms, featuring updated carpets throughout and a fresh decorative finish.
Property Oracle says ..
This end of terrace property is located in the Rowhill area of Aldershot, Hampshire. The property benefits from being close to local schools such as Rowhill School (0.16km) and Wellington Community Primary School (0.38km), both with good Ofsted ratings. Transport links are also convenient, with Aldershot railway station approximately 1.39km away. The property itself appears to be in reasonable condition, though some minor cosmetic updates might enhance its appeal. The images show a relatively small garden. Considering the average price per sqft in the area is £353, and this property is listed at £375,000 with 725.33 sqft, the price seems slightly high compared to the average. However, local comparable properties on Perowne Street show prices ranging from £83,500 to £295,000, indicating some price variability in the street. The lack of sqft data for these comparable properties makes a direct comparison difficult.
Therefore, we give this property 6 / 10. *Disclaimer: This is our option and does constitute a recommendation or financial advice. Do your own research. *
- Price
- 6
- Condition
- 7
- Location
- 8
- Land
- 5
- Bedrooms
- 3
- Bathrooms
- 2
- Sqft (est)
- 725.33
- Lot (est)
- 989.60
The heatmap indicates the level of crime in the area. The color of the heatmap indicates the crime severity and recency.
Metrics Year-on-Year
- Average area value
- 332,500.00 £Decreased by 10.87 %
- Est sale value
- 395,304.85 £Increased by 55.71 %
- Average area rental value
- 1,008.00 £/moDecreased by 24.27 %
- Est letting value
- 725.33 £/moUnchanged by 0.00 %
- Est rental Yield
- 3.64 %Decreased by 14.95 %
- Crime Rate
- 15.00 %Unchanged by 0.00 %
Agent Activity
Mackenzie Smith created the listing.
Nearby Schools
| Name | Type | Ofsted | Distance |
|---|---|---|---|
| Rowhill School | Pupil Referral Unit | Good | 0.16 KM |
| Wellington Community Primary School | Community School | Outstanding | 0.38 KM |
| Talavera Junior School | Community School | Outstanding | 1.21 KM |
| Talavera Infant School | Community School | Good | 1.21 KM |
| St Joseph'S Catholic Primary School | Academy Converter | Outstanding | 1.25 KM |
Images
Nearby Streets
| Name | Average Price | Average Sqft | Distance |
|---|---|---|---|
| Willems Roundabout | £ 0 | 0 | 0.00 KM |
| Wellington Avenue | £ 0 | 0 | 0.00 KM |
| Willems Avenue | £ 137,500 | 0 | 0.00 KM |
| Princes Way | £ 0 | 0 | 0.00 KM |
| Laburnum Road | £ 0 | 0 | 0.00 KM |
Nearby Transport
| Name | NLC | TLC | Distance |
|---|---|---|---|
| Aldershot | 5623 | AHT | 1.39 KM |
| Farnham | 5545 | FNH | 4.64 KM |
| North Camp | 5636 | NCM | 5.46 KM |
| Farnborough (Main) | 5521 | FNB | 5.66 KM |
| Ash Vale | 5547 | AHV | 6.19 KM |
Nearby Listings
| Address | Price | Type | Score | Distance |
|---|---|---|---|---|
| Perowne Street, Aldershot, Hampshire, GU11 | £ 375,000 | BUY | 6 / 10 | 0.00 KM |
| Perowne Street, Aldershot, GU11 | £ 200,000 | BUY | 7 / 10 | 0.03 KM |
| Perowne Street, Aldershot, Hampshire, GU11 | £ 375,000 | BUY | 6 / 10 | 0.04 KM |
| Queen Street, Aldershot, Hampshire, GU12 | £ 240,000 | BUY | 6 / 10 | 0.08 KM |
| Queens Road, Aldershot, GU11 | £ 370,000 | BUY | 6 / 10 | 0.09 KM |
Nearby Properties
| Address | Price | Distance |
|---|---|---|
| 15 Perowne Street | £ 115,000 | 0.03 KM |
| 13 Perowne Street | £ 330,000 | 0.03 KM |
| 45 Perowne Street | £ 207,000 | 0.03 KM |
| 33 Perowne Street | £ 180,000 | 0.03 KM |
| 23 Perowne Street | £ 151,950 | 0.03 KM |