Pengelly, Delabole
By LeGrys Independent Estate Agents
£ 269,000
Reviews
3 out of 5 stars
LeGrys Independent Estate Agents says ..
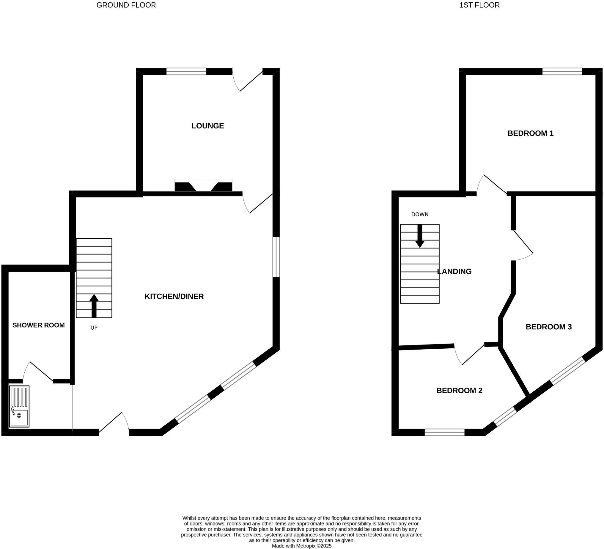
Spacious Delabole home with great potential. Features 3 bedrooms, large kitchen diner, open fire and shower room. Boasting off road parking in a car port- a rare find in this sought-after village location.
Property Oracle says ..
This is a three-bedroom end-of-terrace house in Delabole, Cornwall. The property is listed for £269,000. It is located close to local schools and amenities. The property appears to be in need of some renovation, particularly in the bathroom and some unfinished rooms. However, the kitchen looks modern. The property has a good-sized garden with a shed. The price seems reasonable considering the condition and location.
Therefore, we give this property 6 / 10. *Disclaimer: This is our option and does constitute a recommendation or financial advice. Do your own research. *
- Price
- 7
- Condition
- 4
- Location
- 6
- Land
- 7
- Bedrooms
- 3
- Bathrooms
- 1
- Sqft (est)
- 795.00
The heatmap indicates the level of crime in the area. The color of the heatmap indicates the crime severity and recency.
Metrics Year-on-Year
- Average area value
- 458,437.00 £Decreased by 4.05 %
- Est sale value
- 302,895.00 £Increased by 27.85 %
- Average area rental value
- 1,114.00 £/moIncreased by 37.02 %
- Est letting value
- 0.00 £/mo
- Est rental Yield
- 2.92 %Increased by 43.14 %
- Crime Rate
- 50.00 %Unchanged by 0.00 %
Agent Activity
LeGrys Independent Estate Agents created the listing.
Nearby Schools
| Name | Type | Ofsted | Distance |
|---|---|---|---|
| Delabole Primary School | Academy Sponsor Led | Good | 0.77 KM |
| St Teath Community Primary School | Academy Converter | 3.21 KM | |
| Camelford Community Primary School | Academy Converter | 4.54 KM | |
| Sir James Smith'S School | Academy Converter | 4.67 KM | |
| Tintagel Primary School | Academy Converter | Good | 4.73 KM |
Images
Nearby Listings
| Address | Price | Type | Score | Distance |
|---|---|---|---|---|
| Pengelly, Delabole | £ 269,000 | BUY | 6 / 10 | 0.00 KM |
| Pengelly, Delabole | £ 130,000 | BUY | 6 / 10 | 0.03 KM |
| Pengelly, Delabole, Cornwall, PL33 | £ 240,000 | BUY | Unknown | 0.03 KM |
| Pengelly, Delabole, Cornwall, England, PL33 | £ 215,000 | BUY | Unknown | 0.04 KM |
| Pengelly, DELABOLE, Cornwall, PL33 | £ 250,000 | BUY | 6 / 10 | 0.04 KM |
Nearby Properties
| Address | Price | Distance |
|---|---|---|
| 131a Pengelly | £ 8,000 | 0.00 KM |
| 101 Pengelly | £ 120,000 | 0.00 KM |
| 95 Pengelly | £ 60,000 | 0.00 KM |
| 127 Pengelly | £ 124,000 | 0.00 KM |
| 131 Pengelly | £ 96,000 | 0.00 KM |