The Quay, Poole, BH15
By Hearnes Estate Agents
£ 600,000
Reviews
3 out of 5 stars
Hearnes Estate Agents says ..
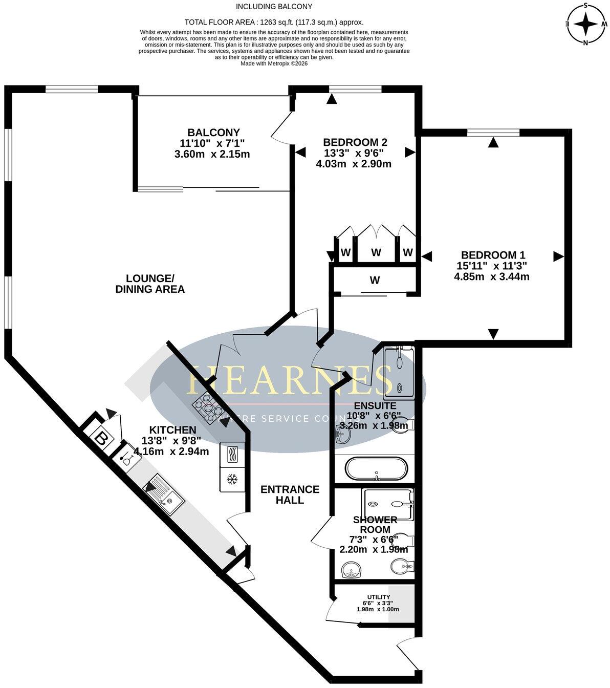
A front facing, two double bedroom, waterside fourth floor apartment affording outstanding views over Poole Harbour to Sandbanks, Brownsea Island and The Purbecks beyond. This well presented property offers over 1,220 sq ft of accommodation, occupying a delightful position with a wonderful dua...
Property Oracle says ..
This is a modern 2-bedroom apartment located on The Quay in Poole. The property boasts a desirable waterfront location with views of the harbour. The apartment is in good condition, featuring modern fixtures and fittings. It includes a balcony, providing outdoor space. The location offers convenient access to local amenities, shops, and restaurants. Transportation links are readily available, with Poole train station located less than a kilometer away. Several schools are also within a reasonable distance. The price is slightly above the average for the area, but this reflects the property’s prime location and condition.
Therefore, we give this property 6 / 10. *Disclaimer: This is our option and does constitute a recommendation or financial advice. Do your own research. *
- Price
- 6
- Condition
- 8
- Location
- 8
- Land
- 3
- Bedrooms
- 2
- Bathrooms
- 2
- Sqft (est)
- 1,262.61
The heatmap indicates the level of crime in the area. The color of the heatmap indicates the crime severity and recency.
Metrics Year-on-Year
- Average area value
- 376,458.00 £Increased by 19.16 %
- Est sale value
- 481,054.41 £Increased by 7.93 %
- Average area rental value
- 1,279.00 £/moDecreased by 4.69 %
- Est letting value
- 1,262.61 £/moUnchanged by 0.00 %
- Est rental Yield
- 4.08 %Decreased by 20.00 %
- Crime Rate
- 28.00 %Unchanged by 0.00 %
Agent Activity
Hearnes Estate Agents created the listing.
Nearby Schools
| Name | Type | Ofsted | Distance |
|---|---|---|---|
| Old Town Infant School And Nursery | Academy Converter | Good | 0.44 KM |
| Old Town Children'S Centre | Children's Centre | 0.44 KM | |
| Poole High School | Foundation School | Good | 1.36 KM |
| Oakdale Junior School | Academy Converter | Good | 1.83 KM |
| Longfleet Church Of England Primary School | Academy Converter | Good | 1.88 KM |
Images
Nearby Streets
| Name | Average Price | Average Sqft | Distance |
|---|---|---|---|
| Dolphin Quays | £ 0 | 0 | 0.00 KM |
| Carter's Lane | £ 0 | 0 | 0.00 KM |
| Baiter Gardens | £ 281,667 | 0 | 0.00 KM |
| Nightingale Lane | £ 0 | 0 | 0.00 KM |
| Chapel Lane | £ 0 | 0 | 0.00 KM |
Nearby Transport
| Name | NLC | TLC | Distance |
|---|---|---|---|
| Poole | 5883 | POO | 0.81 KM |
| Hamworthy | 5940 | HAM | 4.13 KM |
| Parkstone (Dorset) | 5882 | PKS | 4.20 KM |
| Branksome | 5875 | BSM | 7.33 KM |
Nearby Listings
| Address | Price | Type | Score | Distance |
|---|---|---|---|---|
| The Quay, Poole, BH15 | £ 300,000 | BUY | 5 / 10 | 0.00 KM |
| The Quay, Poole, Dorset | £ 300,000 | BUY | 5 / 10 | 0.00 KM |
| The Quay, Poole, BH15 | £ 600,000 | BUY | 6 / 10 | 0.00 KM |
| Dolphin Quays, The Quay, Poole, Dorset | £ 165,000 | BUY | 6 / 10 | 0.00 KM |
| Dolphin Quays, The Quay | £ 175,000 | BUY | 6 / 10 | 0.00 KM |
Nearby Properties
| Address | Price | Distance |
|---|---|---|
| 12 Drake Road | £ 270,000 | 0.07 KM |
| 17 Drake Road | £ 260,000 | 0.10 KM |
| 9 Drake Road | £ 280,000 | 0.10 KM |
| 50 Skinner Street | £ 210,000 | 0.13 KM |
| 52 Skinner Street | £ 325,000 | 0.13 KM |